Działka na sprzedaż bez pośredników
ul. Notecka Bydgoszcz Miedzyń

Działka rod Bydgoszcz Miedzyń, ul. Notecka. Zdjęcie 1

Działka na sprzedaż bez pośredników Bydgoszcz Miedzyń ul. Notecka

90 000
200 zł/m²
450
Bydgoszcz Miedzyń, Notecka - lokalizacja przybliżona
Bezpośrednio od właściciela

Jeśli nie potrzebujesz pośrednika, zaoszczędzisz około 2 700 zł. Potrzebujesz wsparcia? Skorzystaj z pomocy agenta.

Dzień dobry!

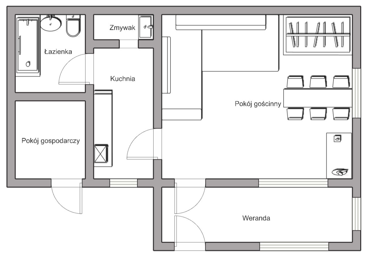
Mam do sprzedania moją oazę spokoju – prawo do dzierżawy działki ROD o powierzchni 450 m² z murowanym domkiem (35 m² + pomieszczenie gospodarcze), zlokalizowaną na ROD „1 Maja” przy ul. Noteckiej 2 w Bydgoszczy.

🔧 Działka przeszła szereg modernizacji, m.in.:

- nowy dach
- plastikowe okna
- kompletna instalacja wodno-kanalizacyjna
- szambo przelewowe z atestem (1000 l)
- pompa ciepła split (powietrze–powietrze) – chłodzi latem, grzeje zimą
- ocieplenie ścian zewnętrznych styropianem
- monitoring
- i wiele innych udogodnień

🏡 Wyposażenie domku:

- umeblowana kuchnia + osobny zmywak z pralką
- toaleta z pełnowymiarową wanną i rocznym bojlerem
- piec typu "westfalka" na chłodniejsze wieczory
- filtry na wejściu wody
- prąd i woda dostępne cały rok

🌳 Lokalizacja:

- Kanał Bydgoski – 10 min spacerem
- Las – 5 min spacerem
- DINO – 7 min pieszo
- LIDL – 5 min autem
- cicha, spokojna i zielona okolica

ℹ️ Dodatkowe informacje:

Opłaty roczne: ok. 1200 zł (za ten sezon już opłacone!)
📆 Oględziny działki tylko w weekendy, po wcześniejszym umówieniu. Proszę dzwonić po godzinie 17:00.

❌ Pośrednikom dziękuję – proszę nie kontaktować się.

  • ul. Notecka, Bydgoszcz Miedzyń  
  • Na sprzedaż działka ROD o powierzchni 450 m²  
  • Numer ewidencyjny działki w geoportal.gov.pl ROD 1-go maja 450m²
  • Dojazd utwardzony
  • Ogrodzenie metalowe
  • Media woda, szambo, prąd
  • Oferta bezpośrednio od właściciela dodana ponad miesiąc temu
Ta nieruchomość może być Twoja od.. sprawdź
18000 zł (20%) Okres spłaty: 30 lat

Podobne działki na sprzedaż

17
Działka rod Bydgoszcz Górzyskowo, ul. Bielicka

zapytaj

700

Działka ROD 700 m2 - Bydgoszcz - Górzyskowo -2 pokoje - piwnica duży salon - domek 74 m2 - 215.000 zł Ogrzewanie - kominek z rozprowadzeniem ciepła. CAŁOROCZNY!!! Docieplony. Okna PCV. Można mieszkać. Zachęcamdo zakupu domku całorocznego na ogródkach działkowych ROD mieszczącego się w Bydgoszczy n...

Zobacz ogłoszenie
8
Działka rod Bydgoszcz, ul. Lisia

90 000

300

Witam, Mam do zaoferowania kaskadową działkę rekreacyjną o powierzchni 300m2. Na działce znajduje się dwupoziomowy domek murowany. Na parterze znajduje się: - łazienka (na wyposażeniu bojler), - pokój z aneksem kuchennym (wraz z wyposażeniem: mikrofalówka, lodówka, grzejnik elektryczny, tv, czajnik ...

Zobacz ogłoszenie
5
Działka rod Bydgoszcz, ul. Janowiecka

70 000

300

Na sprzedaż zadbana działka ROD "Jutrzenka", ul. Janowiecka w Bydgoszczy, w bliskim sąsiedztwie Kanału Bydgoskiego. Około 300 m2. Liczne nasadzenia: - iglaki, - kwiaty, - ogródek warzywny, - oczko wodne, - murowany kompostownik, - zbiorniki na deszczówkę. Domek murowany, częściowo podpiwniczony. F...

Zobacz ogłoszenie
8
Działka rod Bydgoszcz, ul. Toruńska

55 000

400

Zapraszamy do zakupu pięknej, zadbanej działki rekreacyjnej zlokalizowanej na terenie Rodzinnych Ogrodów Działkowych „Kolejarz” w Bydgoszczy. To idealne miejsce do wypoczynku, relaksu i kontaktu z naturą – zaledwie kilka minut od centrum miasta. Najważniejsze atuty nieruchomości: Zadbana, w pełni ...

Zobacz ogłoszenie
9
Działka rod Bydgoszcz Prądy, ul. Łochowska

109 000

266

TYLKO U NAS!!! DZIAŁKA ROD O POWIERZCHNI 266MKW POŁOŻONA PRZY ULICY ŁOCHOWSKIEJ W BYDGOSZCZY  ROD DZIANOTEX Domek murowany składa się z: - kuchni - łazienki z prysznicem i wc ( boiler 50L.) - pokoju - pokoju - tarasu Media: - szambo 5 m3 wymienione w 2025r. wraz z całą hydrauliką w domku - woda dzi...

Zobacz ogłoszenie
8
Działka rod Bydgoszcz

105 000

35

Oferuję na sprzedaż atrakcyjną działkę ROD położoną tuż przy Kanale Bydgoskim, w cichej i zielonej okolicy. Idealne miejsce na wypoczynek, rekreację, a także do całorocznego zamieszkania! Najważniejsze atuty: • Świetna lokalizacja - działka znajduje się bardzo blisko Kanału Bydgoskiego, co zapewni...

Zobacz ogłoszenie