Działka na sprzedaż
ul. Polna Reda

Działka inwestycyjna Reda, ul. Polna. Zdjęcie 1
Działka inwestycyjna Reda, ul. Polna. Zdjęcie 2
Działka inwestycyjna Reda, ul. Polna. Zdjęcie 3
Działka inwestycyjna Reda, ul. Polna. Zdjęcie 4
Działka inwestycyjna Reda, ul. Polna. Zdjęcie 5
Działka inwestycyjna Reda, ul. Polna. Zdjęcie 6
Działka inwestycyjna Reda, ul. Polna. Zdjęcie 7
Działka inwestycyjna Reda, ul. Polna. Zdjęcie 8

Działka na sprzedaż Reda ul. Polna

4 000 000
750 zł/m²
5 330
Reda, Polna - lokalizacja przybliżona

Właściciel powierzył sprzedaż nieruchomości pośrednikowi. Możesz zadzwonić lub napisać do agenta za darmo.

NA SPRZEDAŻ - DZIAŁKA POD ZABUDOWĘ WIELORODZINNĄ | REDA
Na sprzedaż działka inwestycyjna o powierzchni 5 330 m², przeznaczoną pod zabudowę mieszkaniową wielorodzinną. Nieruchomość posiada bardzo korzystne parametry urbanistyczne, umożliwiające realizację nowoczesnego osiedla mieszkaniowego o niskiej intensywności zabudowy.
Przeznaczenie w planie miejscowym:

zabudowę mieszkaniową wielorodzinną
zabudowę usługową - usługi wyłącznie w parterach budynków mieszkalnych wielorodzinnych
lokalizację obiektów pomocniczych
infrastrukturę techniczną

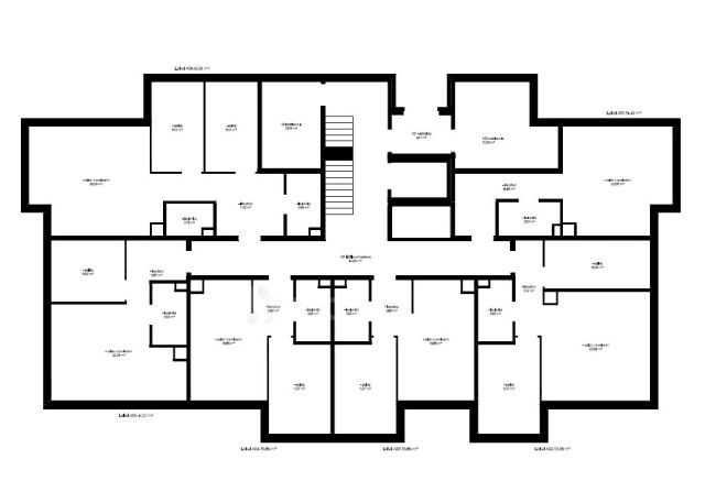
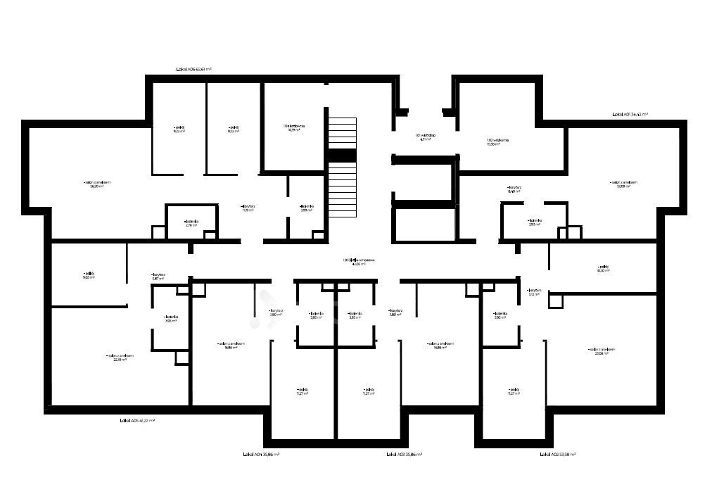
Analiza gruntu / Przykładowy projekt - kluczowe parametry

Parametry zabudowy
- Powierzchnia zabudowy: 1 247 m² (23,34% powierzchni działki)

Budynek A - 416 m²
Budynek B - 416 m²
Budynek C - 416 m²

- Powierzchnia całkowita nadziemna: 4 990 m²

Budynek M - 1 663 m²
Budynek Y - 1 663 m²
Budynek Z - 1 663 m²

- Powierzchnia całkowita podziemna: 1 398 m²

Budynek M - 466 m²
Budynek Y - 466 m²
Budynek Z - 466 m²

- Intensywność zabudowy (PUM/PUU): 1,20
Powierzchnia biologicznie czynna - 2 796 m² (52,32% powierzchni działki)

Trawniki - 2 221 m²
Trawniki na stropodachach - 574 m² (50%)

Duży udział zieleni zapewnia atrakcyjność inwestycji oraz komfort przyszłych mieszkańców.
Parametry mieszkaniowe

Łączna powierzchnia użytkowa mieszkań (PUM): 3 200 m²
Liczba lokali mieszkalnych: 64
Średnia powierzchnia mieszkania: ok. 50 m²

Optymalny metraż lokali odpowiada aktualnemu zapotrzebowaniu rynkowemu - idealny produkt inwestycyjny zarówno na sprzedaż, jak i pod wynajem.
Atuty inwestycji

Bardzo korzystny wskaźnik powierzchni biologicznie czynnej
Niska intensywność zabudowy
Możliwość realizacji lokali usługowych w parterach
Funkcjonalny podział na trzy budynki
Wszystkie parametry zgodne z obowiązującymi przepisami i normami urbanistycznymi

Doskonały potencjał inwestycyjny
Działka stanowi idealną propozycję dla dewelopera poszukującego projektu z gotowymi założeniami urbanistycznymi, umożliwiającego sprawną realizację kameralnego osiedla mieszkaniowego z odpowiednią liczbą miejsc postojowych oraz dużą ilością terenów zielonych.
Cena podana jest ceną netto
W celu uzyskania szczegółowych informacji oraz dokumentacji projektowej zapraszamy do kontaktu.
_
KUP Z NAMI - NAJKORZYSTNIEJ, NAJSZYBCIEJ I BEZPIECZNIE!
Jeżeli zainteresowało Cię powyższe ogłoszenie to:
- Zadzwoń pod wskazany nr tel.
- Umów się na Prezentację,
- Przyjedź i Obejrzyj na żywo,
- Zaproponuj Swoją cenę prezentowanej nieruchomości.
Gwarantujemy bezpieczny zakup i najlepszą CENĘ.
Oferujemy skuteczną i bezpłatną pomoc w uzyskaniu kredytu.
Zapewniamy fachowe doradztwo przy zakupie pod inwestycję.
Wszystkie nasze transakcje są objęte ubezpieczeniem OC w PZU.
Z nami u Notariusza otrzymasz Ofertę Specjalną.
Więcej podobnych ofert znajdziesz na naszej stronie: [www]

  • ul. Polna, Reda, powiat wejherowski  
  • Na sprzedaż działka inwestycyjna o powierzchni 5 330 m²  
  • Wymiary Długość: 80 m, szerokość: 40 m
  • Dojazd asfalt
  • Ogłoszenie biura nieruchomości  
  • Oferta dodana ponad miesiąc temu
Ta nieruchomość może być Twoja od.. sprawdź
800000 zł (20%) Okres spłaty: 30 lat

Podobne działki na sprzedaż

7
Działka inwestycyjna Reda

3 000 000

8500

Dwie działki 865 i 866 - 3750m2 i 3760m2 - plan zagospodarowania budownictwo wielorodzinne i przemysłowe . Działki w lokalizacji Aqua Parku Reda . Do września 2023 ma być zakończony plan miejscowy i naniesione dojazdy do wszystkich działek wzdłuż kanału .

Zobacz ogłoszenie
1
Działka inwestycyjna Reda, ul. Obwodowa

4 200 000

6000

Działka przeznaczona pod inwestycje w bdb lokalizacji przy ul. Obwodowej 54. Idealna pod centrum handlowe, wysoki procent zabudowy. Okolica prężnie się rozwijająca z dogodnym dojazdem zarówno od strony Trójmiasta jak i Półwyspu. Sprzedaży podlegają działki zakreślone kolorem na zdjęciu. Łączna powie...

Zobacz ogłoszenie
5
Działka inwestycyjna Reda Betlejem

4 935 000

2,1 ha

Sprzedam Piękną , słoneczną w bardzo ładnej mocno zintensyfikowanej zabudowie , dzielnicy 12 Marca / Betlejem , działkę o dużym potencjale ze względu doskonałe położenie , bliskość lasu oraz na dodatkowy ciąg komunikacyjny z drogą krajową dk6 Zgodnie z podjętą uchwałą z dnia 27 maja 2021 przystą...

Zobacz ogłoszenie
3
Działka inwestycyjna Reda, ul. Łąkowa

4 800 000

1,5 ha

Posiadam w sprzedaży działkę przeznaczoną pod działalność gospodarczą o powierzchni 15000 m2 położoną w miejscowości Reda, przy ulicy Łąkowej. Działka posiada bezpośredni dostęp do drogi publicznej - od ulicy Łąkowej,

Zobacz ogłoszenie
16
Działka inwestycyjna Reda Pieleszewo, ul. Łososiowa

4 780 000

1,08 ha

Tel. 501 388 659 Nieruchomość składająca się z 4 działek.Dom 340m+garaż wolnostojący 20m. Dom: parter- 2 pokoje,kuchnia,pralnia,kotłownia,łazienka,pomieszczenie gospodarcze piętro- 3 pokoje,kuchnia,łazienka,wiatrołap poddasze- 3 pokoje,łazienka antresola miedzy parterem a poddaszem Zabudowa d...

Zobacz ogłoszenie
2
Działka inwestycyjna Rumia, ul. Grunwaldzka

4 550 000

7000

Działaka inwestycyjna przy trasie krajowej nr.6 Doskonała lokalizacja na przeciwko centrum handlowego Port Rumia powierzchnia 7000 m2 W perspektywie budowa przystanku kolei SKM nieopodal

Zobacz ogłoszenie