Działka na sprzedaż bez pośredników
Starostawska Nowe Żabno

NOWA OFERTA
Działka inwestycyjna Nowe Żabno, Starostawska. Zdjęcie 1

Działka na sprzedaż bez pośredników Nowe Żabno Starostawska

211 320
120 zł/m²
1 761
Nowe Żabno, Starostawska - lokalizacja przybliżona
Bezpośrednio od właściciela

Jeśli nie potrzebujesz pośrednika, zaoszczędzisz około 6 300 zł. Potrzebujesz wsparcia? Skorzystaj z pomocy agenta.

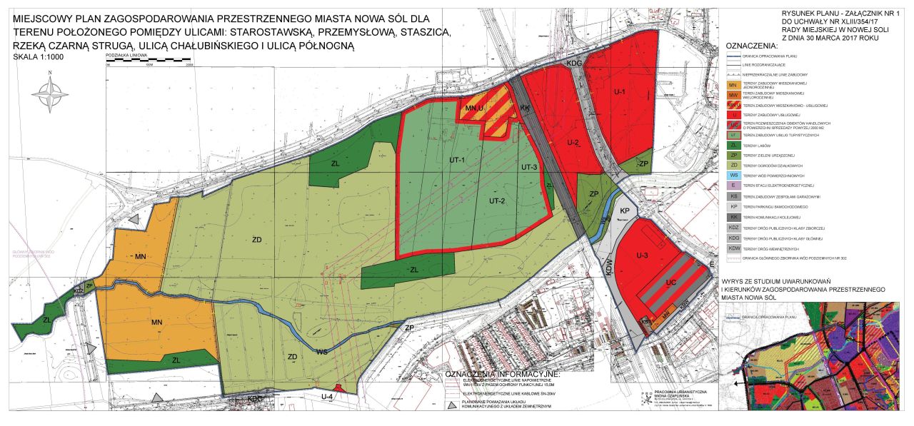
Kompleks Działek Inwestycyjnych (15 - 32 ary) | Biznes + Dom Nowa Sól (UT-2)

(UWAGA: arkusz ogłoszeń zawiera błąd - brak do wyboru miejscowości NOWA SÓL w lokalizacji).

Szukasz doskonale zlokalizowanego gruntu, na którym Twój biznes zacznie na siebie zarabiać, a Ty będziesz miał wszystko pod kontrolą, mieszkając tuż obok?

Oferujemy na sprzedaż kompleks wydzielonych działek inwestycyjnych o zróżnicowanych powierzchniach (od ok. 15 arów do ponad 32 arów). Teren znajduje się w strategicznym punkcie Nowej Soli – w bliskim sąsiedztwie strefy przemysłowej i węzłów komunikacyjnych. To miejsce stworzone dla przedsiębiorców, dla których liczy się funkcjonalność i potencjał inwestycyjny.

CO MOŻESZ TU WYBUDOWAĆ? (Plan Miejscowy – symbol UT-2) Plan zagospodarowania przestrzennego dopuszcza zabudowę do 40% powierzchni działki, co przy najmniejszych parcelach daje imponujące możliwości inwestycyjne. Twój Biznes (min. 70% powierzchni zabudowy): Teren przeznaczony jest pod usługi turystyczno-rekreacyjne (wymagana zabudowa kubaturowa). Industrialne sąsiedztwo zapewnia pełną swobodę prowadzenia działalności, bez ograniczeń typowych dla gęstej zabudowy mieszkaniowej.

Zgodnie z wytycznymi urzędu, to perfekcyjna lokalizacja na:

Obsługę ruchu biznesowego i tranzytowego (motele, pensjonaty, obiekty hotelarskie) – idealne na pobyt dla przedstawicieli handlowych, serwisantów odwiedzających okoliczne fabryki oraz turystów.

Jeździectwo i agroturystykę – doskonałe miejsce na komercyjną stajnię rekreacyjną z wybiegami lub ośrodek jeździecki (funkcja wpisana wprost w plan miejscowy!).

Rekreację i rozrywkę – zadaszone obiekty sportowe (modne hale do padla/tenisa, squasha), centrum rozrywki, park trampolin, tor gokartowy czy laserowy paintball.

Zaplecze rekreacyjne – baza i wypożyczalnia sprzętu (np. e-bike w związku ze ścieżkami rowerowymi).

Twój Dom (do 30% powierzchni zabudowy): Obok części biznesowej możesz w pełni legalnie wybudować komfortową przestrzeń prywatną. Funkcja mieszkaniowa może stanowić oddzielny budynek lub zostać zintegrowana w jednej bryle z usługami (np. prywatny apartament na piętrze), co drastycznie obniża koszty budowy!

NAJWIĘKSZE ATUTY NASZYCH PARCELI:
Uregulowany dojazd: Dostęp do kompleksu od ul. Starostawskiej zapewnia ustanowiona prawnie służebność przejazdu. Dojazd do samych działek odbywa się poprzez nowo wytyczoną wewnętrzną drogę z placem do zawracania (brak ruchu tranzytowego).

Media: Dostęp do sieci elektroenergetycznej oraz wodociągowej zlokalizowany w ul. Starostawskiej (do doprowadzenia we własnym zakresie). Odprowadzenie ścieków: szambo lub przydomowa oczyszczalnia ścieków.

Przestrzeń manewrowa: Nawet przy maksymalnej zabudowie pozostaje mnóstwo wolnego terenu na podjazdy czy parkingi dla klientów.

CENY I DOSTĘPNOŚĆ: W ofercie posiadamy parcele o zróżnicowanych kształtach – od czystych działek klasy Premium (ok. 15 arów), po większe tereny z przebiegającymi liniami napowietrznymi. Te ostatnie, dzięki bardzo atrakcyjnej cenie, są idealnym wyborem pod obszerne wybiegi dla koni, otwarte place manewrowe czy parkingi.
Ceny ofertowe: od 120 zł/m² do 180 zł/m² (w zależności od parametrów działki).
Sprzedaż bezpośrednia od osób prywatnych. Brak podatku VAT – kupujący opłaca jedynie standardowy podatek PCC (2%) u notariusza.
Szczegółowy rzut podziału wraz z tabelą powierzchni znajduje się w galerii zdjęć.

Zadzwoń, porozmawiajmy o potencjale i umówmy się na prezentację!

Biurom nieruchomości i pośrednikom stanowczo dziękujemy – nie jesteśmy zainteresowani współpracą.

  • Starostawska, Nowe Żabno, gmina Nowa Sól, powiat nowosolski  
  • Na sprzedaż działka inwestycyjna o powierzchni 1 761 m²  
  • Numer ewidencyjny działki 136
  • Dojazd utwardzony
  • Ogrodzenie bez ogrodzenia
  • Media woda nieprzyłączona, brak kanalizacji, prąd nieprzyłączony, gaz nieprzyłączony
  • Cena do negocjacji  
  • Oferta bezpośrednio od właściciela dodana dodana dzisiaj
Ta nieruchomość może być Twoja od.. sprawdź
42000 zł (20%) Okres spłaty: 30 lat