Działka na sprzedaż bez pośredników
Kolonia Piaski  

Działka budowlana Kolonia Piaski. Zdjęcie 1

Działka na sprzedaż bez pośredników Kolonia Piaski

103 000
33 zł/m²
3 114
Kolonia Piaski - lokalizacja przybliżona
Bezpośrednio od właściciela

Jeśli nie potrzebujesz pośrednika, zaoszczędzisz około 3 100 zł. Potrzebujesz wsparcia? Skorzystaj z pomocy agenta.

Atrakcyjna działka położona w malowniczej okolicy, bez bezpośredniego sąsiedztwa, w otoczeniu lasów, stawów oraz doliny rzeki Radomka.

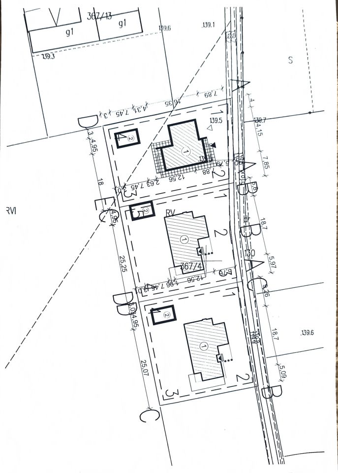
Nieruchomość jest w trakcie procedury uzyskiwania warunków zabudowy oraz przekształcenia na działkę budowlaną. Istnieje możliwość podziału terenu na trzy działki o powierzchni około 1000 m². Dla każdej z wydzielonych działek przewidziane są warunki zabudowy umożliwiające budowę domu jednorodzinnego z wolnostojącym garażem.
Wydane pozwolenie na przyłącze wody i prądu.
Odległość od drogi asfaltowej 100m - niewielkie odsunięcie od drogi gwarantuje ciszę, prywatność oraz brak uciążliwego hałasu i ruchu samochodowego.

Możliwość zakupu: 1038 m², 2076 m², 3114 m².
Cena w ogłoszeniu podana za 1038 m².

  • Kolonia Piaski, gmina Zakrzew, powiat radomski  
  • Na sprzedaż działka budowlana o powierzchni 3 114 m²  
  • Plan w serwisie geoportal.gov.pl Otwórz plan
  • Numer ewidencyjny działki 367/4
  • Wymiary Długość: 89 m, szerokość: 35 m
  • Dojazd polny
  • Media woda nieprzyłączona, brak kanalizacji, prąd nieprzyłączony
  • Cena do negocjacji  
  • Oferta bezpośrednio od właściciela dodana ponad miesiąc temu i zaktualizowana ponad tydzień temu
Ta nieruchomość może być Twoja od.. sprawdź
21000 zł (20%) Okres spłaty: 30 lat

Podobne działki na sprzedaż

1
Działka budowlana Dąbrówka Podłężna

80 000

1169

Sprzedam działkę z warunkami zabudowy pod budynek mieszkalny w obrębie Dąbrówka Podłężna gmina Zakrzew. Działka ma powierzchnię 1169 m2.

Zobacz ogłoszenie
5
Działka budowlana Dąbrówka Nagórna-Wieś Dąbrówka Nagórna Pierwsza, ul. Radomska

120 000

1000

Sprzedam działki budowlane Klwatka Szlachecka przy drodze powiatowej 2 km od Radomia o powierzchni od 1000 do 1500 m z drogą wewnętrzną .

Zobacz ogłoszenie
6
Działka budowlana Bielicha

130 200

868

DO SPRZEDANIA !!! Posiadamy na sprzedaż trzy działki budowlane o powierzchni ok. 870 metrów kwadratowych każda, z warunkami zabudowy na budowę budynku mieszkalnego, jednorodzinnego wraz z infrastrukturą techniczną.  Działka nr 189/3 o pow. 868 m2 Działka nr 189/4 o pow. 867 m2 Działka nr 189/5 o...

Zobacz ogłoszenie
2
Działka budowlana Gulin

80 000

1000

Szukasz działki budowlanej w bliskiej odległości od Radomia? Szukasz też takiego miejsca, w którym bez problemu zrobisz większe zakupy, dzieci będą miały szkołę i przedszkole na wyciągnięcie ręki? Mam do sprzedania działkę z wydanymi warunkami zabudowy. Wymiar działki 25 m x 40 m pozwala na postawi...

Zobacz ogłoszenie
4
Działka budowlana Milejowice, ul. Polna

130 000

1000

Nowe warunki zabudowy 2025 rok wydane w Marcu tego roku. Szereg 12 działek. Po 6 z każdej strony. Wytyczona droga wewnętrzna 8m szerokości. Pozostało dostępnych 2 działki o różnych powierzchniach.

Zobacz ogłoszenie
2
Działka budowlana Jaszowice-Kolonia

65 000

1000

Działka z wydanymi warunkami zabudowy 1000 m² Więcej informacji pod nr tel.

Zobacz ogłoszenie