Działka na sprzedaż bez pośredników
ul. Leszka Jasin

NOWA OFERTA
Działka budowlana Jasin, ul. Leszka. Zdjęcie 1

Działka na sprzedaż bez pośredników Jasin ul. Leszka

699 000
466 zł/m²
1 500
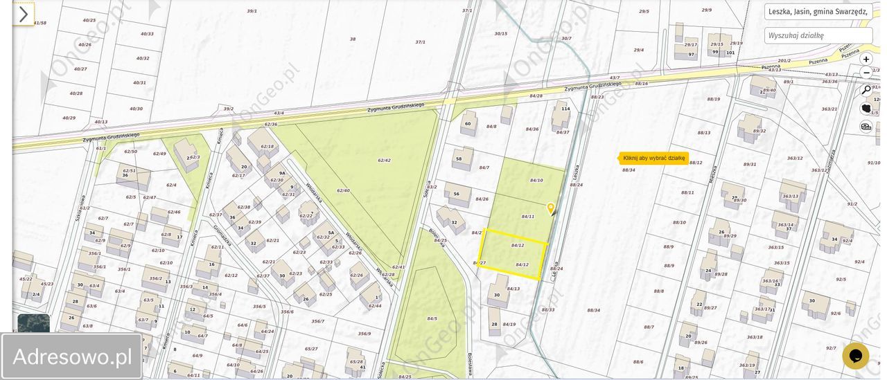
Jasin, Leszka - lokalizacja przybliżona
Bezpośrednio od właściciela

Jeśli nie potrzebujesz pośrednika, zaoszczędzisz około 21 000 zł. Potrzebujesz wsparcia? Skorzystaj z pomocy agenta.

Działka rezydencjonalna 1500 m² - Jasin / Swarzędz | MPZP | idealna pod dom wolnostojący

Na sprzedaż wyjątkowa działka rezydencjonalna o powierzchni 1500 m², położona w miejscowości Jasin (62-020), przy ul. Leszka (dz. nr 84/12).

Nieruchomość o bardzo korzystnych wymiarach 30 x 50 m, co zapewnia dużą swobodę w projektowaniu domu oraz zagospodarowaniu przestrzeni.

Działka znajduje się w świetnej lokalizacji - w centrum Swarzędza, w otoczeniu nowoczesnej zabudowy jednorodzinnej. To idealne miejsce dla osób ceniących ciszę, prywatność i jednocześnie szybki dostęp do miasta.

Media:
• prąd na działce
• woda w drodze (ul. Leszka)

Miejscowy Plan Zagospodarowania Przestrzennego (MN):
• przeznaczenie: zabudowa mieszkaniowa jednorodzinna
• wyłącznie zabudowa wolnostojąca (brak bliźniaków i szeregówek, czworaków - większa prywatność i prestiż)

• maksymalna powierzchnia zabudowy: do 30% działki
• powierzchnia biologicznie czynna: min. 60%
• możliwość prowadzenia nieuciążliwej działalności usługowej w budynku (do 30% powierzchni)
• maksymalnie jeden budynek mieszkalny na działce
• dopuszczony budynek garażowy lub gospodarczy
• dachy o kącie nachylenia 30-45°
• uporządkowana, nowa zabudowa w okolicy
• ograniczenia zabudowy zapewniające ład przestrzenny i wysoką wartość nieruchomości w przyszłości.
• wykonana opinia geotechniczna
• działka wykarczowana

To doskonała propozycja dla osób szukających miejsca pod budowę komfortowego domu w spokojnej, prestiżowej i rozwijającej się okolicy.

  • ul. Leszka, Jasin, gmina Swarzędz, powiat poznański  
  • Na sprzedaż działka budowlana o powierzchni 1 500 m²  
  • Wymiary Wymiary działki: 30 x 50 m
  • Dojazd utwardzony
  • Media woda, kanalizacja, prąd, gaz
  • Oferta bezpośrednio od właściciela dodana dodana dzisiaj
Ta nieruchomość może być Twoja od.. sprawdź
140000 zł (20%) Okres spłaty: 30 lat

Podobne działki na sprzedaż

8
Działka budowlana Rabowice

480 000

1588

Witam.Na sprzedaz działka budowlana Rabowice ul Daglezjowa o pow. 1588 m. Działka o nr 27/17 front 30 m długość 52. Działka w kształcie prostokąta. Media prąd skrzynka na działce gaz woda w drodze. Działka dobrze skomunikowana z trasą Poznań Września dużo domów już zamieszkanych oraz w budowie.Cena ...

Zobacz ogłoszenie
1
Działka budowlana Swarzędz, ul. Cybińska

520 500

1041

Dzień dobry, Mam na sprzedaż działki w Swarzędzu. Powierzchnia 1041 m. kw. Każda działka kompletna, wyposażona w media, gaz prąd i woda. Jest kanalizacja, gotowe warunki zabudowy. Działka nr: 3216/17 Cena: 500zl za metr kwadratowy. ZAPRASZAM

Zobacz ogłoszenie
2
Działka budowlana Gruszczyn, ul. Nad Rozlewiskiem

850 000

2057

Działka 348/48 położona w Dolinie Cybiny w pierwszej linii z widokiem na rozlewiska Cybiny. Obszar przed działką objęty programem Natura 2000 - nie pozwoli na dodatkową zabudowę i zmianę widoku. Działka wolna od obciążeń Sprzedaż bezpośrednia.

Zobacz ogłoszenie
3
Działka budowlana Garby, ul. Strumykowa

550 000

898

Witam, mam do sprzedania działkę budowlaną, mieszczącą się w garbach, przy Zalasewie. Powierzchnia to 898 metrów kwadratowych, działka posiada lokalny plan zagospodarowania. Ulokowana jest w pobliżu szkoły podstawowej oraz żabki, w spokojnej rodzinnej dzielnicy oraz naprawdę przyjaznym sąsiedztwie. ...

Zobacz ogłoszenie
9
Działka budowlana Gortatowo Gortatowo-Huby, ul. Daleka

518 000

1330

Witam, Mam do sprzedania działkę (215/10) z pięknym widokiem. Działka zlokalizowana jest na końcu ul.Dalekiej w Gortatowie . jest to działka budowlana ostatnia do zabudowy, dalej już tylko działki rolne i łąki. Do powierzchni działki (1330m2) jest dodatkowo udział w drodze wewnętrznej, która stanow...

Zobacz ogłoszenie
5
Działka budowlana Rabowice, ul. Magnoliowa

599 000

4590

Oferujemy dwie sąsiadujące działki o łącznej powierzchni 4590 m², w spokojnej okolicy z zabudową jednorodzinną., przy ul. Magnoliowej/Olszynowej - idealne pod inwestycję! Lokalizacja: Rabowice - spokojna okolica, sąsiedztwo nowych domów Utwardzona droga dojazdowa, szybki dojazd do centrum Swarzędza ...

Zobacz ogłoszenie