Działka na sprzedaż bez pośredników
Boratyniec Lacki  

Działka budowlana Boratyniec Lacki. Zdjęcie 1

Działka na sprzedaż bez pośredników Boratyniec Lacki

50 000
42 zł/m²
1 200
Boratyniec Lacki - lokalizacja przybliżona
Bezpośrednio od właściciela

Jeśli nie potrzebujesz pośrednika, zaoszczędzisz około 1 500 zł. Potrzebujesz wsparcia? Skorzystaj z pomocy agenta.

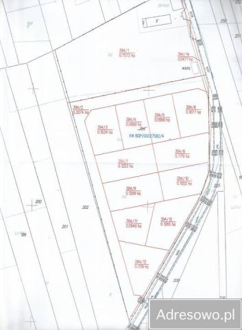
Na sprzedaż jedenaście działek w Boratyńcu Lackim, nieopodal Świętej Góry Grabarki.

Działki znajdują się w ogrodzeniu.

Działki i ich numery:
394/3 - 0.1034 ha
394/4 - 0.0968 ha
394/5 - 0.0968 ha
394/6 - 0.1077 ha - Zarezerwowana
394/7 - 0.1253 ha
394/8 - 0.1179 ha
394/9 - 0.1209 ha
394/10 - 0.1002 ha
394/11 - 0.0949 ha
394/12 - 0.1265 ha
394/13 - 0.1119 ha - Zarezerwowana

Atrakcją tych działek są tereny leśne.

Osoby zainteresowane niech dzwonią pod numer tel. 

Cena do uzgodnienia.

  • Boratyniec Lacki, gmina Siemiatycze, powiat siemiatycki  
  • Na sprzedaż działka budowlana o powierzchni 1 200 m²  
  • Oferta bezpośrednio od właściciela dodana ponad miesiąc temu

Podobne działki na sprzedaż

5
Działka budowlana Moszczona Pańska

65 000

4958

Działka o nr 49/6, obręb Moszczona Pańska 45, gmina Nurzec-Stacja, o pow. 0,4958 ha. * Wydana decyzja o warunkach zabudowy oraz oświadczeniem PGE o zapewnieniu dostaw energii oraz możliwości przyłączenia. * Na działce znajduje się zadbany las. * Położenie bezpośrednio przy drodze gminnej, 165 m od ...

Zobacz ogłoszenie
1
Działka budowlana Zalesie

zapytaj

4000

Sprzedam działkę budowlaną uzbrojoną o powierzchni 4000m2 w Zalesiu gm. Nurzec Stacja. Proszę o kontakt telefoniczny. lub na email

Zobacz ogłoszenie
2
Działka budowlana Drohiczyn

40 000

349

Nr działki: 870/2. Działka jest malutka, ale pięknie położona na obrzeżach dawnej stolicy Podlasia - Drohiczyna - blisko urokliwej rzeki Bug. Ma prawa budowlane i usługowe. Może być świetna pod malutki domek letniskowy i nie tylko...

Zobacz ogłoszenie
6
Działka budowlana Nurzec-Stacja, ul. Józefa Poniatowskiego

48 000

900

Działka 9 arów w Nurcu-Stacji, ul. Poniatowskiego. (21 km od Siemiatycz, woj. podlaskie) - Wymiary: 40x22,5 m. - Uzbrojona (prąd, woda). - Ogrodzona. - 400 metrów do dworca PKP, PKS. - Spokojne miejsce. - Obok Nadleśnictwo. Zapraszam!

Zobacz ogłoszenie
7
Działka budowlana Baciki Bliższe

50 000

1999

Sprzedam działkę o kształcie prostokąta z możliwością zabudowy 1999m2, nr 45 na załączniku mapki na granicy Siemiatycz w miejscowości Baciki Bliższe w niedalekiej odległości ok. 1,5 km od zalewu w Siemiatyczach. Kontakt tel. Główne wymiary w przybliżeniu wynoszą : 16,5 m x 97 m x 23,9 m x 110 m. Dz...

Zobacz ogłoszenie