Działka na sprzedaż bez pośredników
ul. Brzozowa Żernica

Działka budowlana Żernica, ul. Brzozowa. Zdjęcie 1

Działka na sprzedaż bez pośredników Żernica ul. Brzozowa

514 000
397 zł/m²
1 294
Żernica, Brzozowa - lokalizacja przybliżona
Bezpośrednio od właściciela

Jeśli nie potrzebujesz pośrednika, zaoszczędzisz około 15 400 zł. Potrzebujesz wsparcia? Skorzystaj z pomocy agenta.

Działka objęta miejscowym planem zagospodarowania przestrzennego 2 MNuB - teren zabudowy mieszkaniowej jednorodzinnej (MN) z dopuszczeniem usług (U).

Wszystkie media w drodze przy działce, dojazd drogą asfaltową.

Dojazd ,ulicą Rybnicką, do centrum Gliwic niecałe 15 min (ok 8 km)

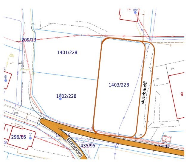
Dodatkowo od strony sąsiedniej działki, prawy długi bok, służebność dojazdu - pas 4 m - wskazane na szkicu.

W okolicy znajdują się:
- przedszkole 420 m,
- szkoła podstawowa 780 m,
- apteka 415 m,
- supermarket DINO 400 m,
- najbliższy przystanek 510 m.

Zapraszam serdecznie do kontaktu oraz wizji lokalnej.

  • ul. Brzozowa, Żernica, gmina Pilchowice, powiat gliwicki  
  • Na sprzedaż działka budowlana o powierzchni 1 294 m²  
  • Plan w serwisie geoportal.gov.pl Otwórz plan
  • Numer ewidencyjny działki 1403/228
  • Dojazd asfalt
  • Ogrodzenie bez ogrodzenia
  • Media woda, kanalizacja, prąd, gaz
  • Cena do negocjacji  
  • Oferta bezpośrednio od właściciela dodana ponad miesiąc temu i zaktualizowana ponad tydzień temu
Ta nieruchomość może być Twoja od.. sprawdź
103000 zł (20%) Okres spłaty: 30 lat

Podobne działki na sprzedaż

1
Działka budowlana Pilchowice, ul. Dolna Wieś

450 000

1167

Działka położona jest w Pilchowicach , przy ulicy Dolna Wieś obok numeru 25. Działka posiada własną studnie , wzdłuż działki od strony ulicy dostępne są media : kanalizacja , gaz , prąd jak również dostęp do internetu (światłowód).

Zobacz ogłoszenie
7
Działka budowlana Pilchowice, ul. Trześniówka

510 000

1600

Działka budowlana 1600 m2 w Pilchowicach koło Gliwic. Media w drodze. Prywatny dojazd do działki. Blisko lasu. Cicha okolica. Więcej informacji na Priv.

Zobacz ogłoszenie
7
Działka budowlana Żernica, ul. Olchowa

560 000

1560

Atrakcyjna działka budowlana na sprzedaż w miejscowości Żernica. Lokalizacja: Żernica (powiat Pilchowice), ul. Olchowa. Powierzchnia: 1560 m² nr działki: 1143/159 Bardzo atrakcyjna lokalizacja. Bezpośredni dostęp do drogi. Ujęta w MPZP gminy Pilchowice. Prąd, gaz, kanalizacja w drodze asfaltowej. ...

Zobacz ogłoszenie
6
Działka budowlana Nieborowice

420 000

1059

Oferujemy na sprzedaż atrakcyjną działkę budowlaną położoną w malowniczej wsi Nieborowice, zaledwie kilka minut od granicy Gliwic. Działka posiada prostokątny kształt, o wymiarach około 41,5m/25m, idealna na budowę domu jednorodzinnego. Znajduje się w spokojnej okolicy, co zapewnia komfort i ciszę....

Zobacz ogłoszenie
6
Działka budowlana Leboszowice, ul. Miodowa

365 000

1237

Witam, do zaoferowania działka budowlana z projektem domu i pozwoleniem na budowę. Kupujesz dzisiaj i dzisiaj zaczynasz budować wymarzony dom. Na zdjęciach naniesiona wizualizacja domu oraz aranżacja zagospodarowania terenu. Osobą zainteresowanym mogę przesłać rzuty kondygnacji. Parametry działki:...

Zobacz ogłoszenie
13
Działka budowlana Żernica, ul. Lawendowa

437 800

1084

Lawendowa Żernica to wyjątkowa inwestycja, która łączy nowoczesny komfort z malowniczym otoczeniem natury. Położona niedaleko Gliwic, w sercu urokliwego Parku Krajobrazowego, oferuje przyszłym mieszkańcom niespotykaną harmonię życia wśród zieleni, lasów i łąk. Nasze osiedle to miejsce, gdzie spokój ...

Zobacz ogłoszenie