Mostowo

działka budowlana na sprzedaż Bez pośrednika

Działka budowlana Mostowo
Cena
4 980 000
Powierzchnia
1 ha
Cena za m²
497
Mostowo · 4 980 000 zł

Ogłoszenie właściciela - bez pośredników

Działka budowlana Mostowo. Zdjęcie 1
Działka budowlana Mostowo. Zdjęcie 1

Bez pośrednika. Oszczędzasz 149 400 zł na prowizji pośrednika!

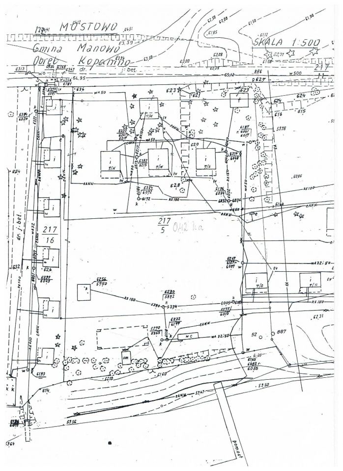
Sprzedam O.W.Czapla 76-015 Mostowo Gmina Manowo. Powiat Zachodnio-Pomorski.
Powieszchnia 10020 met. kw. Dz. nr 217/5 i 217/22 obręb Kopanino.
Media :
Woda
Kanalizacja
Prąd-siła.
Wszystkie media na terenie.
Teren przylega bezpośrednio do J .Rosnowskiego. Długość linii brzegowej ok.140 met.
20 domków drewnianych .Miejsc noclegowych 122.
Świetlica 90 met.kw.
Kontener sanitarny/natryski 3 szt ,umywalki 2 szt .kabiny -damska i męska po 1 szt wc/.
Suszarnia, magazyn blaszany.

Możliwość zabudowy szeregowej lub domków wolno stojących około 26 /oferta dla dewelopera /.
Teren położony 19 km od Koszalina, 28 od Mielna -70 mtr. od drogi nr 11.

  • Mostowo, gmina Manowo, powiat koszaliński
  • Na sprzedaż działka budowlana o powierzchni 10020 m² (1 ha).
  • Długość: 140 m, szerokość: 26 m
  • Media: kanalizacja
  • Oferta dodana bezpośrednio przez właściciela ponad miesiąc temu i zaktualizowana ponad tydzień temu
Wróć
Największa baza ogłoszeń bez pośredników
Zarejestruj się, aby przejść dalej
lub

Kontynuując akceptujesz
Regulamin i Politykę prywatności

Masz już konto na adresowo.pl?
Zaloguj się

Mamy dla Ciebie kredyt hipoteczny z niską ratą! Chcesz poznać szczegóły?

Kontakt z VeloBank:
- ofertę, wniosek i decyzję o przyznaniu kredytu w procesie online,
- wsparcie eksperta hipotecznego na każdym kroku,
- kredyt do 90% wartości nieruchomości.





Wyrażam zgodę na przetwarzanie moich danych osobowych zawartych w formularzu na stronie adresowo.pl przez VeloBank S.A. z siedzibą w Warszawie przy Rondo Ignacego Daszyńskiego 2C (Bank), a tym samym na ich przetwarzanie, w tym profilowanie, przez Bank w celu marketingu produktów i usług Banku za pośrednictwem rozmowy telefonicznej i sms. Zgoda może być w każdej chwili wycofana. Cofnięcie zgody nie ma wpływu na zgodność z prawem przetwarzania danych przed jej wycofaniem.