Ogłoszenie usunięte

Działka na sprzedaż bez pośredników
ul. Bukowa Górki

Działka budowlana Górki, ul. Bukowa. Zdjęcie 1

Działka na sprzedaż bez pośredników Górki ul. Bukowa

-
-
1 241
Bezpośrednio od właściciela

Jeśli nie potrzebujesz pośrednika, zaoszczędzisz prowizję. Potrzebujesz wsparcia? Skorzystaj z pomocy agenta.

Szukasz miejsca, gdzie możesz stworzyć swój wymarzony dom lub zainwestować w przyszłość?
Górki pod Płockiem to lokalizacja, która łączy ciszę, naturę i świetną infrastrukturę. Oto 1241 m² idealnie położonej działki budowlanej – gotowej na Twój projekt życia.
Dlaczego właśnie ta działka?
️ Idealna powierzchnia – 1241 m² – przestrzeń, która daje wolność!
️ Możliwość podziału – stwórz dwa mniejsze grunty lub zaplanuj inwestycję.
️ Spokojna, zielona okolica – perfekcyjna dla rodzin, osób pracujących zdalnie, seniorów i wszystkich, którzy cenią balans między naturą a miastem.
️ Dojazd asfaltowy i oświetlenie uliczne – komfort przez cały rok.
️ Media w zasięgu ręki:
• prąd
• woda
• gaz ziemny
• światłowód – idealny do pracy zdalnej
• działka częściowo ogrodzona
Lokalizacja, która robi różnicę:
Tylko 11 km do Płocka (Auchan, OBI, Leroy Merlin)
3 km do Jeziora Ciechomickiego – weekendowy relaks na wyciągnięcie ręki
Nowobudowany żłobek
Sklep Dino – w pobliskim Dobrzykowie
Smażalnia ryb "Tawerna" – klimatyczne miejsce na rodzinne obiady
Górki – miejscowość o charakterze rekreacyjno-mieszkalnym, rozwijająca się, ale zachowująca kameralny, spokojny klimat
Dane techniczne:
Powierzchnia: 1241 m²
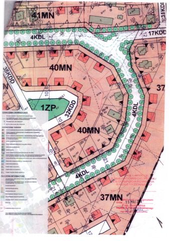
Status prawny: działka budowlana – pełna własność, KW bez obciążeń
Możliwość podziału na mniejsze działki
🧭 Miejsce, które daje więcej
Ta działka to przestrzeń do życia, wypoczynku i rozwoju – zaprojektowana z myślą o osobach, które chcą żyć w rytmie natury, ale nie chcą rezygnować z miejskich udogodnień.
Zaplanuj swój dom, ogród, przestrzeń dla dzieci lub spokojne miejsce do pracy zdalnej.
Skontaktuj się już dziś!
Umów się na prezentację i przekonaj się, że to miejsce naprawdę istnieje.
Nie zwlekaj – takiej okazji długo nie będzie!

  • ul. Bukowa, Górki, gmina Gąbin, powiat płocki  
  • Na sprzedaż działka budowlana o powierzchni 1 241 m²  
  • Dojazd asfalt
  • Ogrodzenie inne
  • Media woda, brak kanalizacji, prąd, gaz

Aktualne działki na sprzedaż

1
Działka budowlana Nowe Grabie

120 000

912

Nowe Grabie, działka budowlana nr 55/13 pow. 912 m2

Zobacz ogłoszenie
1
Działka budowlana Górki, ul. Bukowa

180 000

1346

Działka budowlana posiada miejscowy plan zagospodarowania przestrzennego i Księgę Wieczystą. Działka znajduje się w miejscowości Górki przy głównej asfaltowej ulicy (Bukowa ) Bezpośrednio przy działce znajdują się następujące media: -prąd -woda z kanalizacją -gaz Jest wykonany wjazd z ulicy Bukowej ...

Zobacz ogłoszenie
7
Działka budowlana Grzybów

100 000

4440

Działka budowlana wpisana do Miejscowego Planu Zagospodarowania Przestrzennego. Prąd i woda przy działce. Dojazd drogą z dwóch stron działki, po sąsiedzku zabudowania i gospodarstwa rolne. Województwo: Mazowieckie Powiat: płocki Gmina: Słubice Obręb: Grzybów Geoportal ID działki: 141911_2.0004.300...

Zobacz ogłoszenie
1
Działka budowlana Nowe Grabie, os. Pod Jodłami

180 000

800

Sprzedam działkę budowlaną. Nowe Grabie, Osiedle "Pod Jodłami", gmina Gąbin, powiat płocki. Nr 397/4, 396/4. O powierzchni 800 m2. Działka budowlana uzbrojona, z fundamentem i projektem domu "Koralgol 2G". Działka znajduje się ok. 5 km od Gąbina oraz 15 km od Płocka. Wokoło piękne lasy. Więcej i...

Zobacz ogłoszenie
1
Działka budowlana Grabie Polskie

170 000

2600

GRABIE POLSKIE Województwo mazowieckie, powiat płocki, gmina Gąbin. Pow. 2600 m2. Działka objęta jest miejscowym planem zagospodarowania przestrzennego - budownictwo mieszkaniowe jednorodzinne. Stan prawny uregulowany, bez obciążeń. Bez pośredników.

Zobacz ogłoszenie
1
Działka budowlana Gąbin, ul. Trakt Lipiński

134 400

1120

Sprzedam atrakcyjne działki budowlane w Gąbinie nad Nidą od strony Traktu Lipińskiego. Działki o powierzchni od 1120 do 1200m  Cena do negocjacji.

Zobacz ogłoszenie