Działka na sprzedaż bez pośredników
Czaplice  

Działka budowlana Czaplice. Zdjęcie 1

Działka na sprzedaż bez pośredników Czaplice

55 000
65 zł/m²
842
Czaplice - lokalizacja przybliżona
Bezpośrednio od właściciela

Jeśli nie potrzebujesz pośrednika, zaoszczędzisz około 1 700 zł. Potrzebujesz wsparcia? Skorzystaj z pomocy agenta.

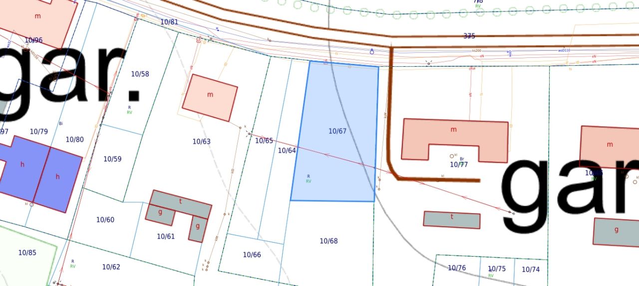
Na sprzedaż działka o powierzchni 842m2 przeznaczona pod zabudowę mieszkalną lub letniskową. Nieruchomość znajduje się niedaleko jeziora oraz terenów leśnych, pobliżu drogi nr 22.

Przyłącza do mediów (prąd, woda, kanalizacja, światłowód) usytuowane są przy granicy z działką.

  • Czaplice, gmina Człopa, powiat wałecki  
  • Na sprzedaż działka budowlana o powierzchni 842 m²  
  • Plan w serwisie geoportal.gov.pl Otwórz plan
  • Numer ewidencyjny działki 10/67
  • Wymiary Wymiary działki: 23,5x38,5x19,65x39,7
  • Dojazd asfalt
  • Ogrodzenie siatka
  • Media woda nieprzyłączona, kanalizacja, prąd nieprzyłączony
  • Oferta bezpośrednio od właściciela dodana ponad miesiąc temu i zaktualizowana ponad tydzień temu
Ta nieruchomość może być Twoja od.. sprawdź
11000 zł (20%) Okres spłaty: 30 lat

Podobne działki na sprzedaż

1
Działka budowlana Tuczno, ul. Marii Konopnickiej

39 900

365

Działki budowlane w Tucznie Na sprzedaż dostępne są trzy wyjątkowe działki budowlane: • Działka nr 59/1 o powierzchni 364 m² - zlokalizowana przy ulicy Konopnickiej. • Działka nr 59/2 o powierzchni 337 m² - zlokalizowana przy ulicy Zygmunta Augusta. • Działka nr 59/3 o powierzchni 539 m² - zlokali...

Zobacz ogłoszenie
6
Działka budowlana Tuczno

73 350

978

Na sprzedaż działki budowlane w miejscowości Tuczno, powiat Wałecki, województwo zachodniopomorskie, blisko lasów oraz około 1 km do jeziora. Niedaleko działek znajduje się stacja benzynowa oraz market Dino. Nr działki 20/4. Cena 75 zł/m². Cena podana jest za działkę o powierzchni 0,0978 ha. Numer...

Zobacz ogłoszenie
1
Działka budowlana Rudki

60 000

1700

Sprzedam bez pośredników cztery atrakcyjne działki budowlane położone w miejscowości Rudki ( woj. zachodniopomorskie). To idealne miejsce dla osób szukających spokoju, bliskości natury oraz przestrzeni do budowy wymarzonego domu. kluczowe informacje: -cztery działki, każda z nich ma 1700m2 -działki ...

Zobacz ogłoszenie
1
Działka budowlana Mirosławiec

39 000

277

Sprzedam działkę usługowo budowlaną w centrum Mirosławca 277 m2, za sklepem zabawkowym na przeciwko Biedronki koło boiska szkolnego. Informacje pod nr telefonu. cena 39 000.

Zobacz ogłoszenie
6
Działka budowlana Czapla

59 999

1328

Zależy nam na szybkiej sprzedaży, cena podlega negocjacji. Marzą Ci się weekendowe ucieczki z miast, a może po prostu pragniesz być bliżej natury? Odkryj malowniczą działkę w pobliżu lasu i rzeki! Czapla, gmina Wałcz Od granicy działki do zejścia do rzeki 80m! (przejście laskiem/łąką należąca do ...

Zobacz ogłoszenie
4
Działka budowlana Łowicz Wałecki

50 000

1000

Atrakcyjna działka budowlane na sprzedaż. Lokalizacja: Zachodniopomorskie, gmina Miłosławiec, wieś Łowicz, w kierunku Kalisz Pomorski. Cechy: - Sąsiedztwo: lasy, jeziora. - Każda około 1000 m. - Przy drodze A10 (przyszła S10).

Zobacz ogłoszenie