Działka na sprzedaż bez pośredników
ul. Jaśminowa Brzeszcze

Działka budowlana Brzeszcze, ul. Jaśminowa. Zdjęcie 1

Działka na sprzedaż bez pośredników Brzeszcze ul. Jaśminowa

252 510
190 zł/m²
1 329
Brzeszcze, Jaśminowa - lokalizacja przybliżona
Bezpośrednio od właściciela

Jeśli nie potrzebujesz pośrednika, zaoszczędzisz około 7 600 zł. Potrzebujesz wsparcia? Skorzystaj z pomocy agenta.

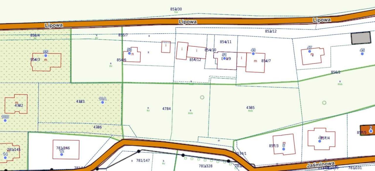
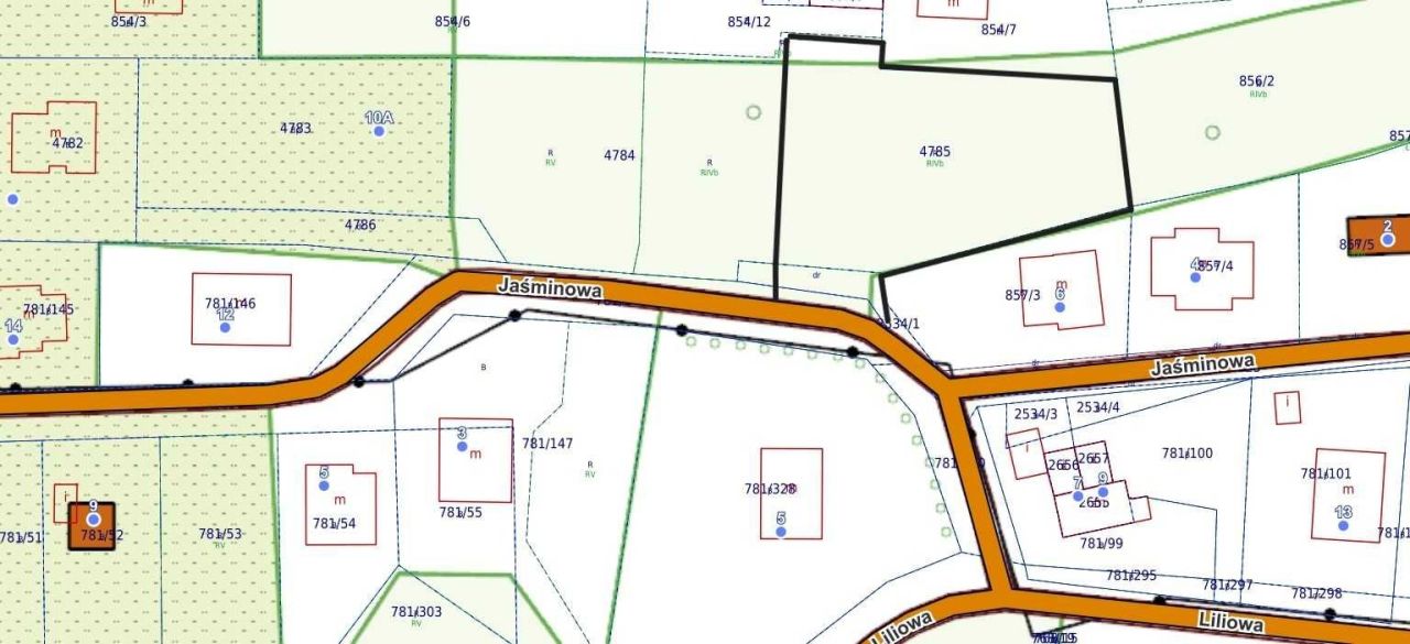
Działka budowlana w centrum Brzeszcz, ul. Jaśminowa.

Nr działki: 4785.
Powierzchnia: 0,1329 ha.

Dojazd drogą asfaltową.
Na działce: woda, kanalizacja, prąd i gaz.

W sąsiedztwie zabudowa mieszkaniowa jednorodzinna.

Dodatkowo:
Działka 4784 również należy do mnie.
Info tel.

  • ul. Jaśminowa, Brzeszcze, powiat oświęcimski  
  • Na sprzedaż działka budowlana o powierzchni 1 329 m²  
  • Dojazd asfalt
  • Media kanalizacja
  • Oferta bezpośrednio od właściciela dodana ponad miesiąc temu
Ta nieruchomość może być Twoja od.. sprawdź
51000 zł (20%) Okres spłaty: 30 lat

Podobne działki na sprzedaż

7
Działka budowlana Brzeszcze Siedliska, ul. Piekarska

167 000

1005

Na sprzedaż atrakcyjna działka położona w zielonej, spokojnej części Brzeszcz, niedaleko centrum miasta. Nieruchomość znajduje się przy cichej, kameralnej ulicy Piekarskiej idealnej dla osób ceniących bliskość natury, a jednocześnie wygodę życia miejskiego. 📐 Podstawowe informacje Numer działki: 1...

Zobacz ogłoszenie
1
Działka budowlana Bulowice, ul. Południowa

210 000

4200

Na sprzedaż oferuję atrakcyjną działkę o powierzchni 42 arów, zlokalizowaną przy ulicy Południowej po stronie Bulowic. Jest to teren o dużym potencjale, który idealnie nadaje się dla osób szukających prywatności i przestrzeni. Istnieje również możliwość podziału działki na pół, jeśli ktoś byłby zain...

Zobacz ogłoszenie
20
Działka budowlana Przecieszyn, ul. Sadowa

190 000

1920

OPIS NIERUCHOMOŚCI Na sprzedaż nieruchomość o łącznej powierzchni 1920 m² (19,2 ara) w miejscowości Przecieszyn przy ul. Sadowej. Składa się z dwóch odrębnych działek budowlanych (zaznaczonych na zrzucie mapy), sprzedawanych razem. Wymiary całej nieruchomości to ok. 21 m szerokości na 92 m długośc...

Zobacz ogłoszenie
2
Działka budowlana Brzeszcze

240 000

2670

Na sprzedaż działka budowlana (M3) o łącznej powierzchni 26.7 ar. Możliwość podziału na 2 mniejsze. Media: - prąd na działce - woda w drodze (ul. Lawendowa) - gaz na działce obok Dojazd bezpośrednio z ul. Ofiar Oświęcimia, lub możliwość zagospodarowania drogi Lawendowej (droga prywatna 1/3 udziału...

Zobacz ogłoszenie
5
Działka budowlana Osiek

260 000

2980

Sprzedam działkę budowlaną o pow. całkowitej 2980 m². Kształt działki umożliwia podział działki na dwie osobne, na zdjęciach pokazana możliwość podziału. Media: - Prąd i gaz w działce. - Woda 80 m od działki. Dojazd do działki zagwarantowana służebnością po działkach sąsiednich. Spokojne i ciche...

Zobacz ogłoszenie
10
Działka budowlana Brzeszcze Wilcze Doły, ul. Ofiar Oświęcimia

269 000

1711

Na sprzedaż atrakcyjna, niezwykle urokliwie położona działka budowlana o powierzchni ponad 17 arów (nr ewidencyjny 3582/14), zlokalizowana w Brzeszczach w sąsiedztwie ul. Ofiar Oświęcimia 63. Jest to doskonała propozycja dla osób poszukujących przestrzeni, ciszy i natury, nie chcących jednocześnie r...

Zobacz ogłoszenie