Ogłoszenie usunięte

Działka na sprzedaż
ul. Niebyła Dobieszowice

Działka budowlana Dobieszowice, ul. Niebyła. Zdjęcie 1

Działka na sprzedaż Dobieszowice ul. Niebyła

-
-
1 508

Właściciel powierzył sprzedaż nieruchomości pośrednikowi. Możesz zadzwonić lub napisać do agenta za darmo.

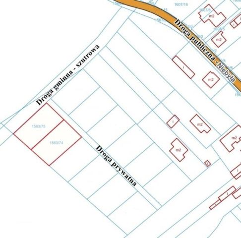
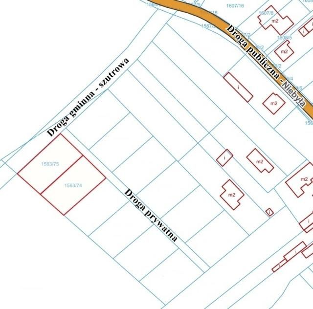
Na sprzedaż duża działka budowlana położona w wyjątkowej lokalizacji, przy samym lesie i nieopodal jeziora Rogoźnik - Dobieszowice ul. Niebyła (na granicy z Rogoźnikiem).

Teren ma łączną powierzchnię 1.508 m2 i składa się z dwóch działek geodezyjnych - możliwość sprzedaży tylko razem.

Działka ma kształt zbliżony do kwadratu i płaskie ukształtowanie oraz została wykarczowana, co pozwoli na szybsze rozpoczęcie budowy wymarzonego domu.

Wymiary działki znajdują się w galerii zdjęć.

Przeznaczenie działki w MPZP:
- podstawowe: zabudowa mieszkaniowa jednorodzinna,
- dopuszczalne: lokale użytkowe wbudowane w budynki mieszkalne, przeznaczone pod usługi: społeczne, konsumpcyjne, administracyjno-biurowe, zdrowia.

Maksymalna powierzchnia zabudowy: 30%

Dostęp do drogi publicznej odbywa się przez szutrową drogę gminna ze zjazdem na drogę prywatną. Wraz z zakupem działki, nabywa się udziały w drodze prywatnej (bez dodatkowych kosztów).

Media:
- woda i prąd (w drodze szutrowej),
- kanalizacja i gaz (w ul. Niebyłej).

Naprawdę wyjątkowa lokalizacja!
Cisza, spokój i tylko kilka domów w okolicy. Las zaraz przy wyjściu z domu, 10 minut spacerem od plaży nad jeziorem. W odległości do 5 minut samochodem znajduje się Biedronka, Stokrotka, Dino, przedszkole, szkoły, przystanek autobusowy, restauracje, punkty handlowo-usługowe.

Chętnie odpowiem na dodatkowe pytania! Magdalena Flak tel. [numer]
-
Pomogę w uzyskaniu kredytu hipotecznego na preferencyjnych warunkach.

Treść niniejszego ogłoszenia nie stanowi oferty handlowej w rozumieniu Kodeksu Cywilnego.

  • ul. Niebyła, Dobieszowice, gmina Bobrowniki, powiat będziński  
  • Na sprzedaż działka budowlana o powierzchni 1 508 m²  
  • Wymiary Długość: 38 m, szerokość: 41 m
  • Dojazd utwardzony
  • Ogrodzenie bez ogrodzenia
  • Ogłoszenie biura nieruchomości  

Aktualne działki na sprzedaż

3
Działka budowlana Dobieszowice, ul. 27 Stycznia

235 000

647

Działka budowlana w Dobieszowicach o pow 647m2, ma kształt prostokątny i znajduje się przy głównej drodze, ma utwardzoną drogę wewnętrzną. Nieruchomość jest uzbrojona: jest podłączenie prądu, do działki jest doprowadzona woda,, są warunki przyłącza gazu. Jest zezwolenie na budowę domu wraz z projekt...

Zobacz ogłoszenie
17
Działka budowlana Bobrowniki, ul. Słowackiego

259 000

740

Przedstawiam ofertę sprzedaży działek w Bobrownikach ul. Słowackiego - 15 min od Katowic! Przedmiotem oferty są dwie działki: - 740 m2 - 739m2 Możliwość zakupu dwóch działek! Szerokość działki 25m2, długość 30m Media blisko działki: - prąd w drodze - woda i kanalizacja w drodze ...

Zobacz ogłoszenie
5
Działka budowlana Bobrowniki

316 800

1584

Na sprzedaż nieruchomość gruntowa w dobrej lokalizacji, z bezpośrednim dostępem do drogi publicznej, w sąsiedztwie domów jednorodzinnych. Cicha, spokojna okolica, blisko do Centrum Bobrownik, jak i do Centrum Piekar. W pobliżu: - sklepy, - przystanki autobusowe, - Studio fryzur, - kościół, - szkoł...

Zobacz ogłoszenie
1
Działka budowlana Bobrowniki, ul. Henryka Sienkiewicza

250 000

1227

Działka przy drodze Sienkiewicza 243A, dostęp do kanalizacji uzgodniony z sąsiadem, odległość od granicy ok. 3m, woda w działce, ogrodzenie kute z przesuwną bramą cena do uzgodnienia, gaz w działce. Kanalizacja burzowa w działce. Nieodpłatnie stodoła. Droga bruk, gł. podłoża 30 cm....

Zobacz ogłoszenie
4
Działka budowlana Dobieszowice

240 000

647

Działka znajduje się w Dobieszowicach 647m2+ droga dojazdowa (prywatna) Na działce nie widnieje żadne zadłużenie. Skrzynka z prądem widoczna na zdjęciu należy do działki. Gaz oraz przyłącze wody w drodze. Więcej informacji chętnie udzielę telefonicznie.

Zobacz ogłoszenie
1
Działka budowlana Bobrowniki Namiarki

199 000

1673

Witam , na sprzedaż działka budowlana na urokliwym osiedlu domów jednorodzinnych w dzielnicy Namiarki, jest to dzielnica Bobrownik granicząca bezpośrednio z CENTRUM Piekar Śląskich. Bardzo spokojna ,cicha okolica z racji ,że nie jest to droga przejazdowa ,bardzo małe natężenie ruchu w zasadzie sami ...

Zobacz ogłoszenie