Dom na sprzedaż bez pośredników
ul. Zamkowa Tułowice

dom wolnostojący, 3 pokoje Tułowice, ul. Zamkowa. Zdjęcie 1

Dom na sprzedaż bez pośredników Tułowice ul. Zamkowa

545 000
5 619 zł/m²
97
3 pok.
Tułowice, Zamkowa - lokalizacja przybliżona
Bezpośrednio od właściciela

Jeśli nie potrzebujesz pośrednika, zaoszczędzisz około 16 400 zł. Potrzebujesz wsparcia? Skorzystaj z pomocy agenta.

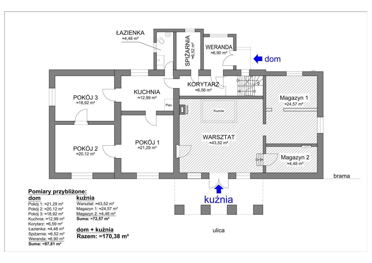
Oferuję na sprzedaż nieruchomość z ogromnym potencjałem inwestycyjnym, położoną w spokojnej i zielonej okolicy miejscowości Tułowice (gmina Tułowice, powiat opolski).

Opis nieruchomości:

Na działce (nr ewid. 637) o powierzchni 18 arów znajdują się:

1. Wolnostojący dom wraz z warsztatem (kuźnią):
- Dom mieszkalny o pow. 97,81 m², składający się z:
- 3 pokoi,
- kuchni,
- łazienki,
- spiżarni,
- korytarza,
- werandy.
- Warsztat (kuźnia) - 3 pomieszczenia o łącznej pow. 72,57 m² (idealne pod działalność rzemieślniczą, magazyn lub pracownię).

Nad całością znajduje się poddasze do adaptacji - możliwość stworzenia dodatkowej przestrzeni mieszkalnej.
Budynek jest także w części podpiwniczony oraz posiada kotłownię (oddzielna/druga piwnica).

2. Wolnostojący piętrowy budynek gospodarczy z garażem o pow. ok. 150 m².


Stan techniczny:
- Budynek przeznaczony do generalnego remontu.
- Możliwość adaptacji lub/oraz rozbudowy.


Działka i otoczenie:
- powierzchnia działki: 18 arów (nr ewid. 637),
- działka ogrodzona płotem z dostępem do drogi publicznej,
- spokojna, cicha okolica,
- w sąsiedztwie zabudowa jednorodzinna i tereny zielone,
- blisko park oraz Technikum Leśne - idealne miejsce dla osób ceniących naturę i spokój.


Lokalizacja:
Tułowice, ul. Zamkowa 8 - dogodny dojazd do Nysy i Opola (m.in. stacja PKP).


Cena:
545 000 zł.


Kontakt:
Kamila
Rafał 


Na życzenie udostępnimy więcej zdjęć.

  • ul. Zamkowa, Tułowice, powiat opolski  
  • Na sprzedaż dom wolnostojący o powierzchni 97 m², 3 pokoje  
  • Sizing Streamline Icon: https://streamlinehq.com
    Działka 1 800 m²  
  • Budynek w stanie do remontu  
  • Piwnica, garaż  
  • Media woda, prąd
  • Oferta bezpośrednio od właściciela dodana ponad miesiąc temu i zaktualizowana ponad tydzień temu
Ta nieruchomość może być Twoja od.. sprawdź
109000 zł (20%) Okres spłaty: 30 lat

Podobne domy na sprzedaż

10
dom wolnostojący, 4 pokoje Grodziec

555 000

90

4 pok.

Nowy dom na sprzedaż położony w Grodźcu koło Ozimka. Szczegóły nieruchomości: • Powierzchnia domu 90 m2 • Liczba pokoi 4 • Kuchnia - aneks z pomieszczeniem na spiżarnię • Działka o powierzchni 700 m2 • Łazienka z wanną i prysznicem, druga osobna toaleta • Okna skierowa...

Zobacz ogłoszenie
14
dom wolnostojący, 6 pokoi Antoniów

490 000

120

6 pok.

Szukasz domu jak najbliżej Ozimka, najlepiej na uboczu, w małej miejscowości, gdzie las jest kilka metrów od domu? Na sprzedaż nieruchomość zlokalizowana w miejscowości Antoniów gm. Ozimek. Jest to dom wolnostojący, parterowy z użytkowym poddaszem. Powierzchnia ok. 120 m2. Parter: - wiatrołap ok. 9...

Zobacz ogłoszenie
14
dom wolnostojący, 5 pokoi Radomierowice, ul. Wolności

520 000

110

5 pok.

Piękny dom po remoncie Kompleksowym wymienione wszystko co możliwe bardzo ladnie sie prezentuje nowa instalacja wodna kanalizacyjna wlasna oczysczalnia scieków bio elektryczna plus nowe przylacze plus nowa skrzynka i licznik Piękna działka 14arow blisko lasu W spokojnej okolicy Blisko Opol...

Zobacz ogłoszenie
11
dom wolnostojący, 5 pokoi Jełowa Jeżów-Ług, ul. Leśna

549 000

120

5 pok.

Dom, w którym rano budzi Cię śpiew ptaków, a wieczorem usypia szum lasu. Dom położony jest w unikalnej enklawie, z jednej strony otulony ścianą lasu brzozowego, a z drugiej otwarty na łąkę. To miejsce, gdzie natura nie jest tylko dodatkiem, ale głównym mieszkańcem. Dom zawieszony między zielenią, a ...

Zobacz ogłoszenie
3
dom wolnostojący, 6 pokoi Domecko

545 000

109

6 pok.

KUPUJĄCY NIE PŁACI PROWIZJI!!! Proponujemy sprzedaż nowo budowanego domu w stanie surowym zamkniętym za cenę 545000 zł z garażem dwustanowiskowym. Dalsza część budowy przechodzi na stronę klienta kupującego, który od tego momentu w pełni decyduje o wyborze materiałów do zastosowania oraz a...

Zobacz ogłoszenie
19
dom wolnostojący, 5 pokoi Szczedrzyk, ul. Dębskiej Kuźni

560 000

96

5 pok.

Na sprzedaż dom wolnostojący położony w miejscowości Szczedrzyk, przy ul. Dębska Kuźnia 10, ok. 19 km od Opola. Nieruchomość znajduje się na pięknej, płaskiej działce o powierzchni 13 arów, w cichej i spokojnej okolicy, w sąsiedztwie lasów opolskich oraz w pobliżu jeziora Turawskiego – idealne miejs...

Zobacz ogłoszenie