Dom na sprzedaż bez pośredników
Zielonka  

dom wolnostojący, 6 pokoi Zielonka. Zdjęcie 1

Dom na sprzedaż bez pośredników Zielonka

750 000
4 902 zł/m²
153
6 pok.
Zielonka - lokalizacja przybliżona
Bezpośrednio od właściciela

Jeśli nie potrzebujesz pośrednika, zaoszczędzisz około 22 500 zł. Potrzebujesz wsparcia? Skorzystaj z pomocy agenta.

Siedlisko o pow. 1969 m2 (ok. 20 arów) z bezpośrednim dostępem do jeziora Zieloneckiego, raj dla wędkarza oraz osób pragnących ciszy i spokoju wśród przyrody. 7 km od Szczytna.

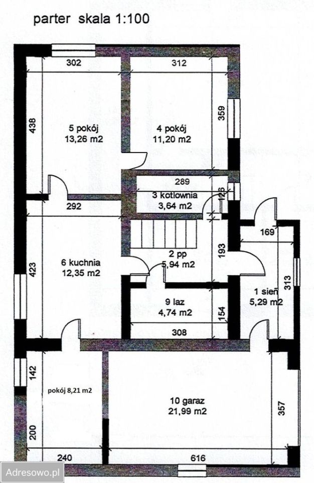
Dom jednorodzinny z garażem i poddaszem użytkowym, posiadający praktycznie dwa oddzielne mieszkania (schemat na zdjęciach).

Parter - 3 pokoje (w salonie otwarty kominek) i kuchnia, łazienka z WC, przedpokój, kotłownia oraz garaż.

Poddasze - 3 pokoje, kuchnia i WC oraz przedpokój i garderoba/spiżarnia.

Dom ogrzewany z pieca na opał stały (węgiel/drewno). Po remoncie elewacji, okna Jocz, nowa instalacja grzewcza, nad dawnym tarasem dobudowane dwa pokoje z możliwością dostawienia tarasu.

Ponadto na działce znajduje się fundament z wylewką betonową pod budowę budynku gospodarczego o wym. 6 na 10 m.

Piękne miejsce do dalszej rozbudowy i zagospodarowania.

Powierzchnia użytkowa domu: 153,2 m2 (w tym pow. parteru - 64,6 m2 plus 21,9 m2 garaż; pow. poddasza - 66,7 m2)
Powierzchnia działki: 1969,00 m2
Rok budowy domu: 1986, remont 2008-2010 i 2018 r.
Lokalizacja: Zielonka
Wykończenie domu: mieszkanie na poddaszu nie wymaga remontu; parter do odświeżenia i ewentualnego remontu wg własnej aranżacji.

  • Zielonka, gmina Szczytno, powiat szczycieński  
  • Na sprzedaż dom wolnostojący o powierzchni 153 m², 6 pokoi wybudowany w 1986 roku
  • Sizing Streamline Icon: https://streamlinehq.com
    Działka 1 969 m²  
  • Budynek w stanie do zamieszkania  
  • Taras, garaż  
  • Ogrzewanie węglowe
  • Materiał budowy pustak
  • Dach blacha
  • Okna plastikowe
  • Dojazd asfalt
  • Ogrodzenie siatka
  • Media woda, kanalizacja, prąd
  • Oferta bezpośrednio od właściciela dodana ponad miesiąc temu i zaktualizowana ponad tydzień temu
Ta nieruchomość może być Twoja od.. sprawdź
150000 zł (20%) Okres spłaty: 30 lat

Podobne domy na sprzedaż

21
dom wolnostojący, 3 pokoje Trelkówko

720 000

95

3 pok.

Sprzedam dom całoroczny położony w letniskowej miejscowości wśród lasów i jezior po kapitalnym remoncie w 2021r. Dom posiada dwa niezależne źródła ogrzewania: gazowe - z podziemnej butli i na drewno opałowe - kominek z płaszczem wodnym z automatyką sterowania. Dodatkowo w kuchni, łazienkach i na kor...

Zobacz ogłoszenie
15
dom wolnostojący, 4 pokoje Płozy

700 000

100

4 pok.

OGŁOSZENIE GRZECZNOŚCIOWE BEZ POŚREDNIKÓW Sprzedam dom całoroczny o pow. całkowitej 100,23 m2, w tym parter 54,70 m2 i piętro 45,83 m2, usadowiony na ładnie zagospodarowanej działce o pow. 2159 m2, położonej na uboczu wsi Płozy w gminie Szczytno, woj. Warmińsko-mazurskie (odległość do miasta Szczyt...

Zobacz ogłoszenie
8
dom letniskowy Marksewo

830 000

100

Na sprzedaż całoroczny dom letniskowy w urokliwej wsi Marksewo, gmina Szczytno. Idealne połączenie natury, wygody i nowoczesnych rozwiązań. Nieruchomość położona jest zaledwie 350 metrów od jeziora, w spokojnej okolicy otoczonej lasem i czystym powietrzem. Działka o powierzchni 900 m², jest ogrodzo...

Zobacz ogłoszenie
4
dom wolnostojący Romany

650 000

170

Dom jednorodzinny położony niedaleko Szczytna około 5 km.W pobliżu wiele jezior i lasów. Parter: kuchnia z jadalnią, hall, salon z kominkiem, kotłownia co, wc, łazienka, wyjście na taras.PIĘTRO:2 sypialnie, salon, łazienka.Poddasze :duży pokój rekreacyjny, 2 sypialnie, garderoba. Na każdej kondygnac...

Zobacz ogłoszenie
20
dom wolnostojący, 5 pokoi Dębówko

750 000

115

5 pok.

Na sprzedaż dom o powierzchni użytkowej 115m2 , garaż w jednej kubaturze budynku, a także piwnica pod całą powierzchnią domu. Dom stoi na dużej, malowniczej działce o powierzchni 2000 m2 z pięknym ogrodem. W bliskiej okolicy lasy i jeziora. 5 km do miejscowości Szczytno.

Zobacz ogłoszenie
8
dom wolnostojący Zielonka

809 000

155

Na sprzedaż dom mieszkalny o powierzchni użytkowej 155,32 m2, zlokalizowany w miejscowości Zielonka (woj.: warmińsko-mazurskie), wybudowany na podstawie projektu Osiek 88. 4 km od Szczytna, na działce o pow. 10 arów. Dom został wybudowany w 2012 roku, w technologii drewnianej szkieletowej. Rozkład...

Zobacz ogłoszenie