Dom na sprzedaż bez pośredników
Oblęgór  

dom wolnostojący Oblęgór. Zdjęcie 1

Dom na sprzedaż bez pośredników Oblęgór

320 000
1 067 zł/m²
300
Oblęgór - lokalizacja przybliżona
Bezpośrednio od właściciela

Jeśli nie potrzebujesz pośrednika, zaoszczędzisz około 9 600 zł. Potrzebujesz wsparcia? Skorzystaj z pomocy agenta.

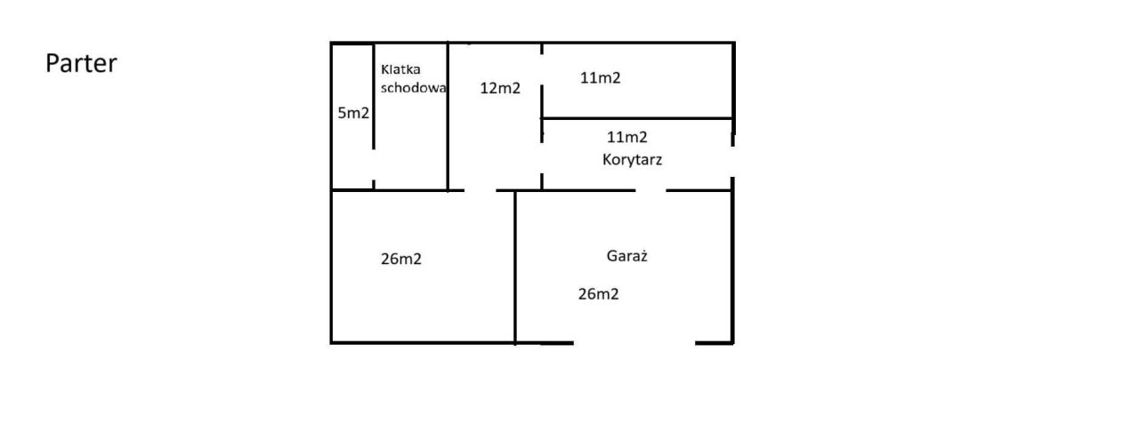
Na sprzedaż: Dom wolnostojący ok. 300 m² - Oblęgór, blisko Kielc

Na sprzedaż przestronny dom wolnostojący o powierzchni użytkowej ok. 300 m², położony w spokojnej i zielonej miejscowości Oblęgór, zaledwie kilkanaście minut od Kielc. Nieruchomość znajduje się na ustawnej działce o powierzchni 1300 m² (nr 888/6), z bezpośrednim dostępem do drogi publicznej.

Dom został wybudowany na przełomie lat 80. i 90. w technologii tradycyjnej z czerwonej cegły. Pokryty jest blachą falistą, okna drewniane. Budynek składa się z parteru oraz dwóch pełnych pięter. Pomieszczenia są przestronne, wysokie i dobrze doświetlone.

Dom przeznaczony jest do gruntownego remontu lub przebudowy. Wnętrza są uprzątnięte, bez mebli i zbędnych rzeczy - gotowe do prac adaptacyjnych.

Wysokość pomieszczeń:
- Parter: ok. 2,26 m
- Piętra: ok. 2,70 m (bez wylewek)

Media:
- Woda
- Prąd
- Kanalizacja

Dodatkowe atuty:
- Duże podwórko za domem - idealne pod ogród, plac zabaw, altanę lub rekreację.
- Możliwość dokupienia sąsiedniej działki o pow. 1300 m² (nr 888/5) - naturalne przedłużenie posesji (łącznie aż 2600 m²), cena działki to 130 000 zł.
- Cicha, zielona okolica z bardzo dobrą infrastrukturą: sklepy, szkoły podstawowe, przystanki komunikacji publicznej.
- W odległości kilku kilometrów: zalew, centrum sportowe z basenem, trasy spacerowe.

To doskonała propozycja zarówno dla rodzin, jak i inwestorów poszukujących nieruchomości z potencjałem.

Cena: 350 000 zł

Zapraszam do kontaktu i na prezentację nieruchomości!

  • Oblęgór, gmina Strawczyn, powiat kielecki  
  • Na sprzedaż dom wolnostojący o powierzchni 300 m²  
  • Sizing Streamline Icon: https://streamlinehq.com
    Działka 1 300 m²  
  • Materiał budowy cegła
  • Dach blacha
  • Okna drewniane
  • Media kanalizacja
  • Oferta bezpośrednio od właściciela dodana ponad miesiąc temu i zaktualizowana ponad tydzień temu
Ta nieruchomość może być Twoja od.. sprawdź
64000 zł (20%) Okres spłaty: 30 lat

Podobne domy na sprzedaż

9
gospodarstwo, 12 pokoi Raków, ul. Tadeusza Kościuszki

370 000

253

12 pok.

OGŁOSZENIE BEZPOŚREDNIE - BEZ PROWIZJI Oferuję na sprzedaż przestronny dom jednorodzinny zlokalizowany w spokojnej i urokliwej miejscowości Raków, przy ulicy Kościuszki. Dom idealny dla rodziny ceniącej spokój i bliskość przyrody oraz wygodny dojazd do większych miast. Idealny dla osób przedsiębior...

Zobacz ogłoszenie
5
gospodarstwo Drochów Górny

420 000

250

Na sprzedaż dom wraz z zabudowaniami w spokojnej, zielonej okolicy blisko Kielc. Po więcej informacji zapraszam do kontaktu

Zobacz ogłoszenie
4
dom wolnostojący Sędziejowice

199 000

200

Sprzedam budynek mieszkalno-gospodarczy, dwukondygnacyjny, na działce 20 arów. Dolna część budynku podzielona jest na 3 pomieszczenia. Dodatkowo w tylnej części domu znajduje się funkcjonująca kuchnia i łazienka oraz pomieszczenie gospodarcze, wymagające szybkiej wymiany pokrycia dachowego. Jednocz...

Zobacz ogłoszenie
3
dom wolnostojący, 4 pokoje Łopuszno, ul. Ogrodowa

420 000

240

4 pok.

Dom jednorodzinny, 12x12 m. wysoki parter, do zamieszkania, budynek gospodarczy 12x6 z garażem, działka 900 metrów, ogrodzona. Cena do negocjacji.

Zobacz ogłoszenie