Dom na sprzedaż bez pośredników
Sońsk  

dom wolnostojący Sońsk. Zdjęcie 1

Dom na sprzedaż bez pośredników Sońsk

765 000
6 652 zł/m²
115
Sońsk - lokalizacja przybliżona
Bezpośrednio od właściciela

Jeśli nie potrzebujesz pośrednika, zaoszczędzisz około 23 000 zł. Potrzebujesz wsparcia? Skorzystaj z pomocy agenta.

Na sprzedaż dom (działka nr 71/21 o powierzchni 640 m2).
Budynek w centrum Sońska, gotowy do zamieszkania.

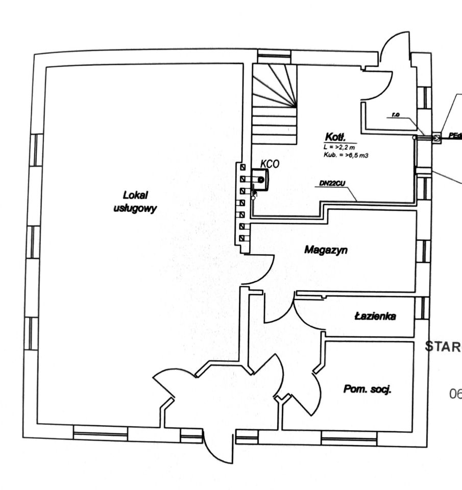
Dół budynku (pierwsze zdjęcie rzutu planu), z przeznaczeniem na działalność usługową z możliwością przerobienia na mieszkania:
- duże pomieszczenie ok. 54m2,
- łazienka, która jest przystosowana do podłączenia pralki i prysznica,
- mały pokoik,
- oraz pomieszczenie przystosowane do aranżacji kuchni.

We wszystkich pomieszczeniach na podłodze jest terakota. Na dole są dwa wejścia, od ulicy i od podwórka. Oba wejścia są to duże, przeszklone w całości drzwi z szybami antywłamaniowymi. Wszystkie okna na parterze mają również szyby antywłamaniowe.

Na górę (drugie zdjęcie rzutu planu) wchodzi się oddzielnym wejściem, a w skład pomieszczeń wchodzą:
- duża kuchnia ok. 14 m2,
- duża łazienka ok. 13,5 m2, a w niej wanna i kabina prysznicowa,
- trzy pokoje: ok. 21,8 m2, 13,5 m2 oraz 13,5 m2.

Wszystkie pomieszczenia na górze mają skosy dachowe. Na podłodze w pokojach są panele, a w kuchni, łazience i korytarzu terakota.

Cały dół i częściowo góra - ogrzewanie podłogowe. Na górze są również grzejniki.
Ogrzewanie gazowe LPG z przydomowego zbiornika 2700 l, który jest naszą własnością.
Budynek jest podłączony do kanalizacji gminnej.

  • Sońsk, powiat ciechanowski  
  • Na sprzedaż dom wolnostojący o powierzchni 115 m²  
  • Sizing Streamline Icon: https://streamlinehq.com
    Działka 640 m²  
  • Budynek w stanie do zamieszkania  
  • Ogrzewanie gazowe
  • Media woda, kanalizacja, prąd, gaz
  • Wyposażenie pralka
  • Oferta bezpośrednio od właściciela dodana ponad miesiąc temu i zaktualizowana ponad tydzień temu
Ta nieruchomość może być Twoja od.. sprawdź
153000 zł (20%) Okres spłaty: 30 lat

Podobne domy na sprzedaż

12
inny Ciechanów Centrum, ul. Fabryczna

zapytaj

70

Zamienię dom w Ciechanowie na siedlisko lub dom na wsi.Dom znajduje się blisko stacji PKP-Ciechanów Przemysłowy. Do Warszawy Choszczówki 50 min pociągiem osobowym .Dom w parku blisko centrum ,działka 560m2 pełna zieleni ,altanka, dom 70m2 parter część mieszkalna tj. 2 duże pokoje kuchnia łazienka i...

Zobacz ogłoszenie
20
dom wolnostojący, 6 pokoi Ciechanów Podzamcze, ul. Zbyszka i Danusi

720 000

110

6 pok.

Solidny dom 110m² + duża piwnica | Podzamcze | Widok na Zamek Na sprzedaż dom wolnostojący z 1987 roku, położony w jednej z najlepszych części Podzamcza. Idealna propozycja dla rodziny szukającej przestrzeni z potencjałem do własnej aranżacji. Parametry techniczne: * Powierzchnia mieszkalna: 110 m...

Zobacz ogłoszenie
25
dom wolnostojący, 3 pokoje Gąsocin, ul. 3 Maja

679 000

100

3 pok.

Zapraszam Państwa do zapoznania się z ofertą sprzedaży mojego prywatnego domu jednorodzinnego w miejscowości 06-440 Gąsocin (14 min. od Ciechanowa, 20min od Nasielska czy 55 min. od W-wa Gdańska), Dom jest w ok 90% nowy, po generalnym remoncie, wykonany w technologii z bala +wełna skalna +szalówka, ...

Zobacz ogłoszenie
11
bliźniak, 4 pokoje Ciechanów, ul. Wiśniowa

790 000

138

4 pok.

Sprzedam dom jednorodzinny w zabudowie bliźniaczej, składający się z: - trzech sypialni, - salonu, - kuchni, - dwóch łazienek, - biura, - kotłowni, - pralni, - garażu oraz strychu. W skład domu wchodzi również zadaszony taras wychodzący z salonu oraz kuchni, a także balkon. Dom jest ocieplony, po ...

Zobacz ogłoszenie
16
dom wolnostojący Niechodzin, ul. Przyjazna

799 000

120

Sprzedam nowy, wygodny dom 120 m2, świetnie wyposażony w cichej, zielonej okolicy pod Ciechanowem w miejscowości Niechodzin. Dom w bardzo dobrym stanie, z kompletnym wyposażeniem kuchni, łazienki, salonu. Wnętrze z potencjałem - przestronne pokoje dające znaczne możliwości aranżacyjne. Spory metra...

Zobacz ogłoszenie
11
dom wolnostojący Ciechanów, ul. Bartosza Głowackiego

750 000

155

Witam, Mam do sprzedania działkę o powierzchni 750m2 położoną w Ciechanowie przy ulicy Bartosza Głowackiego – dzielnica „Bloki” wraz z zabudową, w której skład wchodzą: • dom jednorodzinny o powierzchni użytkowej 155m2 • pawilon usługowy o powierzchni użytkowej 60m2 • garaż jednostanowiskowy wolnos...

Zobacz ogłoszenie