Skarżysko-Kamienna
ul. 1 Maja
kamienica na sprzedaż Bez pośrednika

kamienica Skarżysko-Kamienna, ul. 1 Maja
Cena
1 400 000
Powierzchnia
559
Cena za m²
2 504
Pow. działki
1093
Skarżysko-Kamienna · 1 400 000 zł

Ogłoszenie właściciela - bez pośredników

kamienica Skarżysko-Kamienna, ul. 1 Maja. Zdjęcie 1
kamienica Skarżysko-Kamienna, ul. 1 Maja. Zdjęcie 1

Bez pośrednika. Oszczędzasz 42 000 zł na prowizji pośrednika!

LOKALIZACJA

Kamienica mieści się przy ulicy 1 Maja 10 w Skarżysku-Kamiennej, w ścisłym centrum miasta, w bezpośrednim sąsiedztwie dworca PKP, supermarketu, restauracji, szkół i urzędów.


OPIS NIERUCHOMOŚCI

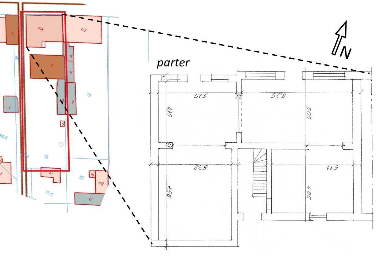
Całkowita powierzchnia użytkowa (bez piwnicy) to 559 m2.

Nieruchomość składa się z:
- lokalu usługowego (z możliwością podziału na dwa niezależne lokale) o powierzchni 143 m2,
- siedmiu mieszkań o powierzchni od 28 do 72 m2 (sześć z nich posiada balkony),
- poddasza o powierzchni 72 m2 (z możliwością adaptacji),
- piwnicy o powierzchni około 65 m2,
- budynku gospodarczego o powierzchni 84 m2,
- dużej prostokątnej działki o powierzchni 1093 m2.


STAN TECHNICZNY I MEDIA

Budynek główny posiada podłączenie do wszystkich mediów (prąd, woda, kanalizacja, gaz).

Dach i kominy przeszły gruntowny remont w 2019 roku. Stropodach jest pokryty papą termozgrzewalną GORDACH. W 2024 roku wykonano remont klatki schodowej wraz z wymianą okien oraz instalacją drzwi antywłamaniowych.


ROZKŁAD I STAN MIESZKAŃ

Mieszkania w budynku znajdują się na piętrach 1-3. Mają zróżnicowaną powierzchnię i stan techniczny:
- dwa rozkładowe mieszkania o powierzchni 64 m2 po gruntownym remoncie, z oknami plastikowymi i dwoma balkonami w każdym mieszkaniu,
- dwie kawalerki (28 i 32 m2) z oknami plastikowymi, oddzielnymi kuchniami, balkonami i instalacją gazową,
- mieszkanie rozkładowe o powierzchni 72 m2 do remontu, z balkonem i dostępem do sieci gazowej,
- dwie kawalerki do remontu (35 i 37 m2) z dostępem do sieci gazowej.

W sumie około 2/3 budynku są w dobrym stanie technicznym i nie wymagają wkładu finansowego. 1/3 budynku jest do remontu.


INFORMACJE DODATKOWE

Lokal usługowy jest obecnie użytkowany jako restauracja, a sześć z siedmiu mieszkań jest zamieszkanych. Istnieje możliwość przepisania umów najmu na kupującego albo opróżnienia lokali przed sprzedażą.

  • ul. 1 Maja, Skarżysko-Kamienna, powiat skarżyski
  • Na sprzedaż kamienica o powierzchni 559 m²
  • Działka 1093 m²
  • Budynek w stanie do remontu, z osobną kuchnią
  • Balkon, bez piwnicy, ogrzewanie gazowe
  • Dach: papa, okna plastikowe
  • Media: woda, kanalizacja, prąd, gaz
  • Oferta dodana bezpośrednio przez właściciela ponad miesiąc temu i zaktualizowana ponad tydzień temu
Wróć
Największa baza ogłoszeń bez pośredników
Zarejestruj się, aby przejść dalej
lub

Kontynuując akceptujesz
Regulamin i Politykę prywatności

Masz już konto na adresowo.pl?
Zaloguj się

Mamy dla Ciebie kredyt hipoteczny z niską ratą! Chcesz poznać szczegóły?

Kontakt z VeloBank:
- ofertę, wniosek i decyzję o przyznaniu kredytu w procesie online,
- wsparcie eksperta hipotecznego na każdym kroku,
- kredyt do 90% wartości nieruchomości.





Wyrażam zgodę na przetwarzanie moich danych osobowych zawartych w formularzu na stronie adresowo.pl przez VeloBank S.A. z siedzibą w Warszawie przy Rondo Ignacego Daszyńskiego 2C (Bank), a tym samym na ich przetwarzanie, w tym profilowanie, przez Bank w celu marketingu produktów i usług Banku za pośrednictwem rozmowy telefonicznej i sms. Zgoda może być w każdej chwili wycofana. Cofnięcie zgody nie ma wpływu na zgodność z prawem przetwarzania danych przed jej wycofaniem.