Dom na sprzedaż bez pośredników
Sanniki  

bliźniak, 5 pokoi Sanniki. Zdjęcie 1

Dom na sprzedaż bez pośredników Sanniki

650 000
4 333 zł/m²
150
5 pok.
Sanniki - lokalizacja przybliżona
Bezpośrednio od właściciela

Jeśli nie potrzebujesz pośrednika, zaoszczędzisz około 19 500 zł. Potrzebujesz wsparcia? Skorzystaj z pomocy agenta.

Osiedle Młynarska, Sanniki

BEZ PROWIZJI I PCC / OFERTA BEZPOŚREDNIA

- Dom z 4 sypialniami, gabinetem, salonem, kuchnią, dwiema łazienkami i wiatrołapem.
- WŁASNY GARAŻ !
- Własny ogródek
- Nowe budownictwo
- Bardzo niskie koszty utrzymania.

Oferta
Przedmiotem ogłoszenia jest 5 pokojowy segment położony w inwestycji Osiedle Młynarska. To nowoczesny dom o powierzchni 150m kw. Do każdego z segmentów przynależy ogród, miejsca parkingowe przed domem i garaż. Cechą inwestycji jest wysoki standard i spokojna lokalizacja.
Osiedle Młynarska będzie składać się z 18 segmentów z pełną infrastrukturą techniczną: Woda, kanalizacja, prąd, droga dojazdowa oraz wybrukowane podjazdy.
Osiedle zamknięte !
Cena domu w standardzie deweloperskim. Rozpoczęcie budowy: Wiosna 2025.

STANDARD WYKONANIA DOMÓW :

Nieruchomość będzie wykonana z pustaka ceramicznego, trzyszybowe okna PCV, ściany ocieplone styropianem grafit lambda 0.031, dach blacha modułowa BUDMAT, tynki gipsowe, elektryka, ogrzewanie podłogowe domu, pompa ciepła lub ogrzewanie gazowe, elewacja, działka ogrodzona, teren wyrównany, wybrukowany podjazd do garażu i dojście do domu.

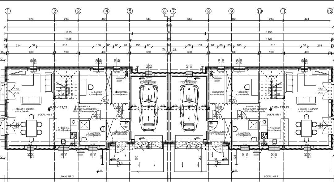
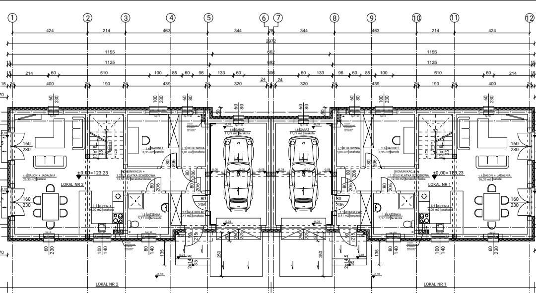
ROZKŁAD

Parter składa się z:
- Wiatrołap 3,41m2
- Komunikacja-Schody 12,5m2
- Łazienka 5,17m2
- Gabinet 8,35m2
- Kuchnia-Aneks 6m2
- Salon-Jadalnia 26,33m2
- Garaż 17,79m2
- Kotłownia 3,88m2
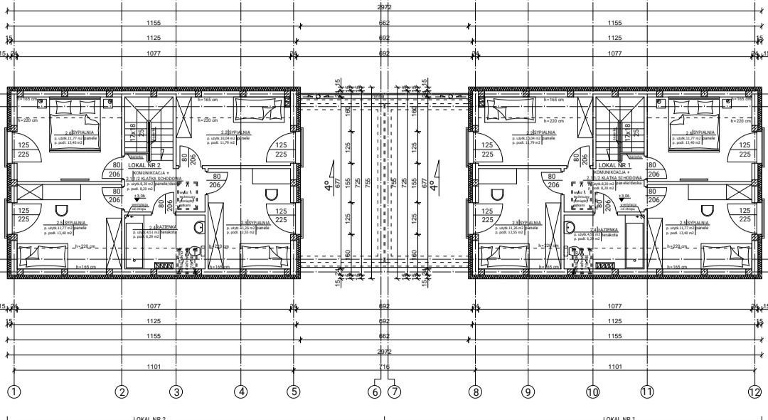
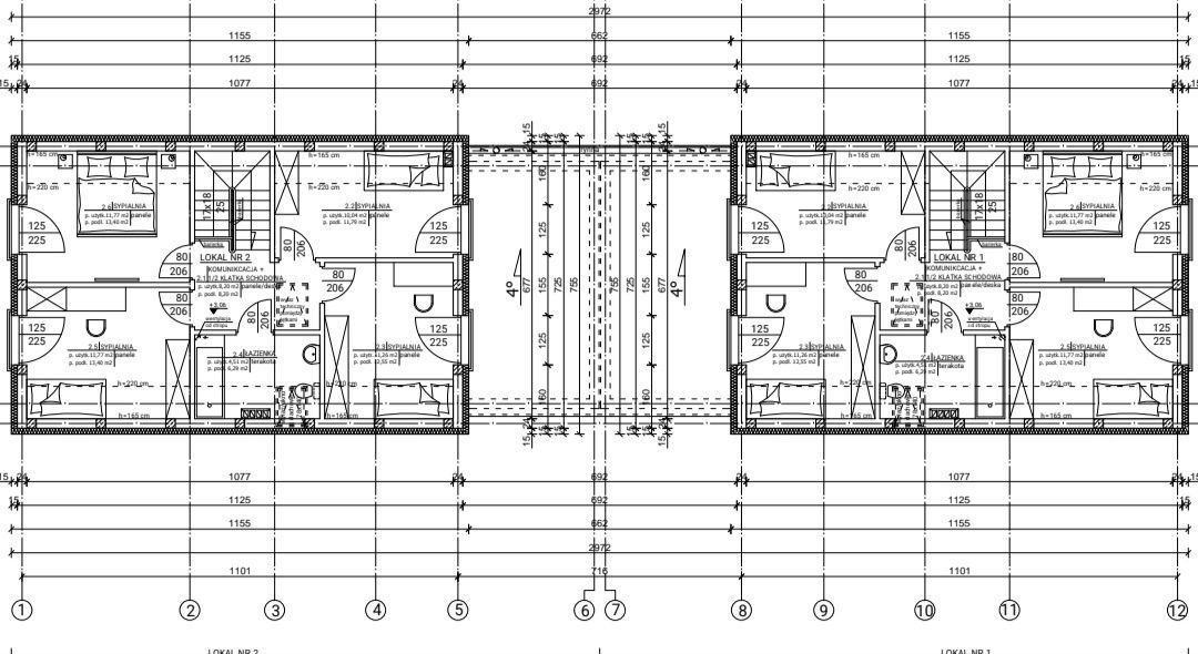
Pietro składa się z:
- Komunikacja-Schody 8,2m2
- Sypialnie nr 1 11,79 (10,04)m2
- Sypialnia nr 2 12,55 (11,26)m2
- Sypialnia nr 3 13,40 (11,77) m2
- Sypialnia nr 4 13,40 (11,77)m2
- Łazienka 6,29 (4,51)m2

Zapraszam do kontaktu i rezerwacji.

  • Oferta z rynku pierwotnego
  • Sanniki, powiat gostyniński  
  • Na sprzedaż bliźniak o powierzchni 150 m², 5 pokoi wybudowany w 2025 roku
  • Sizing Streamline Icon: https://streamlinehq.com
    Działka 450 m²  
  • Garaż  
  • Ogrzewanie pompa ciepła
  • Materiał budowy pustak ceramiczny
  • Dach blacha
  • Okna plastikowe
  • Media kanalizacja
  • Oferta bezpośrednio od właściciela dodana ponad miesiąc temu i zaktualizowana ponad tydzień temu
Ta nieruchomość może być Twoja od.. sprawdź
130000 zł (20%) Okres spłaty: 30 lat

Podobne domy na sprzedaż

3
budynek wielorodzinny, 4 pokoje Gostynin, ul. Bierzewicka

624 000

122

4 pok.

Dom w Gostyninie - ul. Bierzewicka Na sprzedaż dom o powierzchni użytkowej 122 m² położony na działce o powierzchni 1244 m² (ok. 30m × 40m). Budynek składa się z dwóch kondygnacji: • Parter – korytarz, kuchnia, dwa pokoje, pomieszczenie np. na garderobę, łazienka + kotłownia • Piętro – korytarz...

Zobacz ogłoszenie
8
dom wolnostojący, 5 pokoi Sanniki, ul. Żabia

569 000

150

5 pok.

Sprzedam dom o pow.ok 150m2 plus garaż wolnostający ok.40m2 na działce o pow.685 m2 w Sannikach na osiedlu domów jednorodzinnych.Dom budowany metodą tradycyjną ogrzewanie ekogroszek. Na górze 2 pokoje.kuchnia i łazienka z wanną na dole 3 pokoje łazienka prysznic osobne wc.Podłączenie woda , prąd k...

Zobacz ogłoszenie
7
bliźniak, 3 pokoje Białe

595 000

91

3 pok.

Na sprzedaż nowoczesny bliźniak o powierzchni użytkowej 91 m², usytuowany na zadbanej działce 450 m², w wyjątkowej lokalizacji – zaledwie 300 metrów od Jeziora Białego, jednego z najczystszych jezior na Mazowszu. Otoczenie lasów, cisza i bliskość Gostynińsko-Włocławskiego Parku Krajobrazowego sprawi...

Zobacz ogłoszenie
2
dom wolnostojący, 6 pokoi Sanniki, ul. Wincentego Witosa

560 000

170

6 pok.

Sprzedam dom w Sannikach na osiedlu Witosa. Dom znajduje się przy główniej drodze. 6 pokoi 2 kuchnie 2 łazienki i 2 toalety. Posiada 2 oddzielne wejścia, także mogą w nim zamieszkać dwie rodziny. ogrzewanie zarówno gazowe jak i olejowe. Na działce znajduje się także budynek gospodarczy z dwoma gara...

Zobacz ogłoszenie
8
dom wolnostojący Gostynin, ul. 18 Stycznia

599 000

143

Sprzedam nieruchomość zabudowaną o zróżnicowanych funkcjach i dużym potencjale. Możliwość połączenia funkcji mieszkalnej z działalnością gospodarczą. Nieruchomość położona jest w miejscowości Gostynin, przy drodze o nawierzchni asfaltowej. Działka o powierzchni 2650 m2, zabudowana budynkiem murowany...

Zobacz ogłoszenie
15
gospodarstwo, 3 pokoje Białotarsk

660 000

100

3 pok.

OPIS Na sprzedaż nieruchomość-siedlisko z dużym potencjałem na urokliwej mazowieckiej wsi. OTOCZENIE Nieruchomość znajduje się we wsi Białotarsk, gmina Gostynin, powiat gostyniński. Siedlisko znajduje się w niedalekim sąsiedztwie pojezierza gostynińsko-włocławskiego, blisko natury, a także infra...

Zobacz ogłoszenie