Dom na sprzedaż bez pośredników
Rzeszów  

NOWA OFERTA
dom wolnostojący, 5 pokoi Rzeszów. Zdjęcie 1

Dom na sprzedaż bez pośredników Rzeszów

1 250 000
10 121 zł/m²
123
5 pok.
Rzeszów - lokalizacja przybliżona
Bezpośrednio od właściciela

Jeśli nie potrzebujesz pośrednika, zaoszczędzisz około 37 500 zł. Potrzebujesz wsparcia? Skorzystaj z pomocy agenta.

Na sprzedaż dom wolnostojący w Rzeszowie, położony przy bocznej ulicy od Podkarpackiej. Nieruchomość idealnie sprawdzi się jako przestrzeń mieszkalna lub baza pod działalność gospodarczą. Budynek zrealizowany w oparciu o projekt typowy W-0426 SOB Inwestprojekt.

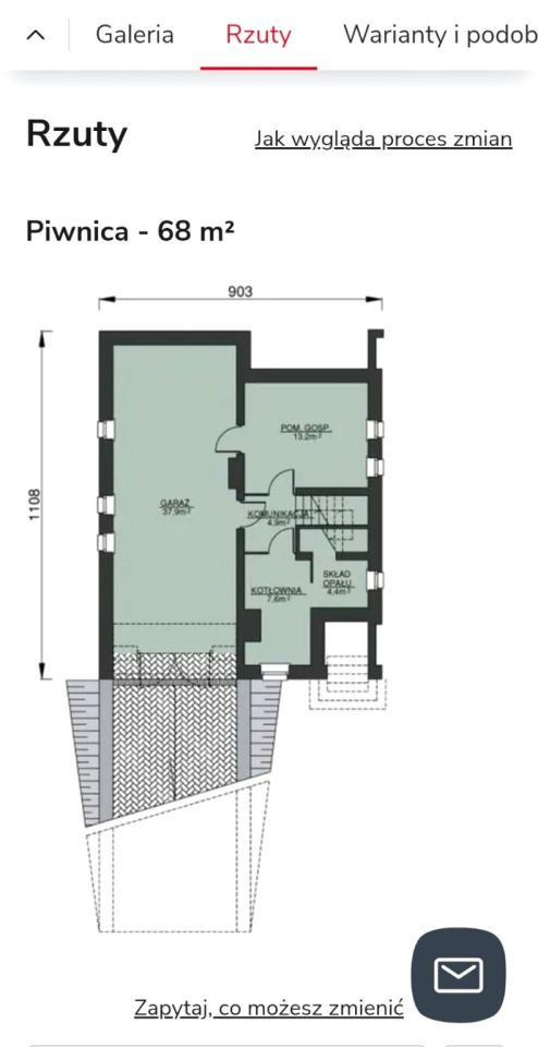
Budynek stoi na działce o powierzchni 482 m². Dom ma 123,5 m² powierzchni użytkowej, co przy układzie obejmującym 3 sypialnie, 3 łazienki (po jednej na każdym poziomie), salon oraz jadalnię, daje poczucie dużej swobody. Dodatkowo do dyspozycji jest całe podpiwniczenie (68 m²), które sprawdzi się jako zaplecze gospodarcze, powierzchnia magazynowa lub garaż dwustanowiskowy.

Dom uzyskał dopuszczenie do użytkowania w sierpniu 2002. Ściana zewnętrzna mur trójwarstwowy z ociepleniem, ogrzewanie gazowe, kominek i piec na paliwo stałe. Nieruchomość jest w pełni przygotowana do użytkowania od zaraz.

Teren wokół domu jest w całości ogrodzony, z zadbanymi roślinami i dużą, drewnianą altaną w ogrodzie. Przed budynkiem znajduje się wygodny podjazd, na którym swobodnie zaparkują trzy samochody. Lokalizacja pozwala na bardzo szybki (w zaledwie 5 - 10 minut) dojazd do centrum Rzeszowa, jak również na szybki dojazd do drogi S-19 i autostrady A4.

Cena: 1.200.000 zł (do negocjacji).

Osoby zainteresowane proszę o kontakt pod podanym numerem telefonu.

  • Rzeszów  
  • Na sprzedaż dom wolnostojący o powierzchni 123,50 m², 5 pokoi wybudowany w 2002 roku
  • Sizing Streamline Icon: https://streamlinehq.com
    Działka 482 m²  
  • Piwnica, garaż  
  • Ogrzewanie gazowe
  • Media gaz
  • Wyposażenie pralka, lodówka, kuchenka, piekarnik, mikrofalówka
  • Oferta bezpośrednio od właściciela dodana dodana dzisiaj
Ta nieruchomość może być Twoja od.. sprawdź
250000 zł (20%) Okres spłaty: 30 lat

Podobne domy na sprzedaż

20
dom szeregowy, 3 pokoje Rzeszów, ul. Porąbki

1 139 000

117

3 pok.

Stylowy dom szeregowy 117,49 m² | ogród | garaż | wysoki standard | Rzeszów Biuro Nieruchomości Podkarpacie z przyjemnością prezentuję wyjątkową nieruchomość dostępną na wyłączność – elegancki, stylowo wykończony dom w zabudowie szeregowej o powierzchni 117,49 m², położony w spokojnej, podmiejskiej...

Zobacz ogłoszenie
20
dom wolnostojący, 4 pokoje Rzeszów, ul. Krakowska

1 349 000

148

4 pok.

Wyłącznie w ofercie biura Estaton prezentujemy Państwu komfortowy, zadbany dom idealny dla rodziny, zlokalizowany w spokojnej i dobrze skomunikowanej okolicy przy ulicy Krakowskiej w Rzeszowie. Układ pomieszczeń: Parter o powierzchni 78,90m2 składa się z: - Przestronnego salonu o powierzchni ponad...

Zobacz ogłoszenie
31
dom wolnostojący, 5 pokoi Rzeszów Wilkowyja

1 270 000

110

5 pok.

PARTEROWY WYKOŃCZONY DOM WOLNOSTOJACY - RZESZÓW WILKOWYJA Do sprzedaży parterowy dom wolnostojący znajdujący się w Rzeszowie na osiedlu Wilkowyja. Nieruchomość znajduje się w odległości 4km od ścisłego centrum miasta. W pobliżu: - przystanki autobusowe, - sklep spożywczy, - Kościół, - 2 szkoły...

Zobacz ogłoszenie
22
dom szeregowy, 5 pokoi Rzeszów, ul. Warszawska

1 190 000

126

5 pok.

JOKER HOUSE NIERUCHOMOŚCI przedstawia Państwu oryginalną i rzadko spotykaną ofertę wykończonego domu w zabudowie szeregowej o powierzchni aż 126,17 m2 (z garażem w bryle budynku), gotowego do zamieszkania. Dom posiada 2 miejsca parkingowe (1 w budynku i 1 miejsce zewnętrzne)! Natomiast to nie wszyst...

Zobacz ogłoszenie
20
dom wolnostojący, 6 pokoi Rzeszów, ul. Letnia

1 400 000

159

6 pok.

Na sprzedaż dom położony na osiedlu Mieszka I, w spokojnej i cichej części Rzeszowa, jednocześnie o krok od centrum miasta. Ulica Letnia to droga nieprzelotowa, ruch tylko dla mieszkańców. W najbliższym sąsiedztwie nieruchomości domy jednorodzinne wolnostojące, w zabudowie bliźniaczej i szeregowej...

Zobacz ogłoszenie
8
dom wolnostojący, 6 pokoi Rzeszów, ul. Heleny Modrzejewskiej

1 200 000

140

6 pok.

Na sprzedaż dom jednorodzinny o powierzchni użytkowej 140 m2, położony na 5-arowej działce na ulicy Heleny Modrzejewskiej. Dom jest jednopiętrowy, o charakterystycznej, kwadratowej bryle, która dziś ponownie zyskuje na popularności dzięki swojej ponadczasowości, prostocie i funkcjonalności. Budynek...

Zobacz ogłoszenie