Dom na sprzedaż bez pośredników
Podborek  

dom wolnostojący Podborek. Zdjęcie 1

Dom na sprzedaż bez pośredników Podborek

450 000
3 488 zł/m²
129
Podborek - lokalizacja przybliżona
Bezpośrednio od właściciela

Jeśli nie potrzebujesz pośrednika, zaoszczędzisz około 13 500 zł. Potrzebujesz wsparcia? Skorzystaj z pomocy agenta.

Na sprzedaż nowy dom parterowy zlokalizowany w miejscowości Podborek.
Dz. ewid. nr 151/22.
Powierzchnia działki: 1 399 m2.
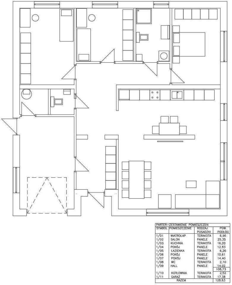
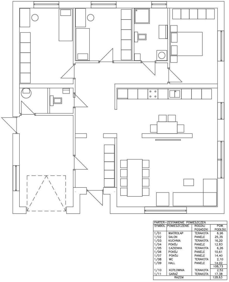
Powierzchnia domu: 129 m2.
Na parterze znajduje się przestronny salon z aneksem kuchennym, 3 sypialnie, łazienka, wc, wiatrołap, kotłownia, i garaż jednostanowiskowy.
Dom w stanie surowym zamkniętym.
•\tBudynek wykonany w technologii tradycyjnej murowanej z pustaka ceramicznego Leier (THERMOPOR 25 P+W)
•\tDach czterospadowy, pokryty dachówką ceramiczną CREATON (Titania antracytowa angoba)
•\tStrop nad parterem Ackermana
•\tStolarka okienna PCV pakiet trzyszybowy, kolor antracyt
•\tStolarka drzwiowa „Wiśniowski”, kolor antracyt:
o\tDrzwi stalowe płaszczowe NOVA z ościeżnicą alu
o\tDrzwi stalowe płaszczowe ECO (do garażu)
o\tBrama garażowa segmentowa UniPro
•\tPrąd, woda, gaz – na działce
Dom położony w spokojnej i malowniczej okolicy, otoczenie pól i lasu, 10 km od Staszowa. Sto metrów od domu przystanek autobusowy. W promieniu 5 km: szkoła, sklep, przychodnia.

  • Oferta z rynku pierwotnego
  • Podborek, gmina Rytwiany, powiat staszowski  
  • Na sprzedaż dom wolnostojący o powierzchni 129 m² wybudowany w 2025 roku
  • Sizing Streamline Icon: https://streamlinehq.com
    Działka 1 399 m²  
  • Budynek w stanie surowym zamkniętym, z aneksem kuchennym  
  • Garaż  
  • Materiał budowy pustak ceramiczny
  • Dach dachówka
  • Cena do negocjacji  
  • Oferta bezpośrednio od właściciela dodana ponad miesiąc temu i zaktualizowana ponad tydzień temu
Ta nieruchomość może być Twoja od.. sprawdź
90000 zł (20%) Okres spłaty: 30 lat

Podobne domy na sprzedaż

7
dom wolnostojący Szczeka

435 000

85

Opis nieruchomości: Na sprzedaż nieruchomość gruntowa zabudowana domem jednorodzinnym oraz stodołą w miejscowości Szczeka, w gminie Rytwiany, ok. 9 km od miejscowości Połaniec i ok 12 od miejscowości Staszów. Nieruchomość znajduje się na kilku działkach ewidencyjnych i obejmuje dom mieszkalny o powi...

Zobacz ogłoszenie
8
dom wolnostojący Bogoria, ul. Jędrusiów

480 000

95

Do sprzedania dom jednorodzinny położony w miejscowości Bogoria. Dzialka 12ar ogrodzona z każdej strony, na której znajduje się dodatkowo murowany budynek gospodarczy (możliwość szybkiego zaadaptowania na garaż dwustanowiskowy). Powierzchnia domu około 95m2. Rozklad pomieszczeń: 1.kuchnia z jadal...

Zobacz ogłoszenie
16
dom wolnostojący, 2 pokoje Szwagrów

350 000

90

2 pok.

Na sprzedaż dom parterowy z dużą działką – Szwagrów, gmina Osiek Na sprzedaż nieruchomość położona w miejscowości Szwagrów, w Gminie Osiek, Powiecie Staszowskim, Województwie Świętokrzyskim. To doskonała propozycja dla osób poszukujących spokojnego miejsca do życia, z dużą przestrzenią i potencjałem...

Zobacz ogłoszenie
2
dom wolnostojący Połaniec

420 000

124

Oferuję na sprzedaż dom wolnostojący o powierzchni 154 m², kryty blachą, przygotowany do generalnego remontu: skute tynki, wyburzone ścianki. Doprowadzona instalacja elektryczna i wodno-kanalizacyjna, gaz - w drodze. Na działce znajduje się również budynek gospodarczy o powierzchni użytkowej 124 m²....

Zobacz ogłoszenie
6
dom wolnostojący, 8 pokoi Staszów Staszówek, ul. Tadeusza Kościuszki

350 000

125

8 pok.

Do sprzedania duży dom z perspektywami do wykorzystania pod różnorodną działalność lub mieszkalny wielorodzinny. Działka 2000 m szeroka na duży parking .szczegóły proszę o kontakt telefoniczny.

Zobacz ogłoszenie
8
dom wolnostojący Koniemłoty, ul. Strażacka

350 000

178

Do sprzedania dom wolnostojący z dużą działką o pow. 4818 m2. Dom o pow. 178 m2, obecnie do remontu, wyposażony w piwnicę oraz 3 duże pokoje mieszkalne, kuchnia i łazienka. Działka mieści się przy drodze asfaltowej, lokalnej. Działka w zasięgu pełnego uzbrojenia wiejskiego plus gaz ziemny. Lokali...

Zobacz ogłoszenie