Dom na sprzedaż bez pośredników
Radziejów  

bliźniak Radziejów. Zdjęcie 1

Dom na sprzedaż bez pośredników Radziejów

649 000
5 900 zł/m²
110
Radziejów - lokalizacja przybliżona
Bezpośrednio od właściciela

Jeśli nie potrzebujesz pośrednika, zaoszczędzisz około 19 500 zł. Potrzebujesz wsparcia? Skorzystaj z pomocy agenta.

Na sprzedaż dom w zabudowie bliźniaczej w idealnej lokalizacji. Dom, który zachwyca swoją funkcjonalnością.

Lokalizacja: Czołowo-Radziejów, woj. kujawsko-pomorskie.

Opis nieruchomości:
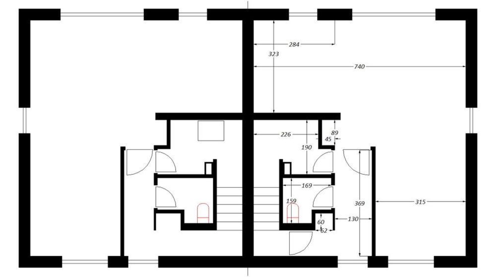
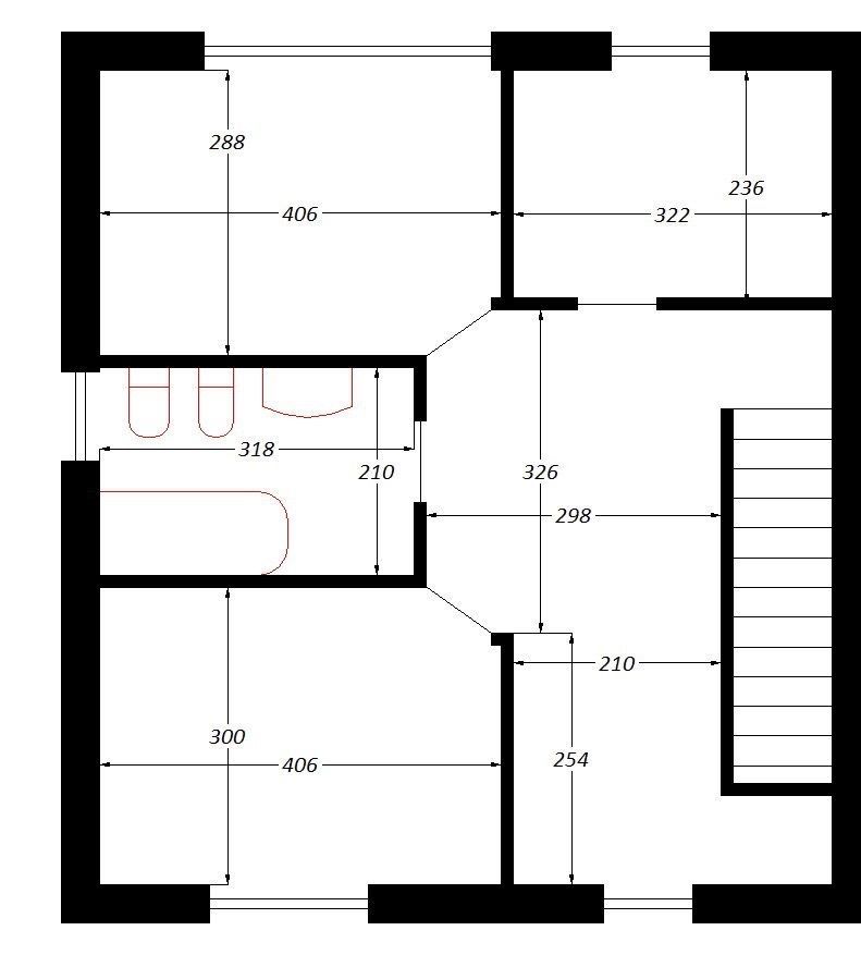
Parter: przestronny i funkcjonalny salon z jadalnią i kuchnią, wyjściem na taras, łazienka z WC, pomieszczenie gospodarcze, korytarz, klatka schodowa.
I Piętro: 3 duże sypialnie, dwie z wyjściem na taras, duża łazienka z WC, salon, garderoba.
Strych: 30m2.
Stan deweloperski z wykonaniem instalacji wodno-kanalizacyjnych, elektrycznych (w tym napięcie 380V) oraz systemu centralnego ogrzewania podłogowego, piec gazowy, wyjście na pompę, wyposażony w drzwi wejściowe, okna 3-szybowe, parapety, oczyszczalnię przydomową.

Pozostałe dane:
Powierzchnia domu: 110 mkw + balkon + taras.
Cena: 649 000 zł.
Termin odbioru: gotowy do odbioru.

Informacje dodatkowe:
Dom w stanie developerskim w jednym z dwóch budynków. Działka 5 arów, ogrodzona.
Całość stanowi budynek piętrowy+strych z możliwością podziału na dwa osobne lokale (parter, piętro). Przewidziane przyłącze i wejście.
Całość nieruchomości zasilana gazem.
Teren zagospodarowany kostką brukową, nasadzenia typu trawy, drzewka.
Całość posesji ogrodzona z bramą wjazdową.
W planie zabudowy możliwość postawienia garażu.

  • Oferta z rynku pierwotnego
  • Radziejów, powiat radziejowski  
  • Na sprzedaż bliźniak o powierzchni 110 m²  
  • Sizing Streamline Icon: https://streamlinehq.com
    Działka 500 m²  
  • Budynek w stanie do wykończenia  
  • Balkon, garaż  
  • Ogrzewanie gazowe
  • Media oczyszczalnia przydomowa, gaz
  • Oferta bezpośrednio od właściciela dodana ponad miesiąc temu i zaktualizowana ponad tydzień temu
Ta nieruchomość może być Twoja od.. sprawdź
130000 zł (20%) Okres spłaty: 30 lat

Podobne domy na sprzedaż

19
dom wolnostojący, 4 pokoje Stefanowo

590 000

78

4 pok.

Dom rekreacyjny nad Jeziorem Głuszyńskim w drugiej linii zabudowy. Dojście do jeziora (50 m) naprzeciw furtki wpisane w akcie notarialnym. Na brzegu prywatny pomost (współwłasność z trzema najbliższymi sąsiadami) 3x6 m z dojściem 11x1 m wybudowany w 2022 r., umowa dzierżawy gruntu od Wód Polskich. ...

Zobacz ogłoszenie
15
dom wolnostojący, 4 pokoje Krzywosądz

600 000

120

4 pok.

Dom piętrowy z dwoma balkonami oraz 18 m2 tarasem. Zbudowany w latach 70-tych z białej cegły oraz gazobetonu, docieplony w szczelinie między tymi materiałami pianą poliuretanową. Dom w całości podpiwniczony. W części piwnicznej wydzielone 15 m2 pomieszczenie z niezależnym wejściem, w którym prowadz...

Zobacz ogłoszenie
12
dom wolnostojący, 4 pokoje Dobre, ul. Powstańców

649 000

105

4 pok.

Na sprzedaż oferujemy funkcjonalny dom jednorodzinny z budynkiem gospodarczym, położony na atrakcyjnej, dużej działce narożnikowej z wjazdem z dwóch ulic. Nieruchomość znajduje się w miejscowości Dobre przy ul. Powstańców 15. Podstawowe informacje: Cena: 649 000 PLN Powierzchnia użytkowa: 105,16 ...

Zobacz ogłoszenie
1
dom wolnostojący Lubsin

699 000

120

Nowy dom, wybudowany w lesie wśród jezior, oddany do użytku w 2023 roku. - Działka 5000 metrów z własną linią brzegową nad jeziorem Świesz. - Do jeziora Gopło 12 km. - Do jeziora Głuszyńskiego 5 km. - Na działce wykopany staw, zarybiony. Więcej informacji telefonicznie.

Zobacz ogłoszenie
21
dom wolnostojący, 4 pokoje Pruchnowo

670 000

153

4 pok.

Dom wolnostojący, parterowy z półpiętrem, dach dwuspadowy, usytuowany na obrzeżach miasta Radziejów na osiedlu domków jednorodzinnych w m. PRUCHNOWO gm. Radziejów woj. kujawsko-pomorskie- idealna propozycja dla osób szukających ciszy, przestrzeni, zieleni- bez rezygnacji z wygód miasta- wymarzone mi...

Zobacz ogłoszenie
18
dom wolnostojący, 3 pokoje Sadłóżek

790 000

102

3 pok.

REZERWACJA DO 31.07.2026 Na sprzedaż wyjątkowy, całoroczny dom z 2023 roku w miejscu, w którym poranki zaczynają się od widoku na wodę, a cisza naprawdę oznacza ciszę. Nieruchomość położona jest bezpośrednio przy zbiorniku wodnym - Jezioro ze Skarbem Łokietka i łączy nowoczesny standard (podłog...

Zobacz ogłoszenie