Dom na sprzedaż bez pośredników
ul. Fabryczna Przemyśl

dom wolnostojący Przemyśl, ul. Fabryczna. Zdjęcie 1

Dom na sprzedaż bez pośredników Przemyśl ul. Fabryczna

650 000
4 649 zł/m²
139
Przemyśl, Fabryczna - lokalizacja przybliżona
Bezpośrednio od właściciela

Jeśli nie potrzebujesz pośrednika, zaoszczędzisz około 19 500 zł. Potrzebujesz wsparcia? Skorzystaj z pomocy agenta.

Przedstawiam ofertę sprzedaży nowo wybudowanego domu z 2025 roku, zaprojektowanego z myślą o wygodzie, funkcjonalności oraz wysokim standardzie wykończenia. Projekt: Dom w malinówkach 23 (GE) OZE- Archon.

Lokalizacja: Przemyśl, ul. Fabryczna.

Budynek o powierzchni użytkowej 139,82 m², położony na działce o powierzchni 10,73 ar. Znajduje się w spokojnej, dobrze skomunikowanej okolicy.

Dom wyróżnia się przemyślanym układem pomieszczeń, wysoką klasą użytych materiałów oraz dużymi przeszkleniami, które zapewniają naturalne doświetlenie wnętrz. Prosta konstrukcja pozwala na łatwą aranżację przestrzeni według własnych potrzeb. Budynek jest energooszczędny.

Dom został ocieplony styropianem o grubości 20 cm, na który naniesiona została struktura (tynk silikonowy GREINPLAST). Dach pokryty jest blachodachówką (firmy PRUSZYŃSKI), wykonano podbitkę wraz z oświetleniem. Wewnątrz domu wykonana jest instalacja elektryczna oraz tynki gipsowe.

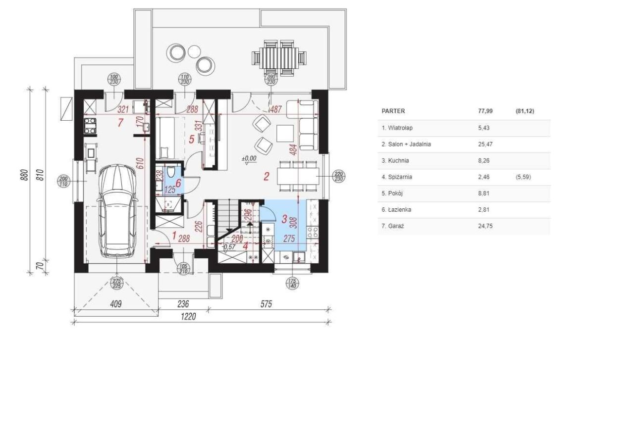
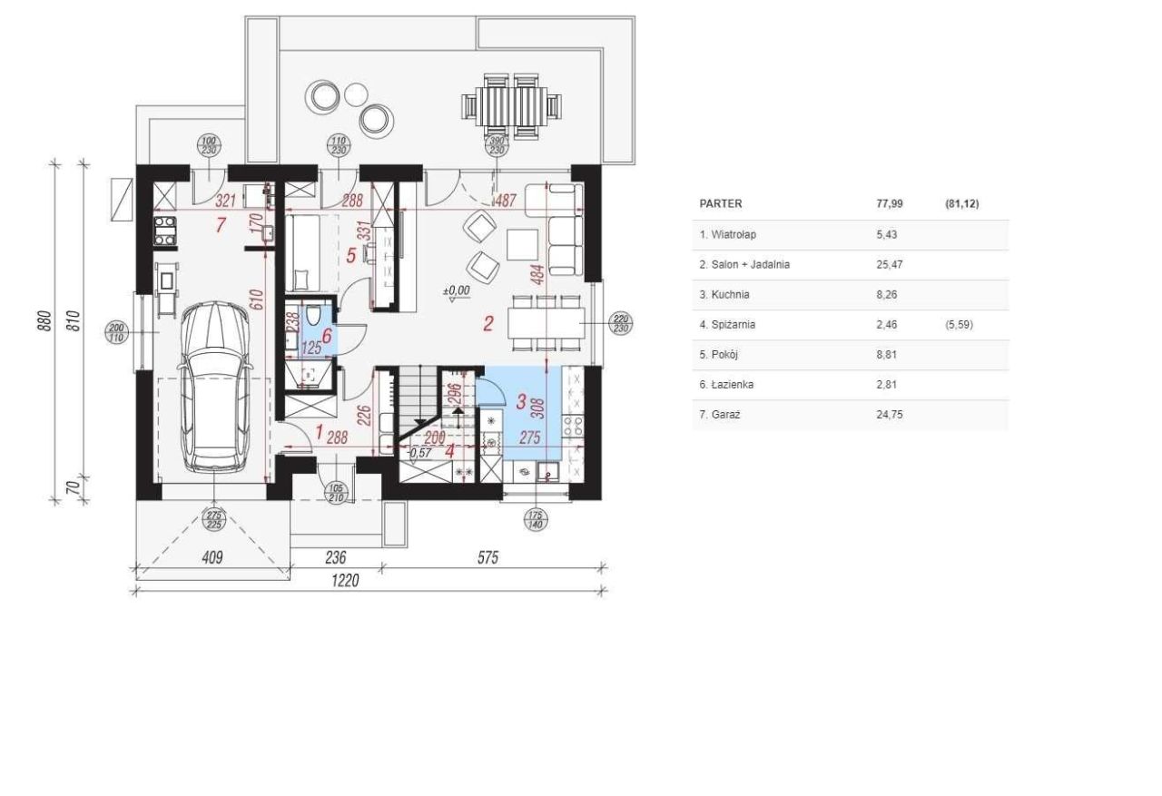
Rozkład pomieszczeń:

PARTER - 77,99 m² (81,12 m²)
1. Wiatrołap - 5,43 m²
2. Salon + Jadalnia - 25,47 m²
3. Kuchnia - 8,26 m²
4. Spiżarnia - 2,46 m² (5,59 m²)
5. Pokój - 8,81 m²
6. Łazienka - 2,81 m²
7. Garaż - 24,75 m²

PODDASZE - 67,32 m² (82,82 m²)
1. Schody - 5,49 m²
2. Korytarz - 7,15 m²
3. Pralnia - 4,03 m² (5,45 m²)
4. Pokój - 9,70 m² (13,12 m²)
5. Pokój - 12,03 m² (14,53 m²)
6. Łazienka - 5,86 m² (7,70 m²)
7. Garderoba - 3,64 m² (4,78 m²)
8. Pokój - 9,69 m² (12,73 m²)
9. Pokój - 9,73 m² (11,87 m²)

Dodatkowe informacje:

Media:
- Prąd
- Woda (studnia głębinowa)
- Szambo

Lokalizacja:
- Dom położony jest w spokojnej okolicy, z szybkim dojazdem do centrum miasta (ok. 5 minut).
- Bliskość szkół, przedszkoli, sklepów, siłowni.

Zapraszam do kontaktu i umówienia się na obejrzenie domu.

Ogłoszenie ma charakter informacyjny.

  • Oferta z rynku pierwotnego
  • ul. Fabryczna, Przemyśl  
  • Na sprzedaż dom wolnostojący o powierzchni 139,82 m² wybudowany w 2025 roku
  • Sizing Streamline Icon: https://streamlinehq.com
    Działka 1 073 m²  
  • Budynek w stanie wysoki standard  
  • Garaż  
  • Dach blachodachówka
  • Media woda, szambo, prąd
  • Oferta bezpośrednio od właściciela dodana ponad miesiąc temu i zaktualizowana ponad tydzień temu
Ta nieruchomość może być Twoja od.. sprawdź
130000 zł (20%) Okres spłaty: 30 lat

Podobne domy na sprzedaż

7
dom wolnostojący, 5 pokoi Przemyśl Kruhel Mały, ul. Kruhelska

780 000

172

5 pok.

Duży dom wolnostojący, w stanie developerskim. Powierzchnia użytkowa 172,70 mkw. Dom jest w całości podpiwniczony, w piwnicach znajduje się garaż dwustanowiskowy. Na parterze salon z aneksem kuchennym, łazienka, pokój, hall, wiatrołap. Na poddaszu 3 pokoje i łazienka. Dom posiada balkon i taras z wi...

Zobacz ogłoszenie
1
dom wolnostojący, 4 pokoje Przemyśl Kaczanów, ul. Wschodnia

450 000

98

4 pok.

🗣️‼️Możliwość ogrzewania gazem lub dowolnym innym źródłem ciepła 🗣️‼️ 🏡🏡DOM PARTEROWY W CENIE MIESZKANIA W BLOKU🏡🏡 ‼️Ogłoszenie prywatne, BEZ PROWIZJI dla biura nieruchomości‼️ Sprzedam nowy dom w cenie mieszkania w stanie surowym zamkniętym 98 m2 w Przemyślu na działce o powierzchni 6,5 ar. ⭐️...

Zobacz ogłoszenie
20
dom szeregowy, 5 pokoi Przemyśl, ul. Fabryczna

599 000

93

5 pok.

Szukasz spokojnego miejsca do życia? Ta oferta jest dla Ciebie! Dom w zabudowie szeregowej z podjazdem na cztery auta, sporym tarasem i ogródkiem. Dom skrajny z działką ok. 350 m2. Powierzchnia netto na dwóch kondygnacjach to 93 m2. - Ogrzewany pompą ciepła na niskim parametrze, dzięki zastosowan...

Zobacz ogłoszenie
20
dom wolnostojący, 5 pokoi Przemyśl Zasanie, ul. Żwirki i Wigury

690 000

150

5 pok.

Do sprzedania dom w spokojnej i atrakcyjnej dzielnicy na Zasaniu przy ul. Żwirki i Wigury. Nieruchomość posiada: - wszystkie media, - działkę 10 ar., ogrodzoną, - dwa oddzielne mieszkania i osobną klatkę schodową. MIESZKANIA: Każde mieszkanie ma wielkość 68 m kw. W skład każdego mieszkania wchodzi...

Zobacz ogłoszenie