Dom na sprzedaż
Ustanów  

dom szeregowy, 4 pokoje Ustanów. Zdjęcie 1
dom szeregowy, 4 pokoje Ustanów. Zdjęcie 2
dom szeregowy, 4 pokoje Ustanów. Zdjęcie 3
dom szeregowy, 4 pokoje Ustanów. Zdjęcie 4

Dom na sprzedaż Ustanów

909 012
7 769 zł/m²
117
4 pok.
Ustanów - lokalizacja przybliżona

Właściciel powierzył sprzedaż nieruchomości pośrednikowi. Możesz zadzwonić lub napisać do agenta za darmo.

Szukasz miejsca, gdzie odpocząć od miejskiego zgiełku?
Własny dom z ogrodem na przedmieściach Warszawy to idealne rozwiązanie!
Blisko natury, a jednocześnie z szybkim dojazdem do centrum.
Wybierz swoją przestrzeń i ciesz się spokojem i relaksem.
Zapraszamy!
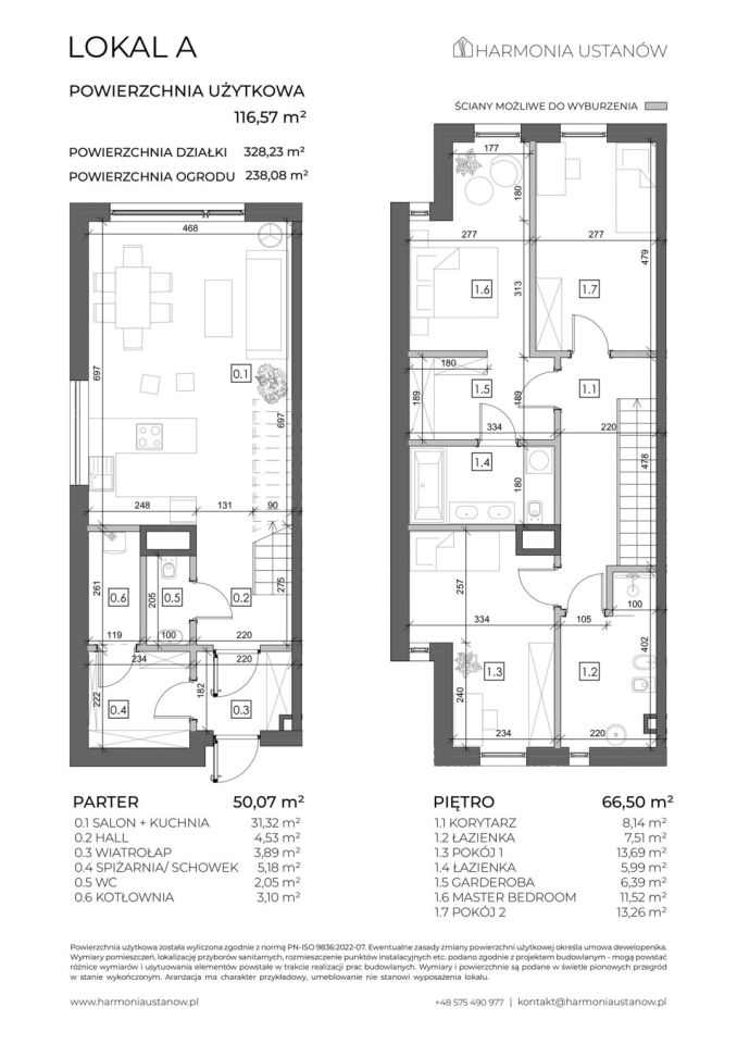
Prezentowany dom oferuje na parterze: salon z aneksem kuchennym, spiżarnię, kotłownię przestronny hol i toaletę.
Na piętrze znajdują się 3 sypialnie, w tym jedna z garderobą i własną łazienką, oraz główna łazienka.
Do segmentu przynależy duży narożny ogródek, o powierzchni 238,08 m2, a cała powierzchnia działki to 328,23 m2.


Skontaktuj się z nami i umów się na prezentację!
tel. [numer], [numer], [numer]

Jeżeli niniejsza oferta nie spełnia Państwa oczekiwań, lub chcielibyście zapoznać się jeszcze z innym propozycjami - zapraszamy na naszą stronę [www]

::LINK DO STRONY
[www]/oferta.aspx?id=[numer]

  • Oferta z rynku pierwotnego
  • Ustanów, gmina Prażmów, powiat piaseczyński  
  • Na sprzedaż dom szeregowy o powierzchni 117 m², 4 pokoje  
  • Sizing Streamline Icon: https://streamlinehq.com
    Działka 328 m²  
  • Budynek w stanie do wykończenia  
  • Ogłoszenie biura nieruchomości  
  • Oferta dodana ponad miesiąc temu
Ta nieruchomość może być Twoja od.. sprawdź
182000 zł (20%) Okres spłaty: 30 lat

Podobne domy na sprzedaż

15
dom wolnostojący, 4 pokoje Łoś

1 260 000

90

4 pok.

Nowy dom w otoczeniu sosnowego lasu cisza, natura i komfort! Na sprzedaż nowy, energooszczędny dom jednorodzinny o powierzchni ok.90m.kw posadowiony na działce o powierzchni 999m.kw, oddany do użytkowania we wrześniu 2024 r.Położony w przepięknej, spokojnej okolicy wśród urokliwych drzew sosnowych, ...

Zobacz ogłoszenie
16
bliźniak, 4 pokoje Kamionka, ul. Złota

1 160 000

140

4 pok.

Gotowy do wprowadzenia! 1160 000 PLN Na sprzedaż bezpośrednio od właściciela dom w zabudowie bliźniaczej położony w miejscowości Kamionka, ul. Złota 43. Kupujący nie płaci 2% PCC – oferta zawiera VAT. Nieruchomość usytuowana na działce o powierzchni ok. 450 m². Dom funkcjonalnie zaprojektowany, id...

Zobacz ogłoszenie
4
dom szeregowy, 5 pokoi Ustanów

995 996

132

5 pok.

Szukasz miejsca, gdzie odpocząć od miejskiego zgiełku? Własny dom z ogrodem na przedmieściach Warszawy to idealne rozwiązanie! Blisko natury, a jednocześnie z szybkim dojazdem do centrum. Wybierz swoją przestrzeń i ciesz się spokojem i relaksem. Zapraszamy! Prezentowany dom oferuje na parterze:...

Zobacz ogłoszenie
14
bliźniak, 5 pokoi Jaroszowa Wola, ul. Wrzosowa

1 199 000

121

5 pok.

Sprzedam dom piętrowy - pół bliźniaka (nie jest to lokal). Inwestycja prywatna o wysokim standardzie. Dom posiada wydzieloną własną działkę z odrębną księgą wieczystą, położony w Jaroszowej Woli, przy ul. Wrzosowej. Budynek został wybudowany w 2025 roku wg projektu z Archon - Dom w Malinówkach 5. Pr...

Zobacz ogłoszenie
7
bliźniak, 4 pokoje Ustanów, ul. Polna

795 000

126

4 pok.

Budynek w zabudowie bliźniaczej o pow. 84 m2 +42 m2 poddasze nieużytkowe w USTANOWIE na ulicy Polnej. Dom zlokalizowany przy cichej i spokojnej uliczce ze wszystkimi mediami miejskimi przy drodze asfaltowej z internetem światłowodowym. Do sprzedaży pozostała ostatnia połówka bliźniaka. Parter: salon...

Zobacz ogłoszenie
6
bliźniak, 5 pokoi Uwieliny

829 000

118

5 pok.

Na sprzedaż lokal mieszkalny w stanie deweloperskim o powierzchni 118,77 m, znajdujący się w zabudowie bliźniaczej. Nieruchomość posadowiona jest na działce o powierzchni 490 m. To idealne miejsce dla osób poszukujących nowoczesnego domu w cichej i spokojnej okolicy. Świetna okazja do wykończenia wn...

Zobacz ogłoszenie