Ogłoszenie usunięte

Dom na sprzedaż bez pośredników
Obrębek  

dom wolnostojący Obrębek. Zdjęcie 1

Dom na sprzedaż bez pośredników Obrębek

-
-
100
Bezpośrednio od właściciela

Jeśli nie potrzebujesz pośrednika, zaoszczędzisz prowizję. Potrzebujesz wsparcia? Skorzystaj z pomocy agenta.

Oferujemy Państwu dom wolnostojący w trakcie budowy o powierzchni 100m², posadowiony na ogrodzonej działce 1000m². Inwestycja, której zakończenie planowane jest na maj 2026 roku, znajduje się w atrakcyjnej i spokojnej lokalizacji w Obrębku.

Kluczowe Informacje o Nieruchomości:
• Stan nieruchomości: Stan surowy zamknięty.
• Powierzchnia: Dom 100 m² + działka 1000 m
• Cena: 520 000 zł (5 200 zł/m²)
• Planowany termin oddania do użytku: Maj 2026 r
• Media: Prąd, woda, szambo.

Dlaczego warto kupić dom w trakcie budowy?
• Możliwość personalizacji: To Państwa szansa na wprowadzenie własnych zmian i adaptacji, aby dom w pełni odpowiadał potrzebom rodziny. Istnieje m.in. możliwość adaptacji poddasza.
• Korzyść finansowa: Atrakcyjna cena w fazie budowy pozwala na inwestycję w nieruchomość, która zyskuje na wartości.

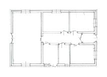
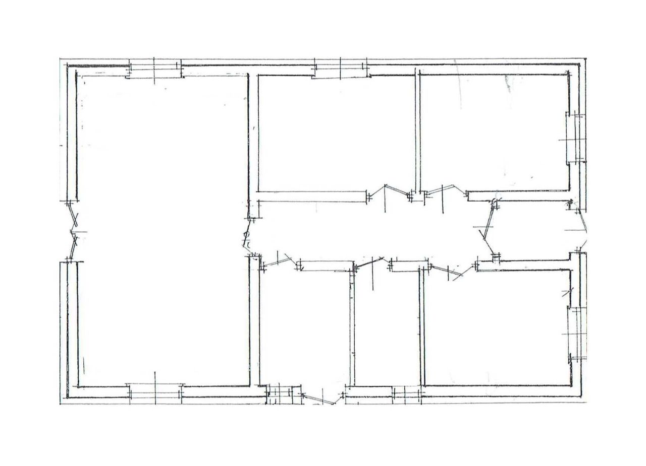
Funkcjonalny Projekt
Dom został zaprojektowany z myślą o praktycznym układzie pomieszczeń. Plan obejmuje 6 głównych pomieszczeń:
• Przestronną, otwartą przestrzeń dzienną (salon z jadalnią i kuchnią)
• Łazienkę
• Trzy sypialnie
• Kotłownię

Doskonale Skomunikowana i Cicha Lokalizacja
Nieruchomość położona jest w centrum urokliwej miejscowości Obrębek, gmina Pokrzywnica, oferując zarówno spokój, jak i doskonały dostęp do infrastruktury.
• Bliskość natury: Tylko 100 m do lasu – idealnie na spacery i aktywne spędzanie czasu.
• Dobra komunikacja: Ok. 40 km od Warszawy i 10 km od Pułtuska.
• Codzienna wygoda: W odległości 2 km znajduje się supermarket Dino, a 3 km do przedszkola.

To doskonała oferta dla tych, którzy szukają możliwości stworzenia domu na miarę swoich potrzeb w atrakcyjnej lokalizacji.

Zapraszam do kontaktu w celu uzyskania szczegółów i umówienia oględzin

Jarosław Klara

  • Oferta z rynku pierwotnego
  • Obrębek, gmina Pokrzywnica, powiat pułtuski  
  • Na sprzedaż dom wolnostojący o powierzchni 100 m² wybudowany w 2026 roku
  • Sizing Streamline Icon: https://streamlinehq.com
    Działka 1 000 m²  
  • Budynek w stanie surowym zamkniętym  
  • Media szambo

Aktualne domy na sprzedaż

7
dom wolnostojący Zatory

595 000

120

Do sprzedania dom jednorodzinny, parterowy, w stanie surowym zamkniętym. Powierzchnia użytkowa 120 m², + garaż + duży taras. Działka uzbrojona we wszystkie media, o powierzchni 1000 m². Naprzeciwko szkoła, w bliskiej odległości sklepy, przystanek.  Więcej informacji pod numerem telefonu.

Zobacz ogłoszenie
8
dom wolnostojący Śliski

590 000

70

Oferuję na sprzedaż niewielki, całoroczny dom o powierzchni 70 m kw. Położony w pięknej i spokojnej okolicy o dużych walorach turystycznych. Idealne miejsce dla osób szukających wytchnienia od miejskiego zgiełku, blisko natury, a jednocześnie z dobrym dojazdem do pobliskich miejscowości. Dom położo...

Zobacz ogłoszenie
14
dom wolnostojący, 3 pokoje Lipa

649 000

115

3 pok.

Sprzedam bezpośrednio dom całoroczny na końcowym etapie budowy. Budynek położony jest w dogodnej lokalizacji nad rzeką Narew, w miejscowości Lipa, oddalona około 5 km od Pułtuska, a 48 km od granic Warszawy. Działka położona jest blisko wody, znajduje się na terenach niezalewowych. Dzięki dobremu ...

Zobacz ogłoszenie
13
dom wolnostojący, 5 pokoi Ostrzeniewo

479 000

120

5 pok.

Dom 120 m2 na zgłoszenie w stanie deweloperskim, do własnej aranżacji wnętrza. ROZKŁAD POMIESZCZEŃ Składa się z 2 poziomów: - Parter: Salon, pokój (sypialnia, gabinet), łazienka, przedpokój. - Piętro: 3 pokoje, garderoba, łazienka. MEDIA - Woda podłączona. - Prąd: skrzynka na działce. - Światłowód...

Zobacz ogłoszenie