Dom na sprzedaż bez pośredników
ul. Skrajna Płock Imielnica

dom wolnostojący Płock Imielnica, ul. Skrajna. Zdjęcie 1

Dom na sprzedaż bez pośredników Płock Imielnica ul. Skrajna

900 000
4 891 zł/m²
184
Płock Imielnica, Skrajna - lokalizacja przybliżona
Bezpośrednio od właściciela

Jeśli nie potrzebujesz pośrednika, zaoszczędzisz około 27 000 zł. Potrzebujesz wsparcia? Skorzystaj z pomocy agenta.

Zapraszam do zapoznania się z ofertą domu wolnostojącego. Jest to atrakcyjna oferta dla klientów lubiących ciszę, przestrzeń, ceniących bliskość przyrody, a jednocześnie bliskość miasta.

Dom zlokalizowany jest w Płocku, przy ul. Skrajnej 16B. Jego powierzchnia użytkowa wynosi ok. 184m2. Dodatkowo dom wyposażony jest w 27m2 garaż oraz piwnicę o powierzchni ok. 40m2.

Nieruchomość zlokalizowana jest na działce o powierzchni 1200m2.

W skład domu wchodzi:

- piwnica, składająca się z kotłowni, przedpokoju i dwóch pomieszczeń do własnego zagospodarowania, np. na spiżarnię.
- garaż przylegający do bryły budynku (wejście bezpośrednio z korytarza domu).
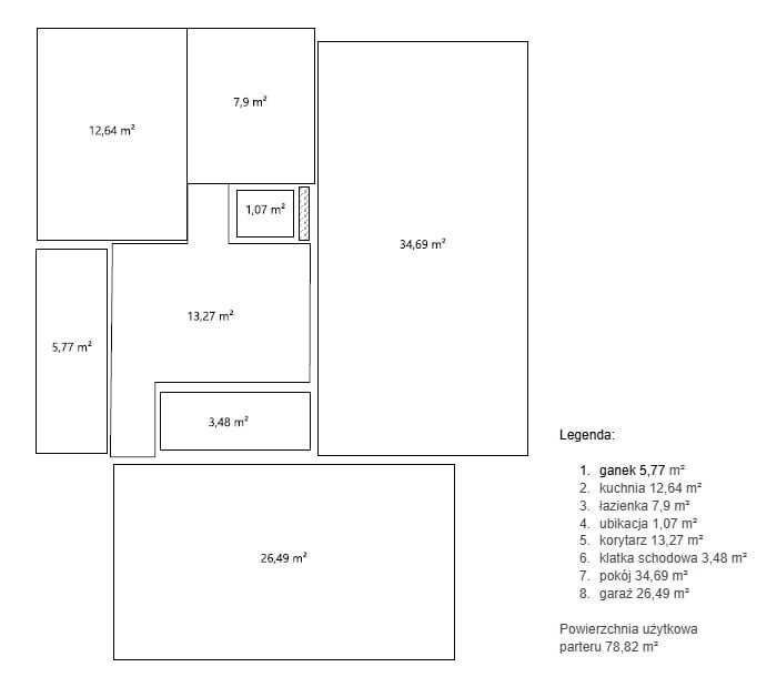
- parter, składający się z wiatrołapu, korytarza, kuchni, WC, łazienki z wanną oraz salonu.
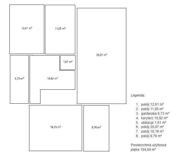
- piętro, składające się z korytarza i 6 pokojów.

Media: woda, prąd, kanalizacja, ogrzewanie piec gazowy.

Oferta jest idealna dla rodzin z dziećmi, które szukają przestrzeni, prywatności i dużej działki.

Zachęcamy do kontaktu w celu obejrzenia nieruchomości.

  • ul. Skrajna, Płock Imielnica  
  • Na sprzedaż dom wolnostojący o powierzchni 184 m²  
  • Sizing Streamline Icon: https://streamlinehq.com
    Działka 1 200 m²  
  • Piwnica, garaż  
  • Ogrzewanie gazowe
  • Media kanalizacja, gaz
  • Oferta bezpośrednio od właściciela dodana ponad miesiąc temu i zaktualizowana 5 dni temu
Ta nieruchomość może być Twoja od.. sprawdź
180000 zł (20%) Okres spłaty: 30 lat

Podobne domy na sprzedaż

10
dom wolnostojący, 5 pokoi Płock Imielnica, ul. Morelowa

799 000

202

5 pok.

✨ Marzysz o własnym domu w spokojnej okolicy Płocka? ✨ Na sprzedaż dom w Imielnicy, ul. Morelowa - idealne miejsce dla rodziny, a także dla osób, które chcą połączyć życie prywatne z działalnością (warsztat, magazyn, biuro - pełna dowolność!). 🏡 Dom murowany z poddaszem użytkowym, piwnicą ...

Zobacz ogłoszenie
20
dom szeregowy, 5 pokoi Płock, al. Jana Pawła II

895 000

139

5 pok.

NIE WYRAŻAM ZGODY NA KONTAKT ZE STRONY POŚREDNIKÓW. Komfortowy segment w sercu Podolszyc. Funkcjonalny dom dla rodziny lub dla dwóch niezależnych stref. DZIEŃ DOBRY Na sprzedaż oferuję Państwu przestronny dom szeregowy o powierzchni ok. 139 m² z tarasem, balkonem, ogrodem, dużą piwnicą, garażem, m...

Zobacz ogłoszenie
20
bliźniak, 5 pokoi Płock Imielnica, ul. Morelowa

812 000

160

5 pok.

Sprzedam dom jednorodzinny w zabudowie bliźniaczej w Płocku (Osiedle Imielnica) o powierzchni 160 m2. Dom składa się z dwóch kondygnacji: Na parterze znajduje się; salon z jadalnią (33 m2), kuchnia (8 m2), łazienka (4m2), przeszklony gabinet ( 5m2), sypialnia (12 m2), pomieszczenie gospodarcze/kotło...

Zobacz ogłoszenie
3
dom szeregowy, 5 pokoi Płock Podolszyce, al. Jana Pawła II

895 000

130

5 pok.

Sprzedam dom w bardzo dobrej lokalizacji: Podolszyce, ul. Jana Pawła II. Dom posiada: - 5 pokoi, - 2 kuchnie, - 2 łazienki. Przed domem i za domem ogródek. Dom jest podpiwniczony - piwnica posiada 3 pomieszczenia. Dom posiada garaż z kanałem.

Zobacz ogłoszenie
8
dom wolnostojący Płock, ul. Hugo Kołłątaja

890 000

130

Dom zbudowany w standardzie lat 80-tych, gotowy do zamieszkania w bardzo dobrej lokalizacji. Piwnica: pokój kominkowy, pralnia, komórki, wymiennik ciepła. W poziomie terenu: garaż z pom. gospodarczym. Wyżej: salon, kuchnia, WC, duży pokój. Na piętrze: 3 pokoje i łazienka. Dach wyremontowany. Okna ...

Zobacz ogłoszenie
13
dom szeregowy, 5 pokoi Płock Zielony Jar, ul. Batalionu "Parasol"

934 000

140

5 pok.

Dom w zabudowie szeregowej Płock, Zielony Jar, Batalionu Parasol. Segment środkowy o powierzchni mieszkalnej 140 M2, z garażem w bryle budynku, położony na zagospodarowanej działce o powierzchni 243 M2. Dom z przemyślanym układem pomieszczeń. Piwnica: duża kuchnia z jadalnią, kotłownia i pomieszcz...

Zobacz ogłoszenie