Dom na sprzedaż bez pośredników
ul. Torowa Racławice

dom wolnostojący Racławice, ul. Torowa. Zdjęcie 1

Dom na sprzedaż bez pośredników Racławice ul. Torowa

350 000
4 321 zł/m²
81
Racławice, Torowa - lokalizacja przybliżona
Bezpośrednio od właściciela

Jeśli nie potrzebujesz pośrednika, zaoszczędzisz około 10 500 zł. Potrzebujesz wsparcia? Skorzystaj z pomocy agenta.

Sprzedam bezpośrednio dom we wsi Racławice koło Niska, ul. Torowa 88.

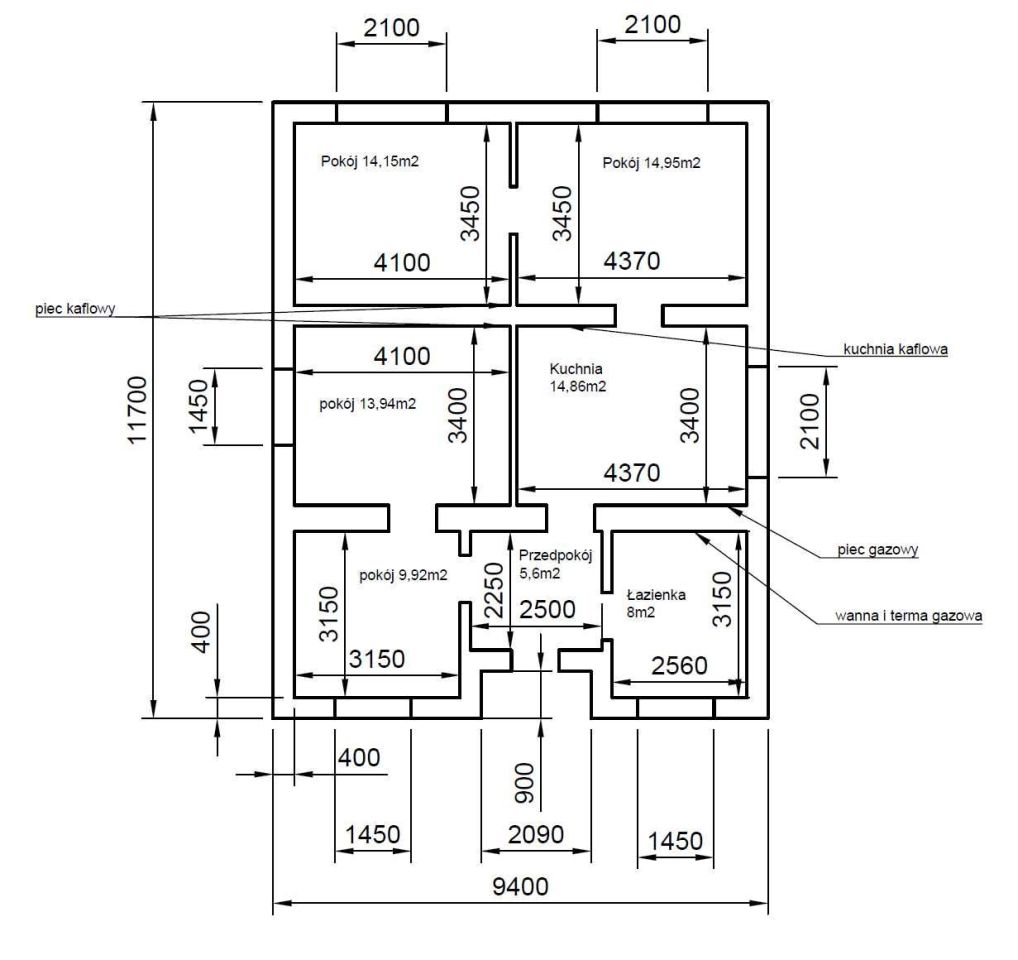
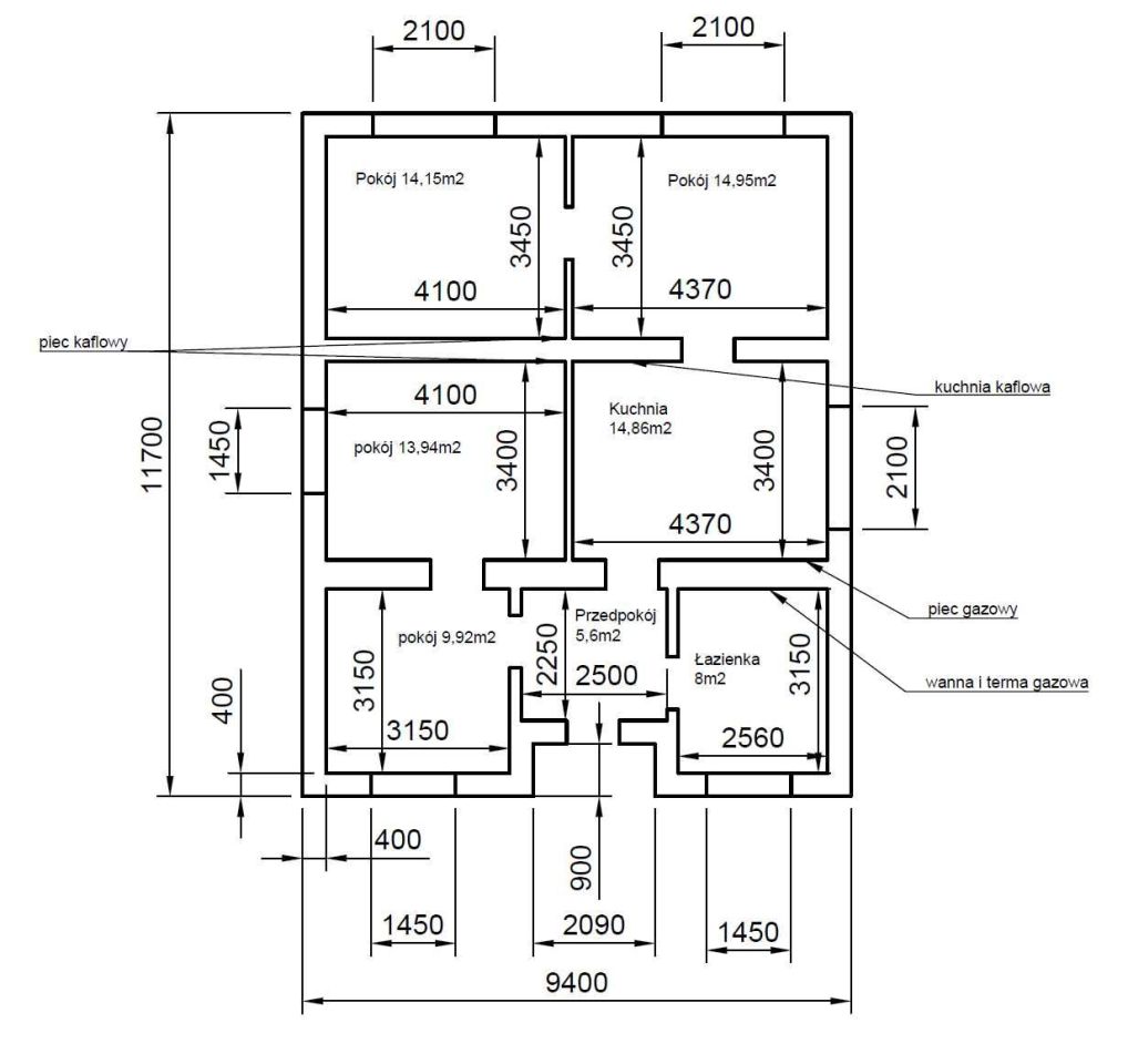
- Działka 990 m² z domem 81 m² z 1960 roku, murowanym z grubej cegły, z dachem pokrytym dachówką.
- Przy asfaltowej ulicy, w odległości krótkiego spaceru od miasta Nisko.
- Są wszystkie media, regularnie opłacane.
- Ogrzewany piecem gazowym, woda ogrzewana gazową termą, ale w środku znajdują się również piece kaflowe i kuchnia na drewno.
- Większość okien plastikowe.
- Na terenie znajduje się również murowany składzik.
- Na głębokości 6 m znajduje się woda pitna, przy domu działająca studnia.

Stan jak na zdjęciach:
- do zamieszkania od razu przez osoby mało wymagające,
- do pomieszkiwania z jednoczesnym dostosowaniem do własnych potrzeb.

  • ul. Torowa, Racławice, gmina Nisko, powiat niżański  
  • Na sprzedaż dom wolnostojący o powierzchni 81 m² wybudowany w 1960 roku
  • Sizing Streamline Icon: https://streamlinehq.com
    Działka 990 m²  
  • Budynek w stanie do zamieszkania  
  • Ogrzewanie gazowe
  • Materiał budowy cegła
  • Dach dachówka
  • Okna plastikowe
  • Dojazd asfalt
  • Media woda, prąd, gaz
  • Oferta bezpośrednio od właściciela dodana ponad miesiąc temu i zaktualizowana ponad tydzień temu
Ta nieruchomość może być Twoja od.. sprawdź
70000 zł (20%) Okres spłaty: 30 lat

Podobne domy na sprzedaż

7
dom wolnostojący, 5 pokoi Rudnik nad Sanem, ul. Sandomierska

249 000

110

5 pok.

Dom murowany, 3 kondygnacje, wykonany z pełnej cegły, rok budowy 1973. Dach kopertowy, pokryty blachą ocynkowaną, zabezpieczony farbą antykorozyjną. Pięć pokoi, kuchnia, łazienki, korytarz z klatką schodową. Wyposażenie: prąd, gaz, woda i kanalizacja miejska, telewizja kablowa, centralne ogrzewani...

Zobacz ogłoszenie
11
siedlisko Sieraków, ul. Spokojna

379 000

70

Sprzedam siedlisko z budynkami gospodarczymi blisko Tanwi 4,24 ha, dom 70 m2, budynki gospodarcze Sieraków, gmina Harasiuki, powiat niżański. Powierzchnia 28 395 m2 i 14 040 m2, średnia szerokość działki ok. 40 m, długość ok. 700 m - bezpośredni dostęp do drogi asfaltowej Budynek mieszkalny parter...

Zobacz ogłoszenie
5
dom wolnostojący Rudnik nad Sanem

409 000

99

Mam przyjemność przedstawić Państwu ofertę sprzedaży domu jednorodzinnego zlokalizowanego w Rudniku nad Sanem na działce nr 2081/1. Budynek z poddaszem użytkowym o powierzchni użytkowej 99,89m2, w stanie surowym otwartym. Posiada doprowadzone wszystkie media: gaz, prąd, wodę oraz kanalizację. Budyn...

Zobacz ogłoszenie