Dom na sprzedaż bez pośredników
ul. Kolejowa Nowe Pieścirogi

dom wolnostojący, 5 pokoi Nowe Pieścirogi, ul. Kolejowa. Zdjęcie 1

Dom na sprzedaż bez pośredników Nowe Pieścirogi ul. Kolejowa

980 000
4 196 zł/m²
233
5 pok.
Nowe Pieścirogi, Kolejowa - lokalizacja przybliżona
Bezpośrednio od właściciela

Jeśli nie potrzebujesz pośrednika, zaoszczędzisz około 29 400 zł. Potrzebujesz wsparcia? Skorzystaj z pomocy agenta.


Nowy dom 233 m² z garażem na 2 auta | duża działka 1078 m² | blisko PKP Nasielsk | duży potencjał

Opis:
Na sprzedaż nowoczesny dom wolnostojący o powierzchni 233,55 m² położony na działce 1078 m² w miejscowości Nowe Pieścirogi (gmina Nasielsk, powiat nowodworski). Nieruchomość znajduje się przy zbiegu ulic Kolejowej i Diamentowej, z wygodnym dojazdem drogą asfaltową.

To doskonała propozycja dla osób poszukujących dużego domu dla rodziny, który można wykończyć i zaaranżować według własnych potrzeb i stylu. Budynek powstał w 2025 roku i znajduje się w stanie surowym zamkniętym z wykonanymi instalacjami wewnętrznymi oraz doprowadzonymi mediami.

Duża powierzchnia, funkcjonalny układ pomieszczeń oraz przestronna działka dają ogromne możliwości aranżacyjne – zarówno dla dużej rodziny, jak i dla osób pracujących z domu.

DOM

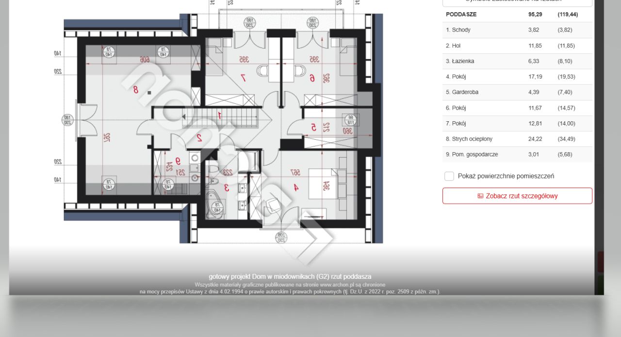
Powierzchnia domu liczona po podłogach wynosi 233,55 m² i obejmuje:

• część mieszkalną – 137,11 m²
• garaż dwustanowiskowy – 33,61 m²
• kotłownię – 12,15 m²
• strych – 24,22 m² (z możliwością adaptacji na dodatkową przestrzeń mieszkalną)

Funkcjonalny układ pomieszczeń zapewnia komfort codziennego życia i dobrą organizację przestrzeni.

Parter:
• przestronny salon z kuchnią i jadalnią – idealne miejsce do wspólnego spędzania czasu
• pokój (może pełnić funkcję gabinetu lub sypialni)
• spiżarnia
• łazienka
• wiatrołap
• hol
• kotłownia
• garaż na dwa samochody

Poddasze:
• trzy ustawne pokoje
• garderoba
• łazienka
• pomieszczenie gospodarcze
• dodatkowy pokój / strych nad garażem z możliwością adaptacji

STANDARD I MEDIA

Budynek został wykonany z betonu komórkowego i przykryty dachem z blachodachówki.
Dom sprzedawany jest w stanie surowym zamkniętym, co daje możliwość wykończenia wnętrz zgodnie z własną wizją i potrzebami.

Wykonane instalacje i przyłącza:
• instalacja elektryczna
• instalacja wodno-kanalizacyjna
• przyłącze wody
• kanalizacja
• prąd
• światłowód

Działka od strony ulicy została ogrodzona nowoczesnym ogrodzeniem (podmurówka + panele metalowe).

DZIAŁKA

Nieruchomość znajduje się na działce o powierzchni 1078 m².
To idealna przestrzeń na ogród, taras, strefę rekreacyjną lub plac zabaw dla dzieci.

LOKALIZACJA

Nowe Pieścirogi to spokojna miejscowość w gminie Nasielsk, położona w otoczeniu terenów zielonych i zabudowy jednorodzinnej.

Atutem lokalizacji jest dobra komunikacja oraz dostęp do podstawowej infrastruktury. W pobliżu znajdują się m.in.:

• stacja kolejowa Nasielsk
• szkoła i przedszkole
• sklepy
• apteka
• kościół

Dzięki temu można cieszyć się spokojem życia poza dużym miastem, a jednocześnie mieć wygodny dostęp do potrzebnych usług.

INFORMACJE DODATKOWE

• dom wolnostojący
• rok budowy: 2025
• liczba pokoi: 5
• garaż dwustanowiskowy
• stan: surowy zamknięty
• pełna własność
• oferta bezpośrednia

Zapraszam do kontaktu oraz na prezentację nieruchomości.
To idealna propozycja dla osób, które chcą stworzyć dom dokładnie dopasowany do swoich potrzeb w spokojnej i rozwijającej się okolicy.

Zapraszam do kontaktu

Leszek Sawicki
Tel. [numer]
[email]

  • Oferta z rynku pierwotnego
  • ul. Kolejowa, Nowe Pieścirogi, gmina Nasielsk, powiat nowodworski  
  • Na sprzedaż dom wolnostojący o powierzchni 233,55 m², 5 pokoi wybudowany w 2025 roku
  • Sizing Streamline Icon: https://streamlinehq.com
    Działka 1 078 m², długość działki: 16 m, szerokość działki: 11 m  
  • Budynek z poddaszem użytkowym, w stanie surowym zamkniętym, z aneksem kuchennym  
  • Taras, bez piwnicy, garaż na 2 samochody  
  • Ogrzewanie gazowe
  • Materiał budowy beton komórkowy
  • Dach blachodachówka
  • Okna plastikowe
  • Dojazd asfalt
  • Ogrodzenie metalowe
  • Media woda, kanalizacja, prąd, gaz nieprzyłączony
  • Cena do negocjacji  
  • Oferta bezpośrednio od właściciela dodana ponad miesiąc temu
Ta nieruchomość może być Twoja od.. sprawdź
196000 zł (20%) Okres spłaty: 30 lat

Podobne domy na sprzedaż

18
bliźniak, 5 pokoi Wrzosówka

960 000

150

5 pok.

        Bez prowizji i PCC Ostatni, oddany do użytkowania Nowoczesny, komfortowy dom we Wrzosówce gmina Czosnów - 30 km do Centrum Warszawy. WYJĄTKOWA JAKOŚĆ WYKONANIA. 500 m do Puszczy Kampinoskiej Piękna, malownicza okolica - dużo zieleni i sąsiedztwo nowych domów.  Droga asfaltowa i komunikacja m...

Zobacz ogłoszenie
20
dom wolnostojący, 10 pokoi Nowy Dwór Mazowiecki

1 149 000

200

10 pok.

Oferujemy Państwu nieruchomość o ogromnym potencjale inwestycyjnym i mieszkalnym. Zlokalizowana jest w Nowym Dworze Mazowieckim przy ul. Źródlanej. W skład nieruchomości wchodzi dom jednorodzinny, dwa garaże jednostanowiskowe, oraz dwa niezależne źródła dochodu lub przestrzenie do zagospodarowania: ...

Zobacz ogłoszenie
19
dom wolnostojący, 4 pokoje Nasielsk

800 000

146

4 pok.

Sprzedam dom w Nasielsku. Powierzchnia całkowita 172 m2, powierzchnia zabudowy 146m2 w tym powierzchnia użytkowa 82,2m2 + pow. gospodarcza Dom znajduje się na ogrodzonej działce o powierzchni 520m2 na osiedlu domów jednorodzinnych. Na parterze, garaż, pomieszczenie gospodarcze/spiżarnia i kotłownia...

Zobacz ogłoszenie
1
dom wolnostojący, 4 pokoje Czosnów, ul. Władysława Lercha

1 200 000

220

4 pok.

Sprzedam bezpośrednio dom do remontu w świetnej lokalizacji - Czosnów, 1 km od trasy S7. Na sprzedaż przestronny dom w doskonałej lokalizacji w Czosnowie, w pobliżu hotelu. Nieruchomość jest idealnie usytuowana na działce, co pozwala cieszyć się wyjątkowo dużym ogrodem. LOKALIZACJA: ul. Lercha, Cz...

Zobacz ogłoszenie
4
dom wolnostojący Czosnów, ul. Władysława Lercha

990 000

160

Dom na sprzedaż bezpośrednio CZOSNÓW ul.Lercha. Blisko sklepów, policji, poczty, lotnisko Modlin. Dom do remontu, jedyne co jest nowy dach i okna. Jest to jedyny dom, który ma wjazd na posesję z dwóch stron. Po wiecej szczegolow zapraszam telefonicznie.

Zobacz ogłoszenie
28
dom wolnostojący, 6 pokoi Cieksyn, ul. marsz. Józefa Piłsudskiego

740 000

200

6 pok.

Na sprzedaż piętrowy dom o powierzchni 200 m², położony na zagospodarowanej działce o powierzchni 1000 m². Nieruchomość idealna dla dużej rodziny, dwóch rodzin lub pod inwestycję – istnieje możliwość wykonania oddzielnego wejścia na piętro. Układ domu: • 6 przestronnych pokoi • kuchnia • 2 łazie...

Zobacz ogłoszenie