Dom na sprzedaż bez pośredników
ul. Prosta Mirsk

kamienica Mirsk, ul. Prosta. Zdjęcie 1

Dom na sprzedaż bez pośredników Mirsk ul. Prosta

230 000
1 095 zł/m²
210
Mirsk, Prosta - lokalizacja przybliżona
Bezpośrednio od właściciela

Jeśli nie potrzebujesz pośrednika, zaoszczędzisz około 6 900 zł. Potrzebujesz wsparcia? Skorzystaj z pomocy agenta.

W ofercie jest sprzedaż kamienicy składającej się z dwóch lokali mieszkalnych, znajdujących się w dwupiętrowym budynku, wraz z podwórzem i komórką (obecnie pełniącą funkcję zaplecza technicznego), do którego jest swobodny dostęp od strony ul. Sikorskiego. Dom usytuowany przy ul. Prostej w Mirsku.

Opis nieruchomości:

- Rodzaj Budynku: Dwupiętrowa kamienica.
- Stan budynku: Do odświeżenia / Do remontu.
- Media: Pełne uzbrojenie - prąd, kanalizacja, wodociąg.
- Lokalizacja: Mirsk, gmina Mirsk, powiat lwówecki, województwo dolnośląskie.

Rozkład Pomieszczeń:

LOKAL nr 1 (parter)
Lokal znajduje się na parterze. Obecnie, w jego skład wchodzi pokój, łazienka i kuchnia (łącznie 40,40 m2). Część wspólna to wiatrołap, korytarz, WC (rozkład pomieszczeń na zdjęciu). Łączna powierzchnia parteru to około 62 m2.

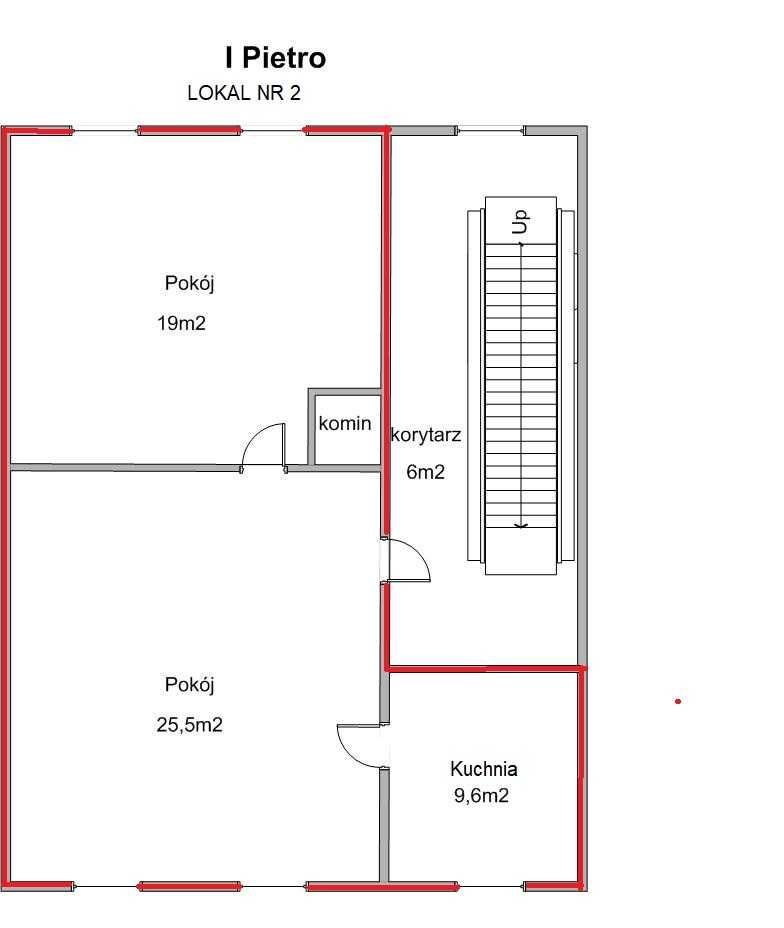
LOKAL nr 2 (I piętro)
Lokal znajduje się na pierwszym piętrze. Obecnie, w jego skład wchodzą 3 pokoje (łącznie 54,10 m2). Część wspólna to korytarz, pomieszczenie techniczne, wejście na strych (rozkład pomieszczeń na zdjęciu). Łączna powierzchnia piętra to około 72 m2.

Piwnica: Około 6 m2.

Drugie piętro (strych): Otwarta przestrzeń do adaptacji + antresola na poddaszu. Powierzchnia strychu to około 74 m2.

Podsumowanie:

Nieruchomość położona jest w centrum miasta Mirsk. W pobliżu: kościół, sklepy, stadion, szkoły, przychodnia NFZ, dworzec autobusowy oraz nowo otwarty przystanek kolejowy w kierunku Świeradowa-Zdroju lub Gryfowa Śląskiego.

W okolicy znajduje się wiele pięknych terenów, gdzie można odpocząć: jeziora, góry, zamki, sztolnie.

Do granicy niemieckiej w Zgorzelcu - około 1 godziny drogi samochodem.
Do czeskiej granicy, do miejscowości Nové Město pod Smrkem - około 20 min.

Kamienica oferuje nie tylko komfortową przestrzeń do mieszkania, ale także daje możliwość stworzenia kilku niezależnych mieszkań. Podwórze o powierzchni 120 m2, należące do kamienicy, daje możliwość postawienia garażu lub wiaty, tworząc bezpieczną przestrzeń parkingową. Do kamienicy wydzierżawiony jest teren zielony, pełniący obecnie cel wypoczynkowo-uprawny, na którym znajdują się drzewa owocowe.

Sprzedaż wyłącznie całości.

Zainteresowanych zapraszam do kontaktu w celu uzyskania dodatkowych informacji lub umówienia się na osobiste oględziny.

---
Opis oferty zawarty na stronie internetowej sporządzony jest na podstawie oględzin nieruchomości, może on podlegać weryfikacji i nie stanowi oferty określonej w art. 66 i następnych K.C.

  • ul. Prosta, Mirsk, powiat lwówecki  
  • Na sprzedaż kamienica o powierzchni 210 m²  
  • Sizing Streamline Icon: https://streamlinehq.com
    Działka 120 m²  
  • Piwnica, garaż  
  • Ogrzewanie olejowe
  • Media woda, kanalizacja
  • Oferta bezpośrednio od właściciela dodana ponad miesiąc temu i zaktualizowana ponad tydzień temu
Ta nieruchomość może być Twoja od.. sprawdź
46000 zł (20%) Okres spłaty: 30 lat

Podobne domy na sprzedaż

11
dom wolnostojący, 3 pokoje Chmielno

299 600

250

3 pok.

Urokliwy dom pod lipami z dostępem do rzeki i dużą działką - idealne miejsce na sielskie życie wśród przyrody. Idealna okazja dla miłośników tradycji . Zbudowany z kamienia ,cegły i drewna, emanuje atmosferą spokoju i historii. Cały dom emanuje ciepłem i historią, jakby czas zatrzymał się tutaj ....

Zobacz ogłoszenie
8
bliźniak, 3 pokoje Płóczki Górne

249 000

150

3 pok.

Na sprzedaż: Dom poniemiecki, piętrowy, w zabudowie bliźniaczej, po częściowym remoncie. Dom na wzniesieniu z pięknym widokiem na okolicę. Na działce znajduje się także stodoła oraz 2 garaże.

Zobacz ogłoszenie
12
dom wolnostojący, 4 pokoje Radoniów

250 000

250

4 pok.

DOM DO WŁASNEJ ARANŻACJI | RADONIÓW | GMINA LUBOMIERZ | DUŻY POTENCJAŁ Na sprzedaż dom z ogromnym potencjałem, położony w miejscowości Radoniów, gmina Lubomierz, w spokojnej i zielonej okolicy. Zapraszam Cię na prezentację domu  o pow. całkowitej ok. 250m2,  do własnej aranżacji podzielonego na częś...

Zobacz ogłoszenie
4
dom wolnostojący, 5 pokoi Gradówek

290 000

200

5 pok.

Piękny zabytkowy dom dla konesera. Świetnie utrzymane belki konstrukcyjne. Ogromny komin z piecem chlebowym i dużym otwartym paleniskiem. Idealna okazja dla osób poszukującym domu "z duszą".

Zobacz ogłoszenie
8
dom wolnostojący Pilchowice

320 000

210

Na sprzedaż mały wiejski dom we wsi Pilchowice, gmina Wleń 15 km od Jeleniej Góry i 20 km od Lwówka śląskiego. Nieruchomość została przygotowana do remontu, został położony nowy dach (blacha), jest położona nowa instalacja elektryczna, wylane posadzki na parterze, pozbijane stare tynki, wyczyszczone...

Zobacz ogłoszenie