Dom na sprzedaż bez pośredników
Lutomiersk  

dom wolnostojący Lutomiersk. Zdjęcie 1

Dom na sprzedaż bez pośredników Lutomiersk

1 280 000
9 275 zł/m²
138
Lutomiersk - lokalizacja przybliżona
Bezpośrednio od właściciela

Jeśli nie potrzebujesz pośrednika, zaoszczędzisz około 38 400 zł. Potrzebujesz wsparcia? Skorzystaj z pomocy agenta.

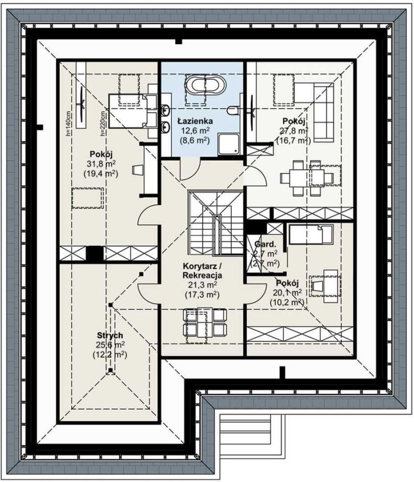
Sprzedam nowoczesny, wolnostojący dom o powierzchni 138m², plus garaż dwustanowiskowy 37m², plus poddasze użytkowe 85m², położony w spokojnej i zielonej okolicy Wrzącej (Lutomiersk), tylko ok. 15 min. jazdy od Łodzi.

Najważniejsze atuty domu:
- przestronny salon z wyjściem na taras, okno HS
- duże okna w każdym pokoju - bardzo jasne wnętrza, bezpośrednie wyjście do ogrodu z każdego pokoju.
- 3 sypialnie, w tym sypialnia master bedroom z bezpośrednim wejściem do garderoby i toalety, wyjściem na ogród.
- 2 łazienki,
- 2 garderoby,
- pralnia,
- pomieszczenie gospodarcze
- przestronny korytarz
- duży garaż na 2 auta
- funkcjonalne rozdzielenie przestrzeni, dom parterowy, przemyślany układ oddzielenie strefy dziennej salonu od sypialni przekłada się na komfort przebywania w domu.
Projekt APS 401
- duży otwarty salon z kuchnią, z dużymi oknami i kominkiem
- działka 1560 m² - prywatność i cisza,
- blisko szkoła, przedszkole, żłobek, korty, boiska, restauracje, sklepy
- komunikacja miejska do Łodzi
- duża prywatność, widok na łąki i las, ostatnia działka bez możliwości budowy na sąsiedniej działce.
- gaz z sieci - komfort i niskie koszty ogrzewania
- kominek w salonie
- Instalacja elektryczna, wodna, gazowa, ogrzewanie podłogowe
- oczyszczalnia biologiczna - ekologiczne i nowoczesne rozwiązanie
- studnia głębinowa
- światłowód - szybki internet do pracy zdalnej
Nowoczesny, ponadczasowy solidny dom w technologii tradycyjnej: pustak ceramiczny, strop Terriva, 3 okna połaciowe na dachu, docieplenie styropianem 20 cm., tynk silikonowy, blachodachówka Pruszyński, okna 3 szybowe, duże przeszklenia, wszystkie okna w pokojach do ziemi z bezpośrednim wyjściem na ogród z pokoi.
- tarasy z przodu i z tyłu wykonane z kostki, opaski z kruszywa granitowego.
Dom w stanie deweloperskim do wykończenia, tani w utrzymaniu, wygodny, parterowy z dużym potencjałem wykorzystania poddasza - idealny do urządzenia według własnych potrzeb.

Świetna propozycja dla rodzin z dziećmi, blisko szkoła, przedszkole, żłobek.
Osób szukających spokoju, blisko infrastruktury miejskiej: sklepy, Dino, Mrówka, pizzeria, restauracje, przychodnia.
Osób, które szukają dodatkowej przestrzeni do pracy w domu: możliwość urządzenia pracowni, home office, biura na poddaszu, internet światłowodowy w ulicy.

Wyjątkowa lokalizacja, działka leśna, bezpośrednie wyjście furtką do lasu. Od strony tarasu widok na zaułek leśny ze strumieniem.
Z salonu duże okna z widokiem na ogród.
Ten dom to połączenie funkcjonalności, wygody i nowoczesnej pięknej architektury.
Dom budowany dla siebie, ale plany się zmieniły.
Sprzedaż bezpośrednia.
Zadzwoń i umów się na prezentację domu,
chętnie pokażę nieruchomość.

  • Oferta z rynku pierwotnego
  • Lutomiersk, powiat pabianicki  
  • Na sprzedaż dom wolnostojący o powierzchni 138 m²  
  • Sizing Streamline Icon: https://streamlinehq.com
    Działka 1 560 m²  
  • Budynek w stanie do wykończenia, z aneksem kuchennym  
  • Taras, garaż  
  • Ogrzewanie gazowe
  • Materiał budowy pustak ceramiczny
  • Dach blachodachówka
  • Media woda, oczyszczalnia przydomowa, gaz
  • Oferta bezpośrednio od właściciela dodana ponad tydzień temu
Ta nieruchomość może być Twoja od.. sprawdź
256000 zł (20%) Okres spłaty: 30 lat

Podobne domy na sprzedaż

22
dom wolnostojący, 4 pokoje Borkowice

1 299 000

89

4 pok.

Dom z dala od hałasu – osiedle Przystań Natura Przystań Natura to miejsce, gdzie naprawdę można odetchnąć od miejskiego zgiełku i poczuć bliskość natury. Zamknięte osiedle położone jest zaledwie kilka minut od Pabianic, oferuje idealne połączenie ciszy i wygody codziennego życia. Okolica zachwyca s...

Zobacz ogłoszenie
4
siedlisko Jerwonice

880 000

110

Oferuję na sprzedaż siedlisko położone w spokojnej, zielonej okolicy, idealne dla osób szukających ciszy, przestrzeni oraz możliwości prowadzenia działalności. Na nieruchomość składa się: - 4 duże, rozległe budynki - dom mieszkalny o powierzchni ok. 110 m² - działka o powierzchni ok. 4000 m² Siedl...

Zobacz ogłoszenie
34
dom wolnostojący, 3 pokoje Czołczyn

799 000

158

3 pok.

Do sprzedania dom w Czołczynie koło Lutomierska. Dom parterowy (158m2) + poddasze użytkowe. Parter jest do zamieszkania, natomiast poddasze jest do wykończenia. Działka 1000m2. Dostępne media: woda, gaz, prąd. Oczyszczalnia przydomowa. Ogrzewanie gazowe + kominek z płaszczem wodnym. Więcej informac...

Zobacz ogłoszenie
13
dom wolnostojący, 5 pokoi Babice

1 100 000

159

5 pok.

Na sprzedaż dom powierzchni użytkowej 159.m. ((powierzchnia podłogi))) Budowa domu 2012 r a 2015r. Zakończenie stan deweloperski zamknięty Dom znajduje cichej spokojnej okolicy 300 m sdadlina 🐴. (((Działka cała porośnięta krzewami i sosnami i tujami)))). Aleksandra 6 km. Łódź 18 km. (((Blisko lasy ...

Zobacz ogłoszenie
20
dom wolnostojący, 6 pokoi Lutomiersk

1 390 000

140

6 pok.

Na sprzedaż Dom w centrum Lutomierska, dojazd drogą asfaltową na osiedlu "szkolna". !!! Dom sprzedawany z pełnym wyposażeniem i umeblowaniem !!! Na nieruchomości znajduje się pawilon handlowy idealny pod działalność z osobnym wjazdem. - 5 pokoi + salon z jadalnią, kuchnią, 2 łazienki, kotłownia, p...

Zobacz ogłoszenie
12
dom wolnostojący Babiczki

1 300 000

110

Sprzedam dom w ładnej, zielonej okolicy. Okolice: Żabiczek-Babiczek k/ Łodzi, gmina Lutomiersk. 10 min do autobusu. - 5 pokoi, - 2 łazienki, - taras. Ogrzewanie: gazowe, jak również eko groszek oraz kominek. Zapraszam do oglądania. Bez pośredników.

Zobacz ogłoszenie