Dom na sprzedaż bez pośredników
ul. Ziemiańska Łódź Widzew

dom wolnostojący, 4 pokoje Łódź Widzew, ul. Ziemiańska. Zdjęcie 1

Dom na sprzedaż bez pośredników Łódź Widzew ul. Ziemiańska

645 000
4 607 zł/m²
140
4 pok.
Łódź Widzew, Ziemiańska - lokalizacja przybliżona
Bezpośrednio od właściciela

Jeśli nie potrzebujesz pośrednika, zaoszczędzisz około 19 400 zł. Potrzebujesz wsparcia? Skorzystaj z pomocy agenta.

  • ul. Ziemiańska, Łódź Widzew  
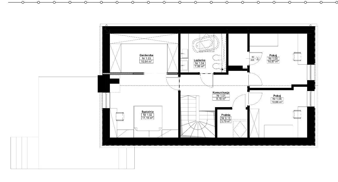
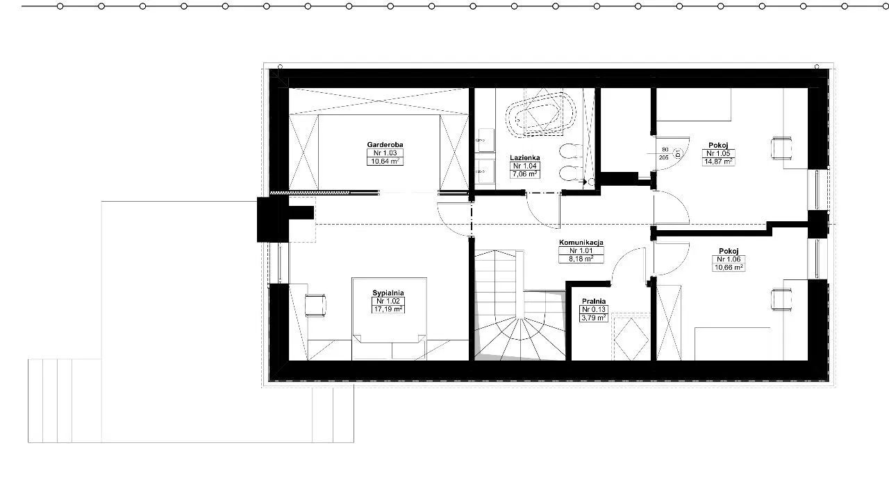
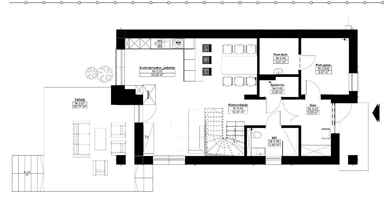
  • Na sprzedaż dom wolnostojący o powierzchni 140 m², 4 pokoje wybudowany w 2022 roku
  • Sizing Streamline Icon: https://streamlinehq.com
    Działka 700 m²  
  • Budynek w stanie surowym zamkniętym  
  • Materiał budowy pustak ceramiczny
  • Dach dachówka
  • Okna aluminiowe
  • Dojazd utwardzony
  • Oferta bezpośrednio od właściciela dodana ponad miesiąc temu i zaktualizowana ponad tydzień temu
Ta nieruchomość może być Twoja od.. sprawdź
129000 zł (20%) Okres spłaty: 30 lat

Podobne domy na sprzedaż

23
bliźniak, 4 pokoje Łódź Widzew, ul. Juliusza Osterwy

755 000

105

4 pok.

Dom bliźniak w spokojnej okolicy - Łódź Widzew, Andrzejów, ul. Osterwy 2A Powierzchnia domu: 105 m² | Działka: 528 m² Na sprzedaż dom w zabudowie bliźniaczej wybudowany w 1980 roku, położony w cichej i spokojnej części Andrzejowa, w otoczeniu zabudowy jednorodzinnej. Nieruchomość usytuowana jest na ...

Zobacz ogłoszenie
16
dom wolnostojący, 6 pokoi Łódź Polesie, ul. Zdrowie

659 000

130

6 pok.

Na sprzedaż dom jednorodzinny (lub dwurodzinny, posiada dwa niezależne wejścia) o powierzchni 130 m². Nieruchomość składa się z 2 kondygnacji, po 65 m² na każdym piętrze. Na każdym piętrze znajdują się 3 pokoje, kuchnia i łazienka. Wraz z zabudowaniami towarzyszącymi: wolno stojące pomieszczenia go...

Zobacz ogłoszenie
8
gospodarstwo Łódź Widzew, ul. Herbowa

820 000

115

Oferuję na sprzedaż działkę o powierzchni 2311 m². Na działce znajduje się dom o pow. 115 m². Dom do generalnego remontu. Działka znajduje się w spokojnej, zielonej części dzielnicy Łódź Widzew. W sąsiedztwie Las Łagiewnicki. Nieruchomość znajduje się przy ulicy Herbowej w osiedlu domków jednorodzin...

Zobacz ogłoszenie
5
dom szeregowy, 4 pokoje Łódź Widzew, ul. Jana Kasprowicza

729 000

96

4 pok.

Osiedle Kasprowicza 4, to kameralny projekt tworzony z myślą o osobach, które szukają komfortowej przestrzeni do życia, własnego ogródka i funkcjonalnych układów dopasowanych do codziennych potrzeb. W ramach inwestycji planowane są domy w zabudowie szeregowej oraz apartamenty jednokondygnacyjne z og...

Zobacz ogłoszenie
12
bliźniak, 5 pokoi Łódź Widzew

610 000

120

5 pok.

Sprzedam dom jednorodzinny z poddaszem użytkowym w zabudowie bliźniaczej. Dach pokryty blachą w kolorze grafitu. Mur z cegły max. Okna plastikowe trzyszybowe. Powierzchnia zabudowy 84mkw. Powierzchnia użytkowa budynku wynosi 120mkw. Na parterze znajduje się salon z aneksem kuchennym o powierzchni 33...

Zobacz ogłoszenie
14
bliźniak, 4 pokoje Łódź Widzew

769 000

85

4 pok.

Miły, przyszły Właścicielu! Marzysz o mieszkaniu w mieście, ale z dala od jego zgiełku? Ten dom to świetna alternatywa dla mieszkania w bloku! Oferuję na sprzedaż przestronny dom dwurodzinny (bliźniak) w Nowosolnej, Łódź. Idealny dla osób, które szukają komfortu, przestronności i zacisza. OPIS N...

Zobacz ogłoszenie