Dom na sprzedaż bez pośredników
Jeżowe  

dom wolnostojący Jeżowe. Zdjęcie 1

Dom na sprzedaż bez pośredników Jeżowe

580 000
3 382 zł/m²
171
Jeżowe - lokalizacja przybliżona
Bezpośrednio od właściciela

Jeśli nie potrzebujesz pośrednika, zaoszczędzisz około 17 400 zł. Potrzebujesz wsparcia? Skorzystaj z pomocy agenta.

Nowe osiedle domów jednorodzinnych wolnostojących.
Gmina Jeżowe - Kameralne.
Domy położone są w cichej i spokojnej okolicy.
Domy wg projektu indywidualnego.

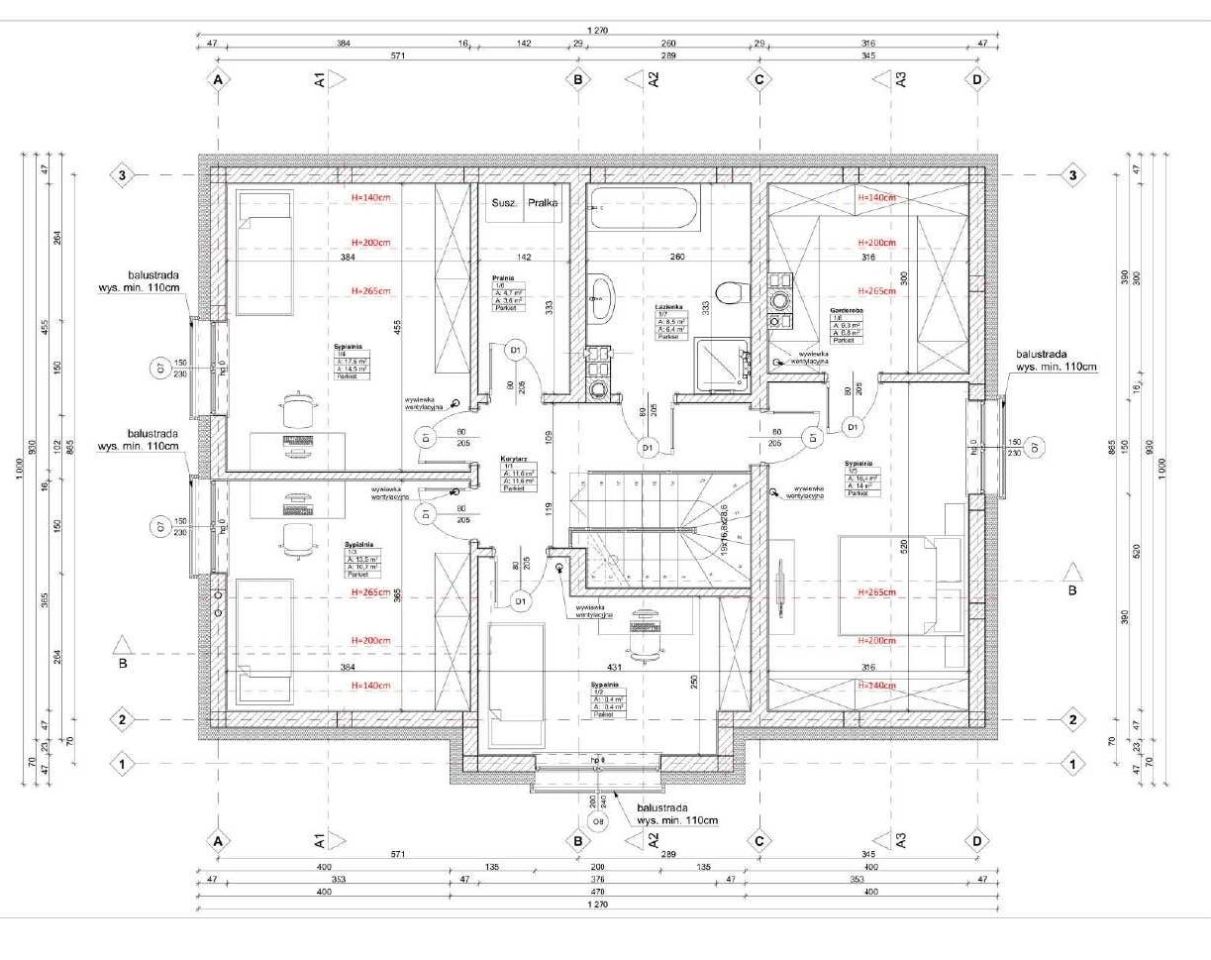
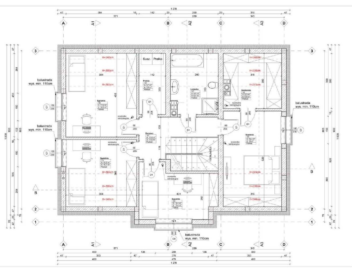
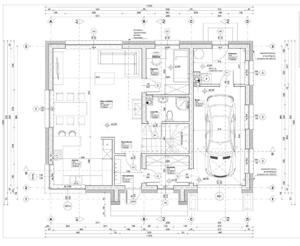
Powierzchnia użytkowa to 171,5 mkw - przestronny salon połączony z kuchnią, gabinet, 3 sypialnie, 2 łazienki i garaż w bryle domu.

Budynki sprzedawane w stanie surowym otwartym:
- Fundamenty: ławy fundamentowe żelbetowe.
- Ściany fundamentowe: betonowe, izolacja przeciwwilgociowa i termiczna fundamentów.
- Kanalizacja podposadzkowa, ślepa wylewka.
- Ściany: pustak ceramiczny gr. 24 cm i 11,5 cm.
- Strop parteru gęstożebrowy (Porotherm), strop poddasza monolityczny żelbetowy.
- Schody: monolityczne żelbetowe.
- Więźba dachowa drewniana, pokrycie blachodachówką.
- Media: prąd (w trakcie przyłącza), woda (własne ujęcie), szambo/oczyszczalnia ścieków.

Możliwość dalszego wykończenia domu lub we własnym zakresie.

Dom 1 - powierzchnia działki 10,68 a, dojazd z drogi asfaltowej gminnej.
Dom 2 - powierzchnia działki 10,94 a, dojazd z drogi asfaltowej gminnej.
Dom 3 - powierzchnia działki 9,51 a, dojazd z drogi asfaltowej gminnej.
Dom 4 - powierzchnia działki 8,87 a, dojazd drogą wewnętrzną + udział 1/6 w drodze.
Dom 5 - powierzchnia działki 7,73 a, dojazd drogą wewnętrzną + udział 1/6 w drodze.
Dom 6 - powierzchnia działki 7,52 a, dojazd drogą wewnętrzną + udział 1/6 w drodze.
Dom 7 - powierzchnia działki 9,37 a, dojazd drogą wewnętrzną + udział 1/6 w drodze.
Dom 8 - powierzchnia działki 7,05 a, dojazd drogą wewnętrzną + udział 1/6 w drodze.
Dom 9 - powierzchnia działki 7,05 a, dojazd drogą wewnętrzną + udział 1/6 w drodze.

Termin realizacji budynków w stanie surowym otwartym: 2025 r.
Wszystkie domki dostępne.

Cena: 580 000,00 zł

Zapraszam do kontaktu tel.

Treść niniejszego ogłoszenia nie stanowi oferty handlowej w rozumieniu Kodeksu Cywilnego.

  • Oferta z rynku pierwotnego
  • Jeżowe, powiat niżański  
  • Na sprzedaż dom wolnostojący o powierzchni 171,50 m² wybudowany w 2025 roku
  • Sizing Streamline Icon: https://streamlinehq.com
    Działka 1 068 m²  
  • Budynek w stanie surowym otwartym, z aneksem kuchennym  
  • Garaż  
  • Materiał budowy pustak ceramiczny
  • Dach blachodachówka
  • Dojazd asfalt
  • Oferta bezpośrednio od właściciela dodana ponad miesiąc temu i zaktualizowana ponad tydzień temu
Ta nieruchomość może być Twoja od.. sprawdź
116000 zł (20%) Okres spłaty: 30 lat

Podobne domy na sprzedaż

18
dom wolnostojący, 6 pokoi Rudnik nad Sanem, ul. Ignacego Daszyńskiego

550 000

140

6 pok.

Jednorodzinny dom w ścisłym centrum Rudnika n.Sanem.Położony u zbiegu ulic Sienkiewicza i Daszyńskiego.Posiada 6 jasnych pokoi, dużą ustawną kuchnię,dużą piwnicę-3 pomieszczenia,duży strych do adaptacji na dodatkową sypialnie,lokal na działalność lub gabinet.Na piętrze jeden balkon i spory taras na...

Zobacz ogłoszenie
5
dom wolnostojący Racławice

580 000

112

Na sprzedaż atrakcyjny dom jednorodzinny „Dom w Bodziszkach” wraz z budynkiem gospodarczym, położony na działce o powierzchni 10 arów w spokojnej, zielonej okolicy. Idealne miejsce dla osób ceniących ciszę, prywatność i bliskość natury, z dogodnym dojazdem do pobliskich miejscowości. Budynek mieszk...

Zobacz ogłoszenie
6
dom wolnostojący, 7 pokoi Nisko

749 000

140

7 pok.

Na sprzedaż: Przestronny dom w otoczeniu lasu - Nisko, Podkarpacie Szukasz domu w cichej i malowniczej okolicy? Ta oferta jest dla Ciebie! Oferujemy na sprzedaż piętrowy dom o powierzchni 140 m², położony w Nisku (woj. podkarpackie), w otoczeniu lasu. To idealne miejsce dla osób ceniących spokój, ...

Zobacz ogłoszenie
30
dom wolnostojący, 6 pokoi Nisko, ul. Sopocka

649 990

179

6 pok.

Dom + duża działka 2357 m² | 6 pokoi | dwa niezależne poziomy | Nisko Biuro BiP Smart prezentuje wyjątkowy dom wolnostojący o powierzchni 179 m² na przestronnej działce 2357 m² w Nisku. Nieruchomość oferuje możliwość funkcjonowania jako dwa niezależne mieszkania – idealne rozwiązanie dla rodzin w...

Zobacz ogłoszenie
3
dom wolnostojący Ulanów

579 000

160

Sprzedam dom w Ulanowie z projektu "Ramiro-Lustro". Dodatkowo, dom jest w całości podpiwniczony. Wysokość piwnic: 3 m. Osobny wjazd. Dom usytuowany na wzniesieniu. Bardzo ładna lokalizacja. Wszystkie media na miejscu. Więcej info na tel.

Zobacz ogłoszenie
22
dom wolnostojący, 6 pokoi Jeżowe

730 000

148

6 pok.

o sprzedania wyjątkowa posiadłość w malowniczej wsi Jerzowe – dwie działki o łącznej powierzchni 43 arów, idealne dla osób ceniących spokój, naturę i komfort. 1. Pierwsza działka (0,0952 ha, nr ewid. 4443) z murowanym, dwupiętrowym domem mieszkalnym z lat 70-tych o powierzchni użytkowej ok. 148 m² ...

Zobacz ogłoszenie