










domu

zdjęć
Ogłoszenie właściciela - bez pośredników
Bez pośrednika. Oszczędzasz 27 000 zł na prowizji pośrednika!
27 000 zł to wartość typowej prowizji 3%, którą zapłaciłbyś pośrednikowi dla nieruchomości o wartości 900 000 zł
Sprzedam działkę z domem zlokalizowaną w centrum Grodziska Maz. Ul. Żeromskiego 32 a. . Działka o szerokości -24,5 m, w kształcie regularnego prostokąta, o powierzchni 1294 m kw., ogrodzona siatką. Położona w centrum miasta, w otoczeniu zadbanych domów jednorodzinnych z ogrodami, w odległości 600 m od parkingu przy dworcu PKP, 300 m od przystanku komunikacji miejskiej, 4,7 km od wjazdu na autostradę A2. Blisko dwa przedszkola i szkoła podstawowa.
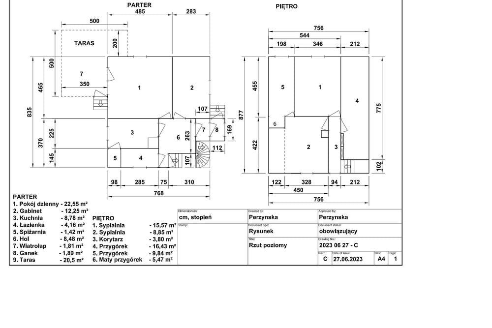
Na działce kilka dużych cisów, świerk srebrny, orzech włoski, orzechy laskowe, kilka drzew owocowych. Dom z 4 pokojami o powierzchni 120 m kw., wybudowany w połowie lat 60-tych. Do budynku przyłączone są media: energia elektryczna, woda z wodociągu, gaz, linia telefoniczna. Szambo znajduje się na działce. Kanalizacja w ulicy Żeromskiego i Mariańskiej. Budynek jednopiętrowy ze stromym dachem z bardzo dobrym funkcjonalnym rozkładem pomieszczeń. Na parterze znajdują się dwa pokoje, kuchnia ze spiżarnią, łazienka z oknem, widna klatka schodowa prowadząca na piętro i do piwnicy, hol, wiatrołap, ganek oraz duży taras (obecnie zabudowany). Na piętrze znajdują się: widny korytarz, dwie sypialnie - obok których zlokalizowane są dwa duże przygórki, w których można urządzić dla każdej z sypialni odrębnie łazienkę i garderobę. Usytuowanie kominów umożliwia również instalację kominka w pokoju na dole i w większym pokoju na górze. Z holu na parterze można zejść do dużego, wysokiego podpiwniczenia, w którym znajduje się szereg pomieszczeń obejmujących swą powierzchnią obrys domu i tarasu. Jest tam zlokalizowana kotłownia z piecem gazowym dwufunkcyjnym, pralnia, warsztat z prądem trójfazowym, piwnica, komórka. Dom ma bardzo duży potencjał, można do niego dobudować garaż, naprzeciwko drugiej bramy wjazdowej, którego zadaszenie może stanowić taras dla piętra.
W razie potrzeby stan techniczny domu umożliwia jego tymczasowe zamieszkanie, ale remont jest konieczny. Remont domu powinien objąć wymianę pokrycia dachu ,dodatkowe ocieplenie, wymianę okien i instalacji, cyklinowanie dębowego parkietu, położenie nowej ceramiki i montaż nowych urządzeń sanitarnych. Wewnątrz ścian schowane rury co, które doprowadzały ciepłą wodę do grzejników kiedyś zlokalizowanych w niszach pod okiennych. Na ocieplenie, wymianę okien, izolację stropu można uzyskać dofinansowanie do 50% z programu czyste powietrze. Program ten obejmuje jedynie tylko domy remontowane.
Budynek wybudowany na podstawie gotowego projektu, który uwzględnia najlepszy dorobek polskiej architektury lat 60 -tych. Nieruchomość posiada nie obciążoną księgę wieczystą bez służebności.
Grodzisk Mazowiecki znajduje się w odległości 30 km od Warszawy jest położony pomiędzy autostradą A2 i trasą S-8. Dojazd do Warszawy PKP i WKD. W Grodzisku zatrzymują się pociągi dalekobieżne, do planowanego CPK 12 km. Miasto zadbane, jedno z najbogatszych związków miejsko gminnych w Polsce.
· ul. S. Żeromskiego 32A, Grodzisk Mazowiecki Centrum, powiat grodziski
· Na sprzedaż dom wolnostojący o powierzchni 120 m², wybudowany w 1965 roku
· Działka 1294 m², o szerokośći 24,5 m
· Budynek murowany- pustak, podpiwniczony (z osobną kuchnią), do remontu.
· Ogrzewanie centralne, gazowe.
· Dojazd: utwardzony, ogrodzenie: siatka
· Media: woda, prąd, gaz, stacjonarna linia telefoniczna, kanalizacja w ulicy na działce szambo.
- ul. S. Żeromskiego, Grodzisk Mazowiecki Centrum, powiat grodziski
- Na sprzedaż dom wolnostojący o powierzchni 120 m², wybudowany w 1965 roku
- Działka 1294 m²
- Budynek w stanie do remontu, z osobną kuchnią
- Taras
- Dojazd: utwardzony, ogrodzenie: siatka
- Media: szambo, prąd, gaz
- Oferta dodana bezpośrednio przez właściciela ponad miesiąc temu i zaktualizowana ponad tydzień temu