Dom na sprzedaż bez pośredników
Chraboły  

dom wolnostojący, 5 pokoi Chraboły. Zdjęcie 1

Dom na sprzedaż bez pośredników Chraboły

569 999
4 711 zł/m²
121
5 pok.
Chraboły - lokalizacja przybliżona
Bezpośrednio od właściciela

Jeśli nie potrzebujesz pośrednika, zaoszczędzisz około 17 100 zł. Potrzebujesz wsparcia? Skorzystaj z pomocy agenta.

Na sprzedaż nowoczesny budynek o powierzchni 121 m²
Inwestycja w trakcie realizacji – planowane zakończenie budowy w 2026 roku.

Budynek zaprojektowany został z myślą o funkcjonalności i komforcie użytkowników. Przestronne wnętrza pozwalają na dowolną aranżację według indywidualnych potrzeb. Wykonany zostanie z wysokiej jakości materiałów, z dbałością o energooszczędne rozwiązania.

Najważniejsze atuty nieruchomości:

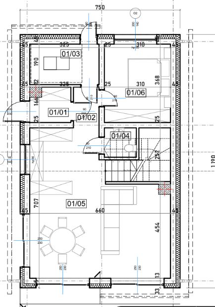
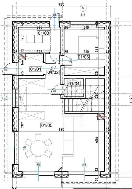
Powierzchnia: 121 m²

Nowoczesny projekt

Termin zakończenia: 2026 rok

Możliwość indywidualnej aranżacji wnętrz

Atrakcyjna lokalizacja przy drodze asfaltowej
Chraboły 16-002 Dobrzyniewo Duże

Idealna propozycja dla osób poszukujących nowego, solidnego budynku w nowoczesnym standardzie.

Cena SSZ 569.999

  • Oferta z rynku pierwotnego
  • Chraboły, gmina Dobrzyniewo Duże, powiat białostocki  
  • Na sprzedaż dom wolnostojący o powierzchni 121 m², 5 pokoi wybudowany w 2025 roku
  • Sizing Streamline Icon: https://streamlinehq.com
    Działka 800 m², długość działki: 50 m, szerokość działki: 16 m  
  • Budynek z poddaszem użytkowym, w stanie surowym zamkniętym, z osobną kuchnią  
  • Bez piwnicy  
  • Ogrzewanie elektryczne
  • Materiał budowy pustak ceramiczny
  • Dach blacha
  • Okna plastikowe
  • Dojazd asfalt
  • Ogrodzenie bez ogrodzenia
  • Media woda, szambo, prąd
  • Cena do negocjacji  
  • Oferta bezpośrednio od właściciela dodana ponad miesiąc temu i zaktualizowana ponad tydzień temu
Ta nieruchomość może być Twoja od.. sprawdź
114000 zł (20%) Okres spłaty: 30 lat

Podobne domy na sprzedaż

8
dom wolnostojący Pogorzałki

530 000

100

Dzień dobry, Sprzedam dom wolnostojący o powierzchni zabudowy 100m2, który usytuowany jest na działce o powierzchni 1000m2. Dom mieści się w miejscowości Pogorzałki (gmina Dobrzyniewo Duże). Dom w stanie surowym, zamkniętym. Postawiony na płycie fundamentowej, wykonany konstrukcją szkieletową, z m...

Zobacz ogłoszenie
1
dom wolnostojący Fasty, ul. Rolna

750 000

160

Zobacz ogłoszenie
9
dom wolnostojący, 5 pokoi Fasty

759 000

125

5 pok.

Posiadam na sprzedaż dwupoziomowy dom wolnostojący w Fastach (dwa pełne piętra bez skosów), 8 km od centrum Białegostoku, 1 km od granicy miasta. Inwestycja gotowa do odbioru. Sprzedaż na podstawie faktury z VAT bez PCC. Dom o przestronnym metrażu 125,45 m2 w stanie surowym zamkniętym z działką 42...

Zobacz ogłoszenie
6
dom wolnostojący, 4 pokoje Czarna Białostocka

600 000

162

4 pok.

Sprzedam dom wolnostojący w stanie surowym otwartym o powierzchni zabudowy 200.7 m2 i powierzchni użytkowej 162 m2. Na którą składa się: - wiatrołap, - salon z jadalnią i kuchnią, - 2 łazienki, - 4 sypialnie, - garderoba, - pomieszczenie gospodarcze. Dom usytuowany na działce 733 m2 o regularnym k...

Zobacz ogłoszenie
19
dom szeregowy, 4 pokoje Nowodworce

599 000

85

4 pok.

NOWODWORCE - blisko miasta Chcesz zamieszkać blisko miasta a jednocześnie móc cieszyć się przyrodą? To dobrze trafiłeś! Mamy nową interesującą ofertę! Nasza oferta to nowa inwestycja. Super lokalizacja- przecież to Nowodworce! Zapraszamy na prezentację domów w zabudowie szeregowej o powierzch...

Zobacz ogłoszenie
8
dom wolnostojący, 3 pokoje Fasty, ul. Szosa Knyszyńska

620 000

100

3 pok.

Dom wolnostojący, murowany cegłą, piętrowy z 1965r. do remontu. Powierzchnia działki 910m2. Na powierzchnię domu składa się: 1. PARTER o pow. użytkowej 60m2 - 3 pokoje - oddzielna kuchnia z kuchenką gazową - łazienka z wanną i WC - przedpokój z wejściem na piętro i zejściem do piwnicy - 2 oddzielne ...

Zobacz ogłoszenie