Dom na sprzedaż bez pośredników
Ciechanów  

dom wolnostojący, 6 pokoi Ciechanów. Zdjęcie 1

Dom na sprzedaż bez pośredników Ciechanów

699 000
4 136 zł/m²
168
6 pok.
Ciechanów - lokalizacja przybliżona
Bezpośrednio od właściciela

Jeśli nie potrzebujesz pośrednika, zaoszczędzisz około 21 000 zł. Potrzebujesz wsparcia? Skorzystaj z pomocy agenta.

Oferujemy Państwu na sprzedaż NOWY wolnostojący dom jednorodzinny z użytkowym poddaszem oraz garażem jednostanowiskowym.

O INWESTYCJI

Nasza inwestycja to małe, kameralne osiedle położone tuż za granicą Ciechanowa otoczone z trzech stron kilkudziesięcioletnim lasem, który zapewnia odpowiednie warunki do odpoczynku każdego dnia zarówno po pracy jak i w trakcie pracy w domu.

Przy bocznej uliczce odchodzącej od ulicy Wrzosowej zlokalizowany jest nasz jednolity stylistycznie zespół wolnostojących domów jednorodzinnych o powierzchni użytkowej od 130m2 do 169m2.

Projekt nawiązuje do tradycyjnej architektury i urbanistyki, ale nasze domy posiadają wiele nowoczesnych rozwiązań technicznych i ekologicznych.

Domy dzięki uniwersalnym układom pozwalają na ich wewnętrzne rozplanowanie w dowolny sposób tak, aby każdy z kupujących mógł w nich dobrze żyć według swoich wymagań. Uniwersalność projektu zapewni Państwu pełen komfort i nieograniczone możliwości. Usytuowanie domów korzystnie do stron świata zapewni doskonałe doświetlenie wnętrza budynku.

Działki o powierzchni od 850m2 do 1350m2 zostały wydzielone w taki sposób, aby nie "przytłaczały", a każdy z mieszkańców miał swoją odpowiednią przestrzeń do życia i rekreacji, która nie kończy się od razu kilka metrów za murem domu.

Pracując nad naszym projektem skupialiśmy się nad tym, aby był on inny niż wszystkie, jakie są budowane w okolicy.

DANE OGÓLNE NIERUCHOMOŚCI

BUDYNEK nr 7

Oferowany przez nas budynek ma 141,35m2 powierzchni użytkowej oraz dodatkowo 31,23m2 garażu. Znajduje się na działce o powierzchni 1 049,00m2.

Na PARTERZE budynku znajdują się:

Wiatrołap – 3,56m²

Komunikacja – 7,00m²

Pokój – 7,40m²

Salon + jadalnia – 28,53m²

Kuchnia – 11,56m²

Pomieszczenie gospodarcze – 10,06m²

Łazienka – 3,79m²

Garaż – 31,23m²

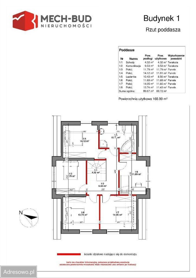
Na PODDASZU budynku znajdują się:

Schody – 4,51m²

Komunikacja – 7,80m²

Pokój – 9,69m²

Pokój – 11,58m²

Łazienka – 7,60m²

Pokój – 10,95m²

Pokój – 11,11m²

Pokój – 9,96m²

Dzięki obszernemu wnętrzu istnieje możliwość dowolnej aranżacji i zmiany układu pomieszczeń według pomysłu i projektu Kupującego.

Aby wyjść naprzeciw Państwa oczekiwaniom i różnym preferencjom oferujemy powyższą nieruchomość w dwóch wariantach wykończenia wewnątrz, które zostały przedstawione w formie tabeli w zdjęciach do ogłoszenia.

Wariant 1 – 699 000 zł

Wariant 2 – 879 000 zł

ATUTY NIERUCHOMOŚCI:

- Dom wolnostojący

- Duża działka

- Funkcjonalny układ pomieszczeń pozwalający na dostosowanie nieruchomości do każdych potrzeb

- Dużo naturalnego światła dzięki przeszkleniom oraz usytuowaniu budynku

- Cicha i spokojna okolica

- Lamele kompozytowe na elewacji

- Murowane ogrodzenie od frontu z nowoczesnymi przęsłami

- Podjazd i taras wykończony kostką brukowa

- Bliskość lasu i terenów rekreacyjnych

- Niskie koszty utrzymania dzięki zastosowaniu energooszczędnych materiałów

Planowany termin zakończenia prac: II kwartał 2027 roku

Zapraszam do kontaktu telefonicznego w celu uzyskania większej ilości informacji.

Powyższa oferta ma charakter informacyjny i nie stanowi oferty handlowej w rozumieniu art. 66 §1 Kodeksu Cywilnego

  • Ciechanów, powiat ciechanowski  
  • Na sprzedaż dom wolnostojący o powierzchni 168,99 m², 6 pokoi wybudowany w 2024 roku
  • Sizing Streamline Icon: https://streamlinehq.com
    Działka 1 311 m²  
  • Taras, garaż  
  • Dojazd utwardzony
  • Ogrodzenie murowane
  • Media woda, szambo, prąd, gaz
  • Oferta bezpośrednio od właściciela dodana ponad miesiąc temu i zaktualizowana ponad tydzień temu
Ta nieruchomość może być Twoja od.. sprawdź
140000 zł (20%) Okres spłaty: 30 lat

Podobne domy na sprzedaż

20
dom wolnostojący, 4 pokoje Ciechanów, ul. Równa

715 000

108

4 pok.

Lokalizacja: Nieruchomość znajduje się w spokojnej okolicy. W pobliżu: - szkoła, przedszkole, park, las - sklepy/usługi: Gram market, galeria Mrówka, Poczta Polska, kwiaciarnia i wiele innych, - komunikacja: przystanek autobusowy Podstawowe informacje: - powierzchnia domu: 108,59m² - powierzchnia dz...

Zobacz ogłoszenie
4
dom wolnostojący, 5 pokoi Ciechanów Centrum, ul. Płońska

450 000

102

5 pok.

Sprzedam dom 102,53 m2 w Ciechanowie na ulicy Płońskiej 78. Dom jest do częściowego remontu, składa się z 2 kondygnacji: parter i piętro. Dom jest całkowicie podpiwniczony. Powierzchnia użytkowa 102,53 m2, powierzchnia działki 529 m2. Dom znajduje się na skrzyżowaniu ulicy Płońskiej i Mleczarskiej p...

Zobacz ogłoszenie
11
dom wolnostojący Ciechanów, ul. Bartosza Głowackiego

750 000

155

Witam, Mam do sprzedania działkę o powierzchni 750m2 położoną w Ciechanowie przy ulicy Bartosza Głowackiego – dzielnica „Bloki” wraz z zabudową, w której skład wchodzą: • dom jednorodzinny o powierzchni użytkowej 155m2 • pawilon usługowy o powierzchni użytkowej 60m2 • garaż jednostanowiskowy wolnos...

Zobacz ogłoszenie
11
dom wolnostojący, 5 pokoi Ciechanów, ul. Płońska

689 000

130

5 pok.

Na sprzedaż dom o powierzchni 130 m², położony na działce o powierzchni 342 m² w Ciechanowie przy ul. Płońskiej. Układ pomieszczeń: Parter: dwa duże pokoje przestronna łazienka korytarz wiatrołap zamknięta kuchnia wyposażona w sprzęt AGD (zmywarka, piecyk gazowy z piekarnikiem, lodówka) Podd...

Zobacz ogłoszenie
4
dom wolnostojący Ciechanów

900 000

176

Ciche, spokojne osiedle. - Wszystkie media w środku: woda, prąd. - Kanalizacja miejska. - Działka ogrodzona. Więcej informacji telefonicznie.

Zobacz ogłoszenie
6
dom wolnostojący, 5 pokoi Ciechanów Kargoszyn, ul. Konstantego Ildefonsa Gałczyńskiego

699 000

118

5 pok.

WYJĄTKOWY DOM Z POTENCJAŁEM - CIECHANÓW, KARGOSZYN Szukasz nieruchomości, którą możesz stworzyć od podstaw według własnej wizji? Ta oferta w prestiżowej i spokojnej dzielnicy Kargoszyn to idealna baza pod Twój wymarzony projekt. Najważniejsze informacje: Powierzchnia użytkowa: 118,3 m² (część mies...

Zobacz ogłoszenie