Dom na sprzedaż bez pośredników
Woźbin  

dom wolnostojący Woźbin. Zdjęcie 1

Dom na sprzedaż bez pośredników Woźbin

550 000
3 481 zł/m²
158
Woźbin - lokalizacja przybliżona
Bezpośrednio od właściciela

Jeśli nie potrzebujesz pośrednika, zaoszczędzisz około 16 500 zł. Potrzebujesz wsparcia? Skorzystaj z pomocy agenta.

Sprzedam dom w stanie surowym otwartym.

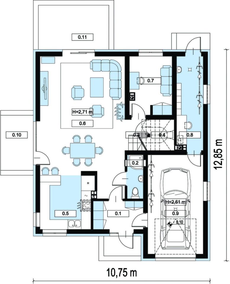
Projekt Medea Extradom, 158 m² (https://www.extradom.pl/projekt-domu-medea-WOW1026), z drobnymi zmianami na górze, tak by był jeszcze bardziej praktyczny.

Powierzchnia użytkowa wg projektu: niespełna 160 m², łącznie ok. 190 m², plus możliwość zagospodarowania strychu o kolejne ok. 80 m².

Dom na działce o powierzchni 1898 m².
Działka częściowo ogrodzona siatką leśną.
Na ogrodzonej części garaż blaszak i wychodek.

Woda doprowadzona do domu, skrzynka z prądem w granicy.
Wstawione tymczasowe drzwi i okna.

Nieruchomość położona w miejscowości Woźbin, tuż przy granicy z miastem Cegłów.
- Do stacji PKP Cegłów: niecałe 2 km.
- Do PKP Mrozy: ok. 3 km.
- W Cegłowie: liczne sklepy, ośrodek zdrowia, szkoła itd.
- Ok. 10 minut do wjazdu na autostradę A2.

Zachęcam do oględzin.
Więcej informacji pod numerem telefonu.

  • Oferta z rynku pierwotnego
  • Woźbin, gmina Cegłów, powiat miński  
  • Na sprzedaż dom wolnostojący o powierzchni 158 m²  
  • Sizing Streamline Icon: https://streamlinehq.com
    Działka 1 898 m²  
  • Budynek w stanie surowym otwartym  
  • Garaż  
  • Oferta bezpośrednio od właściciela dodana ponad miesiąc temu i zaktualizowana ponad tydzień temu
Ta nieruchomość może być Twoja od.. sprawdź
110000 zł (20%) Okres spłaty: 30 lat

Podobne domy na sprzedaż

19
dom wolnostojący, 5 pokoi Mrozy

599 000

100

5 pok.

Do sprzedaży eko dom jednorodzinny , wybudowany  z keramzytobetonu o powierzchni użytkowej około 100m2 (całkowitej około 150m2) ,  na działce o powierzchni 503m2  w uroczym zakątku Mrozów. Dom w trakcie budowy , w stanie surowym zamkniętym. Obecnie zrobione tynki , rozprowadzona elektryka oraz woda ...

Zobacz ogłoszenie
15
dom wolnostojący, 3 pokoje Mrozy

545 000

95

3 pok.

Mały funkcjonalny domek położony w Mrozach wybudowany w 2019r. Parterowy kryty blachodachówką. Ogrzewany gazem sieciowym. Kanalizacja i woda miejska. Zamieszkały i wykończony jak w załączonej dokumentacji fotograficznej. Oddany do użytkowania. Sprzedawany bez mebli. Działka nieogrodzona. Do dworca P...

Zobacz ogłoszenie
8
dom wolnostojący, 4 pokoje Cegłów, ul. Wiosenna

435 000

115

4 pok.

Sprzedam dom w Cegłowie z rozpoczętą budową (stan surowy otwarty), parterowy o powierzchni użytkowej 115 m² (powierzchnia całkowita 150 m²). Rozkład pomieszczeń: - 3 sypialnie, - łazienka, - WC, - salon, - kuchnia, - kotłownia, - pomieszczenie gospodarcze. W projekcie przewidziano taras o powierzc...

Zobacz ogłoszenie
4
dom wolnostojący, 4 pokoje Wiciejów

700 000

110

4 pok.

Sprzedam dom o powierzchni 110 m2, składający się z dwóch sypialni, salonu, kuchni, przedpokoju, ganku, spiżarni i kotłowni. Na terenie działki znajduje się duży budynek gospodarczy oraz dwustanowiskowy garaż. Grunt położony przy drodze relacji Mińsk Mazowiecki - Cegłów. Nr działki: 141204_2.0017....

Zobacz ogłoszenie
14
dom wolnostojący, 6 pokoi Cegłów

460 000

158

6 pok.

Do sprzedania  dom w stanie surowym otwartym w malowniczym zakątku Cegłowa , na działce o powierzchni ok 1000 m2 ( Projekt Medea Extradom 158m2). Na parterze znajduje się hall z wejściem do salonu z aneksem kuchennym , łazienka , sypialnia oraz garaż z oddzielnym , dodatkowym wejściem .  Na górze są...

Zobacz ogłoszenie
8
dom wolnostojący, 5 pokoi Cisówka

600 000

120

5 pok.

Sprzedam siedlisko po gospodarstwie rolnym w miejscowości Cisówka, w gminie Stanisławów, w powiecie mińskim. Dom z budynkami mieści się w miejscowości oddalonej około 40 km od Warszawy. Łączna powierzchnia nieruchomości wynosi 3300 m2. Na nieruchomość składa się działka z budynkami gospodarczymi, s...

Zobacz ogłoszenie