Dom na sprzedaż bez pośredników
Nowe Bielice  

dom szeregowy, 4 pokoje Nowe Bielice. Zdjęcie 1

Dom na sprzedaż bez pośredników Nowe Bielice

520 000
5 361 zł/m²
97
4 pok.
Nowe Bielice - lokalizacja przybliżona
Bezpośrednio od właściciela

Jeśli nie potrzebujesz pośrednika, zaoszczędzisz około 15 600 zł. Potrzebujesz wsparcia? Skorzystaj z pomocy agenta.

Na sprzedaż dom w zabudowie szeregowej (środkowy) na "Osiedlu Zacisze" w Nowych Bielicach, na obrzeżach Koszalina.
Dom o powierzchni 97,2 m2, położony na działce o powierzchni ok. 150 m2, w stanie deweloperskim.

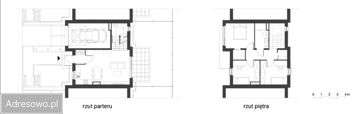
ROZKŁAD POMIESZCZEŃ (SEGMENT ŚRODKOWY):

PARTER:
- przedsionek (2,1 m2)
- kuchnia (7,2 m2)
- salon (18,6 m2)
- schody (1,6 m2)
- WC (2,9 m2)
- garaż (15,8 m2)
Łącznie na parterze 48,2 m2.

I PIĘTRO:
- schody (6,3 m2)
- korytarz (4,7 m2)
- sypialnia (10,8 m2)
- garderoba (1,8 m2)
- łazienka (4,9 m2)
- pom. gospodarcze (1,4 m2)
- sypialnia (9,3 m2)
- sypialnia (9,8 m2)
piętro łącznie 49 m2.

Łączna powierzchnia użytkowa 97,2 m2 + taras zewnętrzny (9,7 m2).
Powierzchnia działki ok. 150 m2.

Dodatkowe informacje odnośnie budynku:
- ściany - pustak termobet 18
- okna plastikowe
- dach płaski
- strop teriva
- elewacja styropian 20
- tynki gipsowe
- posadzki
- ogrzewanie gazowe
- szambo
- płot panelowy rozdzielający nieruchomości (bez ogrodzenia frontowego)

Kupujący nie płaci podatku PCC, sprzedaż opodatkowana 8% VAT.

  • Nowe Bielice, gmina Biesiekierz, powiat koszaliński  
  • Na sprzedaż dom szeregowy o powierzchni 97 m², 4 pokoje wybudowany w 2022 roku
  • Sizing Streamline Icon: https://streamlinehq.com
    Działka 153 m²  
  • Budynek w stanie do wykończenia  
  • Taras, garaż  
  • Ogrzewanie gazowe
  • Materiał budowy pustak
  • Dach papa
  • Okna plastikowe
  • Dojazd utwardzony
  • Ogrodzenie bez ogrodzenia
  • Media woda, szambo, prąd, gaz
  • Oferta bezpośrednio od właściciela dodana ponad miesiąc temu i zaktualizowana ponad tydzień temu
Ta nieruchomość może być Twoja od.. sprawdź
104000 zł (20%) Okres spłaty: 30 lat

Podobne domy na sprzedaż

1
dom letniskowy Niegoszcz

500 000

70

Sprzedam gotowy biznes w postaci dwóch domków na wynajem lub pobyt wakacyjny, od wczesnej wiosny do późnej jesieni. Na obecną chwilę domy w stanie do własnej aranżacji.

Zobacz ogłoszenie
28
dom letniskowy, 3 pokoje Porost

569 000

60

3 pok.

Halo, halo! Marzysz o wypoczynku wśród natury i blisko jeziora? To właśnie ta oferta jest dla Ciebie! Gdzie? Porost (Sapporo), woj. zachodniopomorskie Dom, który czeka na nowych właścicieli znajduje się na terenie zamkniętym. Do jeziora dzieli nas ok. 150 m, tu spędzimy cały dzień na plaży i pomoś...

Zobacz ogłoszenie
18
dom wolnostojący, 4 pokoje Mścice, ul. Koszalińska

549 000

82

4 pok.

Szukasz miejsca blisko morza, ale bez parawanów, tłumów i hałasu? Ta nieruchomość w Mścicach to idealny kompromis – kilka minut do Mielna, a na co dzień cisza, spokój i własna przestrzeń. Na sprzedaż piętro domu o powierzchni 82,83 m², które z powodzeniem pomieści rodzinę, domowe biuro i jeszcze...

Zobacz ogłoszenie
12
budynek wielorodzinny, 4 pokoje Kraśnik Koszaliński

429 000

95

4 pok.

Kupujący nie ponosi kosztów wynagrodzenia biura. Przy zakupie- Voucher 15 % do LEROY MERLIN ( partner sprzedażowy). Na sprzedaż parter domu wraz z przynależnymi pomieszczeniami piwnicznymi i pomieszczeniami gospodarczymi oraz ogródkiem, a także udziały w częściach wspólnych. Lokal mieszkalny znaj...

Zobacz ogłoszenie
13
bliźniak, 3 pokoje Mielno, ul. Kościelna

463 000

66

3 pok.

Na sprzedaż - dom jednorodzinny w zabudowie bliźniaczej - Mielno Oferuję na sprzedaż dom jednorodzinny w zabudowie bliźniaczej, położony w znanym i lubianym przez turystów Mielnie, zaledwie 900 m od morza i około 1 km od centrum miejscowości. Budynek parterowy z poddaszem użytkowym o powierzchni uży...

Zobacz ogłoszenie
4
bliźniak, 3 pokoje Niekłonice

545 000

64

3 pok.

Inwestycja to nowoczesne mieszkania, których piękno podkreślone zostało nowoczesną bryłą budynku. Ogrody, okna do podłogi zapewniające wspaniałe doświetlenie, osobne pomieszczenie na pompę ciepła i pralkę, cicha okolica, w niedalekiej odległości szkoła, przedszkola, sklepy. Wszystko to sprawi ogromn...

Zobacz ogłoszenie