Dom na sprzedaż bez pośredników
ul. Klepacka Białystok Starosielce

dom szeregowy, 4 pokoje Białystok Starosielce, ul. Klepacka. Zdjęcie 1

Dom na sprzedaż bez pośredników Białystok Starosielce ul. Klepacka

783 000
5 464 zł/m²
143
4 pok.
Białystok Starosielce, Klepacka - lokalizacja przybliżona
Bezpośrednio od właściciela

Jeśli nie potrzebujesz pośrednika, zaoszczędzisz około 23 500 zł. Potrzebujesz wsparcia? Skorzystaj z pomocy agenta.

SPRZEDAŻ BEZPOŚREDNIA

Dom w zabudowie szeregowej z garażem - stan do wykończenia.
Białystok, ul. Klepacka 19.

OPIS NIERUCHOMOŚCI:

- Działka 19A: 300 m².
- Powierzchnia domu: 143,29 m².
- Szeroki garaż: 19,35 m².
- Balkon: 7,5 m².
- Taras: 17,5 m² (wyłożony płytami betonowymi 60x60 cm).
- Poddasze ocieplone: 30 m².
- Ogrodzenie JONIEC z panelami antracytowymi, brama wjazdowa, furtka wejściowa i furtka śmietnikowa.
- Podjazd: polbruk Costa z gazonami na roślinność.
- Ekspozycja słoneczna: wjazd od północy, taras od strony południowej - bardzo widne i słoneczne.
- Pełne media: gaz, prąd, woda miejska, kanalizacja, światłowód.

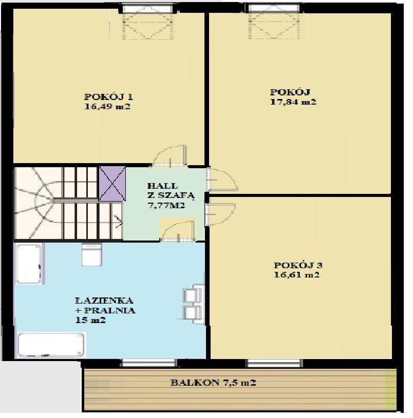
ROZKŁAD POMIESZCZEŃ:

Parter:
- Wiatrołap z dodatkowym miejscem na pojemne szafy - 7,02 m².
- Garderoba/kotłownia z piecem Viessmann - 3,69 m².
- Łazienka z miejscem na prysznic - 3,07 m².
- Duży garaż - 19,35 m² (3,5 m x 5,7 m).
- Salon z aneksem kuchennym - 40,63 m²: przygotowane podłączenie pod kominek, posiada duże przesuwne okna tarasowe HS z wyjściem na taras i ogród.
- Schowek pod schodami: 3,03 m².

Piętro:
- Pokój 1 - 14,10 m².
- Pokój 2 - 14,10 m².
- Pokój 3 - 17,61 m².
- Pokój 4 - 12,87 m².
- Łazienka z pralnią - 7,42 m².
- Korytarz z klatką schodową - 7,77 m².

Poddasze: 30 m² (ocieplony strop).

STANDARD WYKOŃCZENIA:

- Ściany: pustaki ceramiczne.
- Ocieplenie: styropian grafitowy 20 cm + wełna mineralna 10 cm.
- Dach: blacha na rąbek w kolorze antracytowym, rynny kwadratowe.
- Elewacja z oświetleniem LED.
- Instalacja elektryczna: ok. 115 punktów z osprzętem.
- Ogrzewanie: kocioł kondensacyjny Viessmann 19 kW, kominek w salonie, ogrzewanie podłogowe w całym domu i garażu.
- Stolarka: okna antracytowe, drzwi wejściowe Wikęd, drzwi tarasowe przesuwne HS, brama garażowa Wiśniowski.
- Instalacja przygotowana pod kamery.

LOKALIZACJA:

- Białystok, ul. Klepacka 19.
- Do centrum Białegostoku - 12 minut.
- W pobliżu: szkoła, przedszkole, kościół, sklepy (m.in. Biedronka).

Dom w stanie do wykończenia - solidna baza do urządzenia wnętrza według własnego stylu.

Zapraszam do kontaktu - oferta bezpośrednio od inwestora.

  • ul. Klepacka, Białystok Starosielce  
  • Na sprzedaż dom szeregowy o powierzchni 143,29 m², 4 pokoje wybudowany w 2024 roku
  • Sizing Streamline Icon: https://streamlinehq.com
    Działka 300 m²  
  • Budynek z aneksem kuchennym  
  • Balkon, garaż  
  • Materiał budowy pustak
  • Dach blacha
  • Media kanalizacja
  • Oferta bezpośrednio od właściciela dodana ponad miesiąc temu i zaktualizowana ponad tydzień temu
Ta nieruchomość może być Twoja od.. sprawdź
157000 zł (20%) Okres spłaty: 30 lat

Podobne domy na sprzedaż

6
dom szeregowy, 4 pokoje Białystok Bagnówka, ul. Ignacego Mościckiego

799 000

130

4 pok.

Domy w zabudowie szeregowej. Bardzo ładne miejsce. Spokojna i bezpieczna okolica. Dom o wysokiej jakości wykonania . Ogrodzony teren z bramą automatyczną. Dużo miejsca do parkowania i zabawy dzieciom. W pobliżu szkoła, przedszkole, żłobek, sklepy. Polecam

Zobacz ogłoszenie
10
dom wolnostojący, 6 pokoi Białystok Skorupy, ul. Michała Kajki

799 000

153

6 pok.

Nowa elewacja, okna plastikowe, wymieniony dach, ułożony polbruk, 2 bramy wjazdowe (jedna przesuwna). Dodatkowo na posesji znajduje się budynek gospodarczy z garażem. Budynek po całości podpiwniczony, parter i 1 piętro. Na parterze znajdują się 3 pokoje, kuchnia i łazienka. Następna kondygnacja: t...

Zobacz ogłoszenie
1
dom wolnostojący, 4 pokoje Białystok Starosielce, ul. Szkolna

720 000

110

4 pok.

Dom, w którym chce się zamieszkać! Przestronny, komfortowy i w świetnej lokalizacji. Zapraszamy do zapoznania się z ofertą wyjątkowego domu jednorodzinnego, który spełni oczekiwania nawet najbardziej wymagających. Przestronny, funkcjonalny - idealny dla rodziny szukającej ciszy i spokoju, ale z łat...

Zobacz ogłoszenie
27
dom wolnostojący, 6 pokoi Białystok Starosielce, ul. Rumuńska

620 000

120

6 pok.

Sprzedam dom z zatwierdzonym projektem budowlanym i zezwoleniem na przebudowę. W 2024 r. wymieniony dach i tarasy. Okna plastik. Dom przygotowany do remontu wg. własnej aranżacji.

Zobacz ogłoszenie
4
dom wolnostojący Białystok Starosielce

650 000

200

Na sprzedaż atrakcyjny dom wolnostojący do remontu. Posiada parter oraz użytkowe poddasze. Do domu doprowadzone media: prąd, woda, gaz, kanalizacja, światłowód. Działka 700 m², oprócz domu na działce jest jeszcze budynek gospodarczy do adaptacji pod swoje wymagania ok. 50 m². Dom znajduje się w ...

Zobacz ogłoszenie
7
bliźniak, 4 pokoje Białystok Dojlidy Górne, ul. Nagietkowa

795 000

140

4 pok.

BLIŹNIAKI NA UL. NAGIETKOWEJ Inwestycja znajduje się na prestiżowym i bezpiecznym osiedlu - Dojlidy Górne - przy prywatnej, ślepej uliczce zakończonej strumykiem, co zapewnia maksimum prywatności. Nieopodal zielone tereny. W okolicy znajdują się: kościół, przystanek autobusowy, przedszkole, szkoła,...

Zobacz ogłoszenie