Mieszkanie do wynajęcia bez pośredników
ul. Bałtycka Koszalin Centrum

Mieszkanie 3-pokojowe Koszalin Centrum, ul. Bałtycka. Zdjęcie 1

Mieszkanie do wynajęcia bez pośredników Koszalin Centrum ul. Bałtycka · 4 piętro

2 900
58 zł/m²
49
3 pok.
Koszalin Centrum, Bałtycka - lokalizacja przybliżona
Bezpośrednio od właściciela

Na wynajem komfortowe, w pełni umeblowane mieszkanie 3-pokojowe, położone bardzo praktycznej lokalizacji przy ul. Bałtyckiej (os. Północ/Lechitów).
Lokal świeżo po remoncie, urządzony w nowoczesnym, spójnym stylu - idealny dla wymagających najemców, którzy cenią jakość, przestrzeń i lokalizację.

LOKALIZACJA - CENTRUM, ALE CISZA I SPOKÓJ
Budynek zlokalizowany w centrum miasta, na uboczu osiedla - doskonała komunikacja bez miejskiego zgiełku.
W zasięgu kilku minut spacerem:
- sklepy, punkty usługowe, szkoła i przedszkole, Urząd Miejski
- przystanki autobusowe,
- tereny zielone.

Dodatkowe atuty:
- Galeria Emka,
- Wydział Humanistyczny Politechnika Koszalińska.

BUDYNEK I POŁOŻENIE
- 4. piętro w zadbanym budynku wielorodzinnym
- mieszkanie jasne, ciepłe i bardzo ciche
- spektakularna PANORAMA KOSZALINA - widok bez zabudowy przed oknami.
- Wykończone pod klucz.

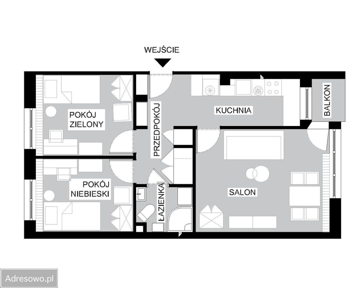
UKŁAD I WYPOSAŻENIE
Funkcjonalny, rozkładowy układ - wszystkie pomieszczenia niezależne
3 ustawne, umeblowane pokoje:
- 2 pokoje jednoosobowe z tapczanem szerokośc 1,0m
- w salonie wygodna kanapa z funkcją spania

Oddzielna, widna kuchnia, w pełni wyposażona:
- lodówka z zamrażarką
- piekarnik elektryczny
- płyta indukcyjna
- zmywarka
- filtr wody pitnej
- kompletne wyposażenie kuchenne, talerze, kubki, garnki itd...

Łazienka z kabiną prysznicową, WC i pralką
Przestronny przedpokój z dużą szafą wnękową (odkurzacz, żelazko, deska do prasowania)
Balkon

MEDIA I KOMFORT
- światłowód + sieć WLAN w każdym pokoju, Smart TV w każdym pokoju
- ogrzewanie i ciepła woda z sieci miejskiej
- mieszkanie gotowe do zamieszkania bez żadnych dodatkowych nakładów

KOSZTY
Czynsz administracyjny: ok. 700 zł, w tym:
- centralne ogrzewanie*
- zimna i ciepła woda *
- eksploatacja
- fundusz remontowy
- konserwacja instalacji
- odpady komunalne*

* zależy od ilości osób i zużycia
Dodatkowo:
- energia elektryczna - wg zużycia
- Internet światłowodowy - 70 zł

WARUNKI NAJMU
- najem okazjonalny
- minimum 12 miesięcy
- kaucja zwrotna: 5 000 zł

Wprowadzasz się i mieszkasz, bez nakładów. Mieszkanie przygotowane z myślą o długoterminowym, spokojnym najmie. Szukamy odpowiedzialnych najemców, którzy cenią komfort, ciszę i wysoki standard.


  • Do wynajęcia mieszkanie 3-pokojowe o powierzchni 49,79 m² balkon, osobna kuchnia
  • 4 piętro w 4-piętrowym bloku  
  • Dostępne do wynajęcia od zaraz
  • Koszalin, Centrum ul. Bałtycka
  • Mieszkanie w stanie do zamieszkania okna plastikowe
  • Opłaty 700 zł/miesiąc
  • Money Wallet 1 Streamline Icon: https://streamlinehq.com
    Kaucja 5000 zł
  • Wyposażenie pralka, lodówka, piekarnik, zmywarka
  • Oferta bezpośrednio od właściciela dodana ponad miesiąc temu

Podobne mieszkania na wynajem

8
Mieszkanie 2-pokojowe Koszalin Centrum

2 600

40

2 pok.

Oferuję do wynajęcia 2-pokojowe mieszkanie o powierzchni 40 m². Mieszkanie znajduje się na 9. piętrze bloku z windą. Jest umeblowane i gotowe do zamieszkania. Możesz mieć zwierzęta. Lokalizacja jest bardzo atrakcyjna. W pobliżu znajdziesz sklepy, kawiarnie i restauracje. W okolicy są również parki ...

Zobacz ogłoszenie
7
Mieszkanie 2-pokojowe Koszalin Centrum, ul. Rzemieślnicza

2 000

35

2 pok.

Przytulne 2-pokojowe mieszkanie w centrum Koszalina – gotowe do zamieszkania Na wynajem oferuję funkcjonalne i w pełni wyposażone mieszkanie o powierzchni 35 m², położone w świetnej lokalizacji – w centrum Koszalina, przy ul. Rzemieślniczej. Mieszkanie zostało urządzone z myślą o wygodzie i codzie...

Zobacz ogłoszenie
10
Mieszkanie 2-pokojowe Koszalin Wilkowo, ul. Generała Józefa Hallera

2 750

37

2 pok.

Oferuję do wynajmu bardzo nowoczesne, jasne, mieszkanie 2 pokojowe na czwartym piętrze nowo powstałego Apartamentowca z windą. Całą aranżację wnętrza cechuje wysoka jakość wykończenia. Mieszkanie składa się z salonu z aneksem kuchennym, sypialni i łazienki, posiada również przestronny duży balkon po...

Zobacz ogłoszenie
7
Mieszkanie 2-pokojowe Koszalin Centrum, ul. marsz. Józefa Piłsudskiego

1 750

40

2 pok.

Dzień dobry. Do wynajęcia komfortowe mieszkanie w Koszalinie (okolice ul. Piłsudskiego). Lokal położony na pierwszym piętrze budynku czterokondygnacyjnego, składający się z dwóch pokoi wraz z aneksem kuchennym, łazienki z WC oraz korytarza (40 m2). Mieszkanie po kapitalnym remoncie, nowe instalac...

Zobacz ogłoszenie
8
Mieszkanie 2-pokojowe Koszalin, ul. Generała Józefa Hallera

2 650

33

2 pok.

Oferuję do wynajmu bardzo ładne, jasne, mieszkanie 2 pokojowe na drugim piętrze w Apartamentowcu Panorama z windą. Mieszkanie składa się z salonu z aneksem kuchennym, sypialni i łazienki, posiada również balkon po zachodniej stronie. Jest w pełni umeblowane. Bardzo dobra lokalizacja przy ulicy Halle...

Zobacz ogłoszenie
8
Mieszkanie 2-pokojowe Koszalin Centrum

2 200

49

2 pok.

Mieszkanie w stylowej kamienicy w centrum miasta. Udogodnienia: - winda, - ogrzewana klatka schodowa, - TV kablowa, - loggia, - drzwi antywłamaniowe, - ogrzewanie miejskie. W bezpośrednim sąsiedztwie budynku znajdują się: - centrum handlowe, - restauracje, - kawiarnie, - banki, - kręgielnia, - dwo...

Zobacz ogłoszenie