Mieszkanie do wynajęcia bez pośredników
ul. Mieszka I Kobyłka

Mieszkanie 3-pokojowe Kobyłka, ul. Mieszka I. Zdjęcie 1

Mieszkanie do wynajęcia bez pośredników Kobyłka ul. Mieszka I · 1 piętro

4 500
63 zł/m²
72
3 pok.
Kobyłka, Mieszka I - lokalizacja przybliżona
Bezpośrednio od właściciela

Wynajmę nowe, nigdy niezamieszkałe mieszkanie o powierzchni 72 m², położone na zamkniętym osiedlu Leśna Polana IV w Kobyłce.
Lokal świeżo wykończony, urządzony w nowoczesnym stylu, gotowy do zamieszkania.

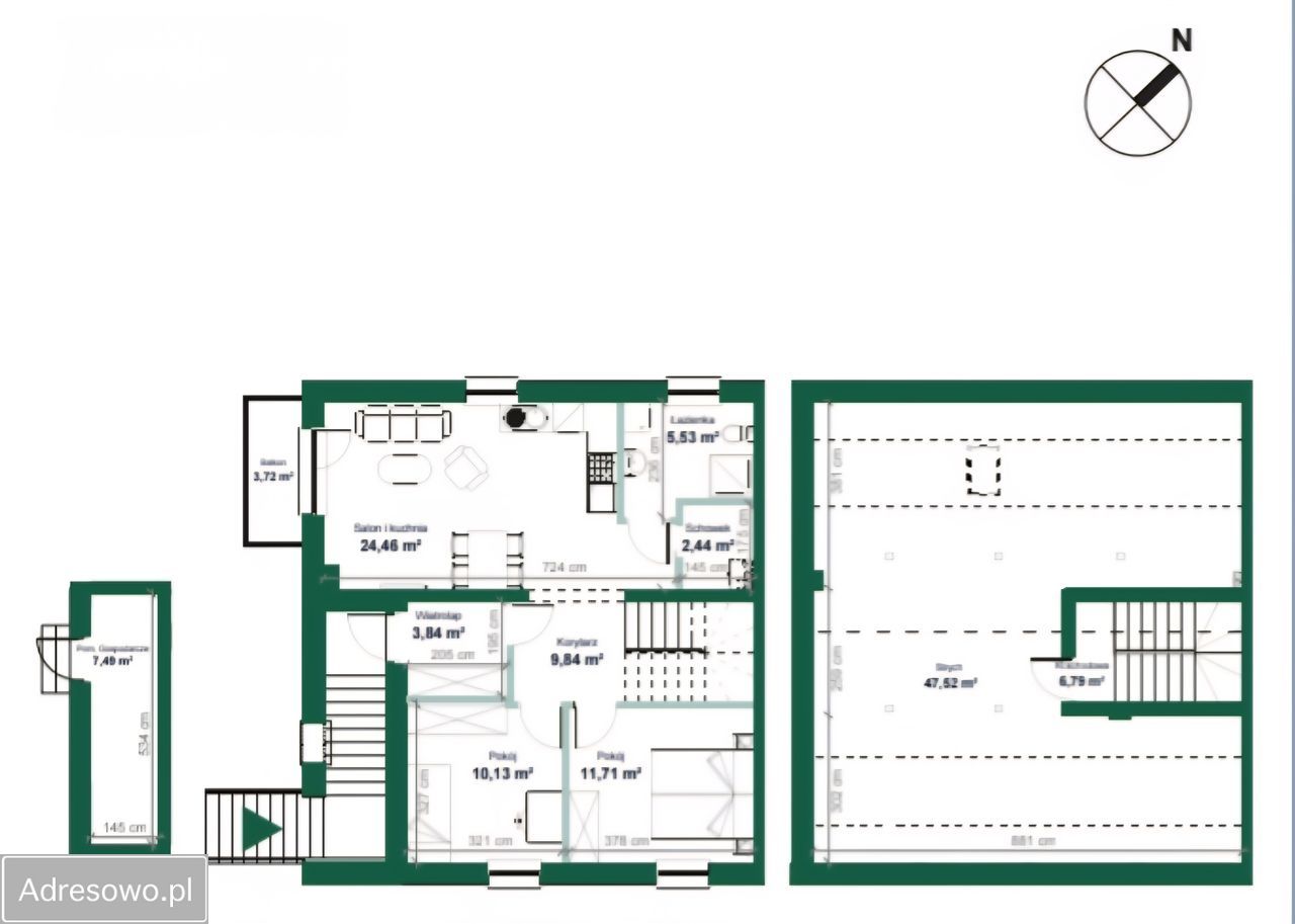
Układ pomieszczeń:
- Salon z aneksem kuchennym - 24,46 m²
- Pokój 1 - 11,72 m²
- Pokój 2 - 10,13 m²
- Łazienka - 5,53 m²
- Schowek - 2,44 m²
- Korytarz - 9,84 m²
- Wiatrołap - 3,84 m²
- Poddasze ocieplone z możliwością adaptacji - 48 m²

Dodatkowe atuty:
- Ogródek - 63 m²
- Balkon - 3,7 m²
- Pomieszczenie gospodarcze - 7,5 m²
- Miejsce postojowe (możliwość wynajęcia drugiego miejsca)

Wyposażenie i standard:
- Klimatyzacja
- Rekuperacja
- Ogrzewanie podłogowe (łazienka, kuchnia, przedpokój)

Sprzęt AGD nowy, na gwarancji:
- Płyta indukcyjna
- Zmywarka
- Piekarnik
- Lodówka z zamrażarką
- Pralka

W salonie: sofa z funkcją spania oraz stół rozkładany.
W pokoju 1: łóżko 160x200, szafa 150.
W pokoju 2: szafa 90, duże biurko z możliwością regulacji wysokości.
W wiatrołapie: szafa 120, wieszak, szafka na buty.

Lokalizacja:
Osiedle zamknięte, spokojne i kameralne.
W pobliżu: sklep spożywczy, przedszkole, lok. usługowe, przystanek autobusowy; Stacja PKP - 2,3 km; Szybki dojazd do trasy S8 - ok. 5 minut.

Koszty:
- Czynsz najmu: 4 500 zł / miesiąc
- Kaucja: 5 000 zł
- Media: woda, prąd, gaz - według zużycia
- Wywóz śmieci: 39,50 zł / osoba

Dostępność:
Lokal dostępny od lutego.
Obecnie trwają prace wykończeniowe, jednak istnieje możliwość obejrzenia mieszkania.
Najem bezpośredni - bez prowizji!

  • Do wynajęcia dwupoziomowe mieszkanie 3-pokojowe o powierzchni 72 m² balkon, garaż/miejsce parkingowe, ogródek, aneks kuchenny
  • 1 piętro w 2-piętrowym domu wielorodzinnym  
  • Dostępne do wynajęcia od zaraz
  • Kobyłka ul. Mieszka I
  • Mieszkanie w stanie do zamieszkania  
  • Money Wallet 1 Streamline Icon: https://streamlinehq.com
    Kaucja 5000 zł
  • Wyposażenie klimatyzacja, pralka, lodówka, piekarnik, zmywarka
  • Oferta bezpośrednio od właściciela dodana ponad miesiąc temu

Podobne mieszkania na wynajem

8
Mieszkanie 3-pokojowe Wołomin

4 000

55

3 pok.

Do wynajęcia (długoterminowo) wykończone mieszkanie dla wymagających, trzypokojowe z aneksem kuchennym i dużym balkonem, umeblowane w sposób przemyślany i praktyczny. Powierzchnia całkowita 55 m2 plus balkon 10 m2. W pełni wyposażone w sprzęt AGD (lodówka wolnostojąca, zmywarka, piekarnik, mikrofaló...

Zobacz ogłoszenie
7
Mieszkanie 3-pokojowe Radzymin, ul. Juliusza Słowackiego

3 500

56

3 pok.

Do wynajęcia 3-pokojowe mieszkanie o powierzchni 56 m2. Lokalizacja: Radzymin, ul. Słowackiego 2 (przy stadionie Mazur). Mieszkanie znajduje się na 2. piętrze w 4-piętrowym bloku z windą. Składa się z: - salonu z aneksem kuchennym, - sypialni z podwójnym łóżkiem, - sypialni z kanapą lub łóżkiem d...

Zobacz ogłoszenie
8
Mieszkanie 4-pokojowe Kobyłka, ul. ks. Józefa Poniatowskiego

3 800

80

4 pok.

Dwupoziomowe mieszkanie 4-pokojowe z balkonem - Kobyłka, ul. Poniatowskiego - 10 min do PKP. Do wynajęcia przestronne, 2-poziomowe mieszkanie idealne dla rodziny, położone w spokojnej części Kobyłki, z bardzo dobrym dojazdem do Warszawy. Opis mieszkania: - 4 duże, ustawne pokoje - 2 łazienki - Mie...

Zobacz ogłoszenie
20
Mieszkanie 5-pokojowe Marki, ul. Wołyńska

3 500

84

5 pok.

Oferta najmu Marki, ul. Wołyńska 2 m 2. Mieszkanie znajduje się na nowo wybudowanym osiedlu na granicy Warszawa/Marki przy centrum handlowym Decathlon 500m, McDonald 400m, M1 Marki 200m. Mieszkanie 5-pokojowe, 84 m2, na I i II piętrze, plus ogródek ok. 200 m2, miejsce postojowe na terenie zamkniętym...

Zobacz ogłoszenie
8
Mieszkanie 3-pokojowe Marki, ul. Papieża Jana Pawła II

3 500

68

3 pok.

WYNAJMĘ 3 pokojowe mieszkanie Marki ul. Papieża Jana Pawła II 3, -------------------- Układ mieszkania: - 2 pokoje - salon z aneksem kuchennym - łazienka - hol - miejsce parkingowe zewnętrzne tuż przy wejściu do budynku Mieszkanie na poddaszu (II piętro) -------------------- Podmiejski komfort i sz...

Zobacz ogłoszenie
8
Mieszkanie 3-pokojowe Kobyłka, ul. ks. Augustyna Kordeckiego

3 850

90

3 pok.

Wynajmę piętro domu w Kobyłce, ulica Kordeckiego. 90m2. Wiatrołap, przedpokój, 2 zamykane pokoje, kuchnia, otwarty salon, łazienka, toaleta, balkon, taras 30m2. Częściowo umeblowane, możliwość dodania więcej mebli przez właściciela. Działka i mieszkanie pod opieką ochrony. Wszystkie media: prąd,...

Zobacz ogłoszenie