Mieszkanie do wynajęcia bez pośredników
ul. Akacjowa 55N Kiełczów

Mieszkanie 3-pokojowe Kiełczów, ul. Akacjowa. Zdjęcie 1

Mieszkanie do wynajęcia bez pośredników Kiełczów ul. Akacjowa 55N · 1 piętro

3 300
41 zł/m²
80
3 pok.
Kiełczów, Akacjowa 55N - lokalizacja dokładna
Bezpośrednio od właściciela

Do wynajęcia nowoczesne, w pełni wyposażone mieszkanie o powierzchni 80 m², zlokalizowane w domu w zabudowie szeregowej w miejscowości Kiełczów ul Akacjowa 55n.. To idealna propozycja dla osób szukających spokoju, komfortu.

We speak English.

Najważniejsze atuty nieruchomości:
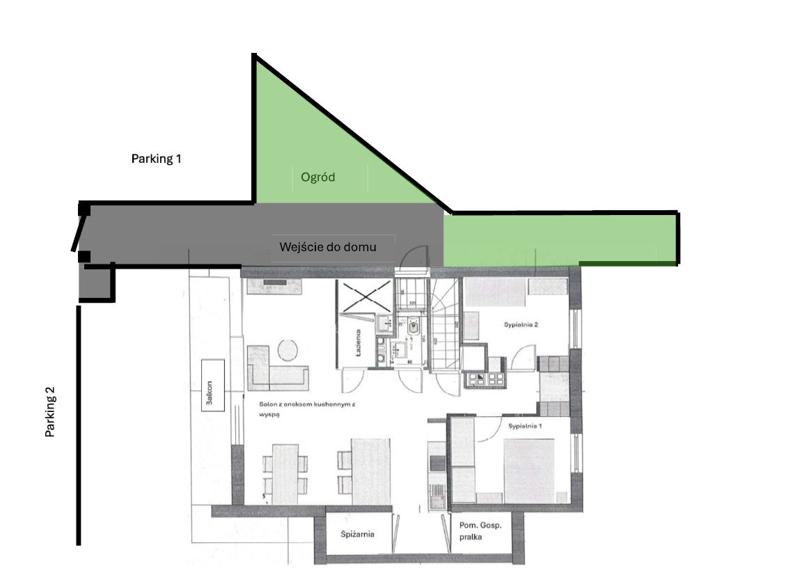
• Prywatny ogród: ok. 100 m²
• Dwa miejsca postojowe przy posesji: przypisane bezpośrednio do posesji (w cenie).
• Brak czynszu administracyjnego: koszty realnego zużycie mediów ( gaz, energia , woda, wywóz nieczystości)
• Kompletne wyposażenie: mieszkanie gotowe do wprowadzenia


Układ pomieszczeń (piętro z balkonem):
Mieszkanie jest jasne i funkcjonalnie zaprojektowane:
• Przestronny salon z aneksem kuchennym ok 45 m2 ,
• Dwa niezależne, pokoje.
• Łazienka z oknem oraz oddzielna toaleta.
• Praktyczne pomieszczenie gospodarcze.
• przestronny balkon. ok. 7 mb
- w oknach zamontowano rolety, zapewniające prywatność i komfort termiczny.

Standard i wyposażenie:
Mieszkanie jest w pełni umeblowane i wyposażone w sprzęt AGD wysokiej klasy: pralka, zmywarka, płyta grzewcza, piekarnik, okap.

Lokalizacja i okolica:
Mieszkanie znajduje się na pierwszym piętrze na cichym osiedlu domów jednorodzinnych z pełną infrastrukturą drogową.
• Zakupy: W pobliżu sklepy Biedronka, Stokrotka, Rossmann.
• Komunikacja: Przystanek autobusowy w zasięgu ręki oraz szybki wyjazd na Wschodnią Obwodnicę.

Warunki najmu:
• Dostępność: od 01 marca 2026 r.
• Preferencje: Osoby niepalące, bez zwierząt.
• Cena najmu: 3300 zł / miesiąc.
• Opłaty dodatkowe: media według zużycia (gaz – piec dwufunkcyjny, prąd, woda, wywóz nieczystości) przy dwóch osobach koszty około 700-800 zl. M-c

• Kaucja: 4800 zł.

  • Do wynajęcia mieszkanie 3-pokojowe o powierzchni 80 m² balkon, ogródek, aneks kuchenny
  • 1 piętro w 1-piętrowym domu wielorodzinnym bez windy
  • Dostępne do wynajęcia od zaraz
  • Kiełczów ul. Akacjowa
  • Money Wallet 1 Streamline Icon: https://streamlinehq.com
    Kaucja 4800 zł
  • Umeblowanie w pełni
  • Wyposażenie kuchenka, lodówka, piekarnik, pralka, zmywarka
  • Oferta bezpośrednio od właściciela dodana ponad miesiąc temu i zaktualizowana ponad tydzień temu

Podobne mieszkania na wynajem

42
Mieszkanie 3-pokojowe Bielany Wrocławskie, ul. Ogrodowa

3 000

57

3 pok.

I. OPCJA WYNAJEM Mieszkaj SIELSKO (tu słońce cały dzień, zieleń , ogród, rajskie jabłuszka, cisza, z dala od zgiełku, świeże powietrze , spokój, relaks, z bezpiecznym schronieniem na wypadek….) a czuj się MIEJSKO (obok handel, usługi, szkoła, komunikacja ) bez wydawania 700 tys PLN(zakup) ...

Zobacz ogłoszenie
8
Mieszkanie 2-pokojowe Kiełczów, ul. Akacjowa

2 600

61

2 pok.

Wynajmę mieszkanie dwupokojowe o pow. 61m2. Mieszkanie dostępne od 1 marca. Idealne dla pary lub rodziny 3 osobowej. Koszt najmu - 2600 zł plus opłaty za media. Zainteresowanych zapraszam do kontaktu.

Zobacz ogłoszenie
8
Mieszkanie 4-pokojowe Czernica, ul. Wojska Polskiego

3 500

70

4 pok.

Wynajmę mieszkanie na nowym osiedlu. Mieszkanie 70 m2 położone na 2 piętrze + winda. 3 sypialnie + salon z aneksem kuchennym + balkon. Całe mieszkanie klimatyzowane, umeblowane. W każdej sypialni łóżko a w salonie narożnik funkcją spania. W pobliżu: stacja PKP (szybki dojazd Wrocław Główny 25min.), ...

Zobacz ogłoszenie
11
Mieszkanie 3-pokojowe Kamieniec Wrocławski, ul. Działkowa

3 000

70

3 pok.

Mieszkanie wolne od zaraz! Duży ogród! Gorąco polecam mieszkanie trzy pokojowe położone w Kamieńcu Wrocławskim przy ul. Działkowej. Mieszkanie składa się z: - salonu z aneksem kuchennym, - sypialni, - pokoju, - łazienki  - przedpokoju, - ogrodu. W kuchni meble w zabudowie wraz ze sprzęt...

Zobacz ogłoszenie
15
Mieszkanie 3-pokojowe Dobrzykowice, ul. Brylantowa

3 300

70

3 pok.

WYSOKI STANDARD! DUŻY OGRÓD OKOŁO 70 MKW WOLNE OD ZARAZ! Gorąco polecam mieszkanie trzy pokojowe położone w Dobrzykowicach przy ul. Brylantowej. Mieszkanie składa się z: - dwóch sypialni, - łazienki, - przedpokoju, - salonu z aneksem kuchennym, - ogrodu. Do mieszkania przynależy komór...

Zobacz ogłoszenie
8
Mieszkanie 4-pokojowe Kąty Wrocławskie

3 000

75

4 pok.

Ogłoszenie wynajmu mieszkania - Kąty Wrocławskie. Lokalizacja: Kąty Wrocławskie. Typ nieruchomości: mieszkanie 4-pokojowe. Poziom: parter. Dodatkowo: piwnica. Najem dla rodzin lub firm. Opis mieszkania: Do wynajęcia przestronne, 4-pokojowe mieszkanie położone na parterze w spokojnej i dobrze skomu...

Zobacz ogłoszenie