Mieszkanie na sprzedaż bez pośredników
ul. Mielecka Sosnowiec Zagórze

NOWA OFERTA
Mieszkanie 3-pokojowe Sosnowiec Zagórze, ul. Mielecka. Zdjęcie 1

Mieszkanie na sprzedaż bez pośredników Sosnowiec Zagórze ul. Mielecka · 4 piętro

399 999
6 667 zł/m²
60
3 pok.
Sosnowiec Zagórze, Mielecka - lokalizacja przybliżona
Bezpośrednio od właściciela

Jeśli nie potrzebujesz pośrednika, zaoszczędzisz około 12 000 zł. Potrzebujesz wsparcia? Skorzystaj z pomocy agenta.

Na sprzedaż posiadam 3 pokojowe mieszkanie.


Oferujemy na sprzedaż bez pośredników przestronne i słoneczne mieszkanie zlokalizowane w budynku 4 piętrowym na 4 piętrze, spokojna dzielnica Sosnowca - Zagórze ul. Mielecka, przy ogródkach działkowych. W pobliżu sklepy, szkoła, przedszkole, plac zabaw dla dzieci- widoczny z okna. Idealne dla rodziny, pary lub jako inwestycja.
Ideale miejsce dla osób ceniących ciszę, świeże powietrze i przyrodę.
Mieszkanie dwustronne z pięknym widokiem na góry.
Szczegóły nieruchomości:
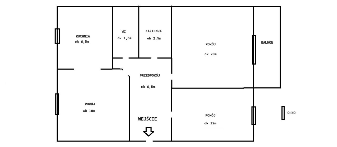
Powierzchnia użytkowa: 59,70 m2
Układ pomieszczeń: 3 pokoje, widna kuchnia, łazienka, WC
Do mieszkania przynależy piwnica o powierzchni ok.5m2, zapewniająca dodatkową przestrzeń do przechowywania.
Stan techniczny: Mieszkanie wymaga odświeżenia, instalacja elektryczna oraz wodno-ściekowa po wymianie, okna plastikowe, domofon.
Funkcjonalny układ pomieszczeń częściowo umeblowany, z potencjałem aranżacyjnym.
Przy bloku przystanek komunikacji miejskiej i tramwajowej.
Lokal stanowi odrębną własność z księgą wieczystą (bez obciążeń)
Klatka schodowa z domofonem.

Telefon kontaktowy: [numer]

  • Na sprzedaż mieszkanie 3-pokojowe o powierzchni 60 m² balkon, piwnica, osobna kuchnia
  • 4 piętro w 4-piętrowym bloku z płyty bez windy, rok budowy 1978
  • Sosnowiec, Zagórze ul. Mielecka
  • Mieszkanie w stanie do odświeżenia okna plastikowe
  • Odrębna własność z księgą wieczystą  
  • Wyposażenie internet, kuchenka, lodówka, piekarnik
  • Cena do negocjacji  
  • Oferta bezpośrednio od właściciela dodana wczoraj
Ta nieruchomość może być Twoja od.. sprawdź
80000 zł (20%) Okres spłaty: 30 lat

Podobne mieszkania na sprzedaż

9
Mieszkanie 3-pokojowe Sosnowiec Zagórze, ul. 11 Listopada

425 000

70

3 pok.

Jako właściciel sprzedam 3-pokojowe mieszkanie przy ul. 11 Listopada w Sosnowcu. Mieszkanie o powierzchni 70,87 m² znajduje się na 4. piętrze w czterokondygnacyjnym bloku mieszkalnym z 1991 roku. Do mieszkania przynależy piwnica o pow. około 3 m², a także przestronny balkon z atrakcyjnym widokiem. ...

Zobacz ogłoszenie
20
Mieszkanie 3-pokojowe Sosnowiec Zagórze, ul. Stefana Kisielewskiego

448 000

57

3 pok.

Mieszkanie w Sosnowcu, dzielnica Zagórze, przy ul. Kisielewskiego 3. STAN PRAWNY * Mieszkanie stanowi własność prywatną. * Mieszkanie posiada księgę wieczystą, brak obciążeń i jednego właściciela. OPIS MIESZKANIA Mieszkanie o powierzchni 57,56 m2 składa się z: - trzech pokoi, - przedpokoju, - oddz...

Zobacz ogłoszenie
6
Mieszkanie 4-pokojowe Sosnowiec Zagórze, ul. Kielecka

458 000

81

4 pok.

Mieszkanie bardzo ładne, w spokojnym miejscu. Bardzo dobra lokalizacja . Tylko dwa mieszkania na piętrze. Miejsce na jedno auto zaraz przy bloku. Więcej zdjęć dla zainteresowanych prześlę mailem.Biurom nieruchomości dziekuje.Zapraszam do kontaktu.503400864

Zobacz ogłoszenie
7
Mieszkanie 3-pokojowe Sosnowiec Zagórze, ul. Bohaterów Monte Cassino

380 000

58

3 pok.

Sprzedam mieszkanie 58 m² na 1. piętrze w 4-piętrowym bloku w Sosnowcu Zagórzu, ul. BMC. Mieszkanie 3-pokojowe z dużym balkonem, osobna toaleta. Do mieszkania przynależy piwnica. Bardzo dobra lokalizacja: - połączenie tramwajowe i autobusowe do centrum i miast sąsiadujących, - blisko szkoła, kości...

Zobacz ogłoszenie
5
Mieszkanie 2-pokojowe Sosnowiec Zagórze

392 000

58

2 pok.

Dzień dobry, Sprzedam mieszkanie na 8. piętrze w 10-piętrowym bloku. Powierzchnia: niecałe 58 m2. Mieszkanie składa się z 2 pokoi. Salon połączony jest z kuchnią, dzięki czemu zyskujemy dużą, otwartą przestrzeń. Drugi pokój jest zagospodarowany na sypialnię. Osobna łazienka z prysznicem typu walk-...

Zobacz ogłoszenie
11
Mieszkanie 3-pokojowe Sosnowiec Zagórze, ul. Teofila Lenartowicza

398 000

68

3 pok.

Mam do sprzedania mieszkanie na Zagorzu do wejscia zrobiona gladz ,piony wymienione instalacje elektryczne mieszkanie zostaje czesciowo umeblowane. mieszkanie ma duzy balkon okolo 7m2, na podlogach kafle lub panele. okna na zachod i polnocny wschod blok w trakcie termomodernizacji . Zapraszam do o...

Zobacz ogłoszenie