Ogłoszenie usunięte

Kościerzyna
ul. Kasztanowa
4-pokojowe mieszkanie na sprzedaż Bez pośrednika

Kościerzyna · 439 000 zł

Ogłoszenie właściciela - bez pośredników

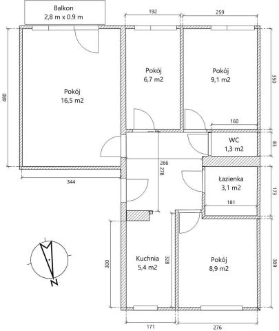
Mieszkanie 4-pokojowe Kościerzyna, ul. Kasztanowa. Zdjęcie 1
Mieszkanie 4-pokojowe Kościerzyna, ul. Kasztanowa. Zdjęcie 1

Bez pośrednika. Oszczędzasz 13 200 zł na prowizji pośrednika!

Sprzedam mieszkanie 4-pokojowe na ul. Kasztanowej w Kościerzynie, w bezpośrednim sąsiedztwie parku.

Mieszkanie oddalone jest od miejskiego hałasu i ruchliwych ulic. Jednocześnie lokalizacja jest bardzo dogodna, blisko centrum miasta, co zapewnia łatwy dostęp do miejskiej infrastruktury: sklepów, punktów usługowych, placówek edukacyjnych, itd.

Mieszkanie jest jasne i przestronne. Składa się z czterech pokoi, w tym salonu z balkonem, kuchni, łazienki, osobnego WC i przedpokoju. Całkowita powierzchnia mieszkania to 59,6 m2. Układ mieszkania pokazany jest na załączonym zdjęciu. Do mieszkania przynależy piwnica o powierzchni 3,7 m2.

Mieszkanie jest w stanie, który zasadniczo pozwala w nim zamieszkać bez dużych inwestycji. Wymagałoby ono wówczas jedynie gruntownego odświeżenia i doposażenia, w zależności od potrzeb. Z drugiej strony, dla kupującego, który myśli o inwestycji w celu pełnego dostosowania układu mieszkania do własnych potrzeb, mieszkanie oferuje szerokie możliwości adaptacyjne. Można przykładowo połączyć kuchnię z sąsiednim pokojem lub też połączyć przeciwległe dwa mniejsze pokoje w jedną dużą sypialnię.

Osoby zainteresowane zapraszam do kontaktu.

Przedstawiona powyżej propozycja nie stanowi oferty handlowej w rozumieniu przepisów prawa, lecz ma charakter informacyjny.

  • Na sprzedaż mieszkanie 4-pokojowe o powierzchni 59,60 m²
  • 3 piętro w bloku
  • Kościerzyna, ul. Kasztanowa
  • Balkon, piwnica
  • Mieszkanie w stanie do odświeżenia
ponad miesiąc temu
8
Mieszkanie 2-pokojowe Kościerzyna, ul. Kasztanowa

Kościerzyna ul. Kasztanowa Mieszkanie na sprzedaż

2 pokoje 39 1 piętro Bez pośrednika
355 000
9 103 zł / m²
ponad tydzień temu
7
Mieszkanie 3-pokojowe Kościerzyna, ul. Staszica

Kościerzyna ul. Staszica Mieszkanie na sprzedaż

3 pokoje 49 1 piętro Bez pośrednika
409 000
8 347 zł / m²
ponad miesiąc temu
1
Mieszkanie 3-pokojowe Kościerzyna, os. 1000-lecia

Kościerzyna os. 1000-lecia Mieszkanie na sprzedaż

3 pokoje 51 3 piętro Bez pośrednika
359 000
7 039 zł / m²
ponad miesiąc temu
8
Mieszkanie 3-pokojowe Kościerzyna Centrum, ul. Świętojańska

Kościerzyna Centrum ul. Świętojańska Mieszkanie na sprzedaż

3 pokoje 65 3 piętro Bez pośrednika
450 000
6 923 zł / m²
3 dni temu
7
Mieszkanie 2-pokojowe Kościerzyna, ul. Staszica

Kościerzyna ul. Staszica Mieszkanie na sprzedaż

2 pokoje 49 4 piętro Bez pośrednika
395 000
8 061 zł / m²
ponad miesiąc temu
6
Mieszkanie 2-pokojowe Kościerzyna

Kościerzyna Mieszkanie na sprzedaż

2 pokoje 45 3 piętro Bez pośrednika
310 000
6 889 zł / m²