Mieszkanie na sprzedaż bez pośredników
Cieszyn  

NOWA OFERTA
Mieszkanie 2-pokojowe Cieszyn. Zdjęcie 1

Mieszkanie na sprzedaż bez pośredników Cieszyn brak adresu · 3 piętro

250 000
7 353 zł/m²
34
2 pok.
Cieszyn - lokalizacja przybliżona
Bezpośrednio od właściciela

Jeśli nie potrzebujesz pośrednika, zaoszczędzisz około 7 500 zł. Potrzebujesz wsparcia? Skorzystaj z pomocy agenta.

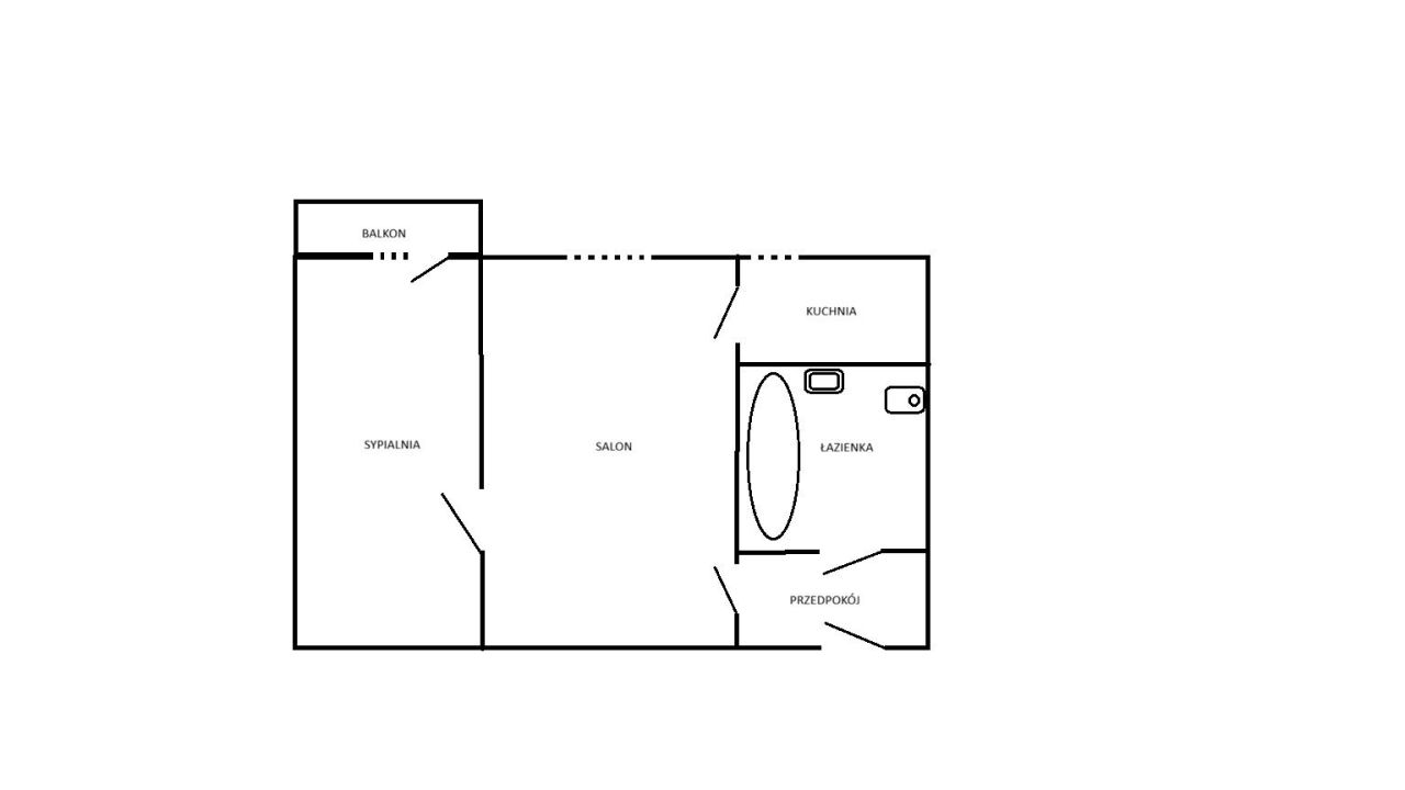
Oferuję do sprzedaży jasne i ustawne mieszkanie o powierzchni 34,20 m², położone w atrakcyjnej lokalizacji blisko centrum Cieszyna. Lokal świetnie sprawdzi się jako pierwsze mieszkanie lub inwestycja pod wynajem.

Układ pomieszczeń:
• salon / pokój dzienny
• osobna sypialnia
• kuchnia
• łazienka
• przedpokój

Dzięki dwóm niezależnym pokojom mieszkanie daje wygodę zarówno dla singla, pary, jak i pod wynajem.

Lokal znajduje się na 3. piętrze w budynku bez windy i oferuje ładny widok na miasto, co zapewnia dużo światła dziennego i poczucie przestrzeni, bez oglądania okien sąsiadów.

Stan mieszkania: do odświeżenia — idealna okazja, by urządzić je według własnego gustu.

Mieszkanie jest bez lokatorów i dostępne od zaraz.

Do lokalu przynależy piwnica o powierzchni 4,9 m².

Lokalizacja: w pobliżu parking, sklepy, przystanki komunikacji miejskiej, szkoła, przedszkole, żłobek, plac zabaw oraz tereny spacerowe — wszystko w zasięgu kilku minut.

Cena: do niewielkiej negocjacji.

Zapraszam do kontaktu — chętnie udzielę dodatkowych informacji i umówię prezentację mieszkania.

  • Na sprzedaż mieszkanie 2-pokojowe o powierzchni 34 m² piwnica
  • 3 piętro w bloku bez windy
  • Cieszyn  
  • Mieszkanie w stanie do odświeżenia  
  • Oferta bezpośrednio od właściciela dodana dodana dzisiaj
Ta nieruchomość może być Twoja od.. sprawdź
50000 zł (20%) Okres spłaty: 30 lat

Podobne mieszkania na sprzedaż

16
Mieszkanie 1-pokojowe Cieszyn Bobrek, ul. Alojzego Milaty

296 000

31

1 pok.

Mieszkani poremoncie,umeblowane w bloku na drugiej kondygnacji 1 piętro, Cieszyn ul Milaty Lokal w dobrym standardzie,duży pokój,łazienka z toaleta , kuchnia, przedpokój, lokal posiada duży balkon i przynależna piwnice Lokal w spokojnej dzielnicy Cieszyna. Lokal posiada certyfikat energetyczny. Z...

Zobacz ogłoszenie
8
Mieszkanie 1-pokojowe Istebna Kubalonka

189 000

25

1 pok.

Witam, mam do zaoferowania na sprzedaż przytulne mieszkanie w miejscowości Istebna - Kubalonka (obok słynnego sanatorium). Genialna lokalizacja sprawia, że może być ono dedykowane do celów inwestycyjno-turystycznych (ok. 10 min do Wisły, 20 min do Ustronia) ze względu na bliskość wyciągów narciars...

Zobacz ogłoszenie
5
Mieszkanie 2-pokojowe Skoczów, ul. Targowa

340 000

34

2 pok.

Dzień dobry. Na sprzedaż mieszkanie o pow. 34m2. Składa się z 2 pokoi, kuchni, łazienki. Lokal jest położony w Skoczowie przy ul. Targowej. Doskonała lokalizacja. Sklep na wyciągnięcie ręki. Przystanek, siłownia oraz kolejne sklepy o rzut beretem. W pobliżu dwie szkoły podstawowe, do centrum 5min p...

Zobacz ogłoszenie
2
Mieszkanie 1-pokojowe Skoczów, ul. Osiedlowa

220 000

28

1 pok.

Sprzedam kawalerkę w Skoczowie, ul. Osiedlowa. Mieszkanie jest w stanie do remontu albo do odświeżenia. Znajduje się na 3. piętrze. Czynsz wynosi około 500 zł. Zapraszam do kontaktu.

Zobacz ogłoszenie
19
Mieszkanie 2-pokojowe Skoczów

329 900

23

2 pok.

Zajmujemy się projektowaniem i remontami mieszkań pod klucz. Szukamy mieszkań w wyjątkowych lokalizacjach a następnie przeprowadzamy gruntowny remont i najlepszą możliwą aranżacje. Oferujemy na sprzedaż wyjątkowe, przytulne mieszkanie w którym starannie zaprojektowaliśmy każdy cm powierzchni. Mie...

Zobacz ogłoszenie