Nieruchomość komercyjna do wynajęcia bez pośredników
ul. Jana Gierałtowskiego Ruda Śląska

Lokal Ruda Śląska, ul. Jana Gierałtowskiego. Zdjęcie 1

Nieruchomość komercyjna do wynajęcia bez pośredników Ruda Śląska ul. Jana Gierałtowskiego

2 500
60 zł/m²
42
Ruda Śląska, Jana Gierałtowskiego - lokalizacja przybliżona
Bezpośrednio od właściciela

Jeśli nie potrzebujesz pośrednika, zaoszczędzisz prowizję. Potrzebujesz wsparcia? Skorzystaj z pomocy agenta.

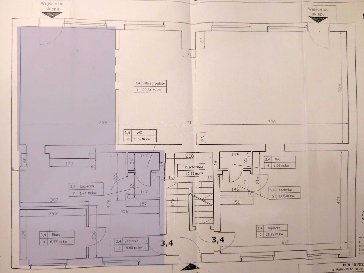
Obiekt składa się z sali sprzedaży o powierzchni ok. 24 m2 oraz z zaplecza o powierzchni 18,68 m2, składającego się z:
- magazynu,
- pomieszczenia biurowego,
- toalety,
- pomieszczenia socjalnego.

Cały obiekt składa się z dwóch połączonych ze sobą lokali, jednak jego część o powierzchni ok. 55 m2 jest obecnie wynajęta. Między nią a stoiskiem mięsnym, będącym przedmiotem ogłoszenia, znajduje się roleta antywłamaniowa, zaciągana po godzinach pracy stoiska.

Stoisko mięsne wraz z udostępnionym najemcy zapleczem zostało na schemacie oznaczone kolorem fioletowym.

Lokal znajduje się przy ulicy Gierałtowskiego w Rudzie Śląskiej. Od strony zaplecza znajduje się parking z miejscem na dostawy, oznaczonym kopertą.

Kaucja: jednomiesięczny czynsz.
Dostępność: 13.10.2025.

  • ul. Jana Gierałtowskiego, Ruda Śląska  
  • Do wynajęcia lokal o powierzchni 42 m²  
  • Dostępne do wynajęcia od zaraz
  • Money Wallet 1 Streamline Icon: https://streamlinehq.com
    Kaucja 2500 zł
  • Oferta bezpośrednio od właściciela dodana ponad miesiąc temu

Podobne nieruchomości komercyjne na wynajem

8
Lokal Ruda Śląska, ul. Kardynała Augusta Hlonda

2 000

84

====================================================== SPRZEDAŻ LUB WYNAJEM - LOKAL UŻYTKOWY 84 m², PARTER Ruda Śląska - ul. Hlonda 20 ====================================================== Doskonała lokalizacja przy Burloch Arena, w miejscu o intensywnym ruchu pieszym i samochodowym. Lokal składa ...

Zobacz ogłoszenie
8
Lokal Ruda Śląska

2 200

55

Witam, Do wynajęcia lokal użytkowy o wszechstronnym zastosowaniu, ok. 50m2. Lokalizacja: Ruda Śląska, blisko DTŚ, w okolicy firmy i zakłady produkcyjne. Wynajmowana nieruchomość sąsiaduje z jednym z zakładów. Bardzo dobry dojazd do Gliwic i Katowic. Lokal składa się z: - pełni wyposażonej kuchni,...

Zobacz ogłoszenie
9
Lokal Ruda Śląska Nowy Bytom, ul. Piotra Niedurnego

1 800

37

Oferuję lokal użytkowy do wynajęcia w Rudzie Śląskiej przy ulicy Niedurnego 33 o powierzchni 37m kw. Lokal składa się z dwóch pomieszczeń oraz sanitariatu, wyposażony jest w ogrzewanie elektryczne. Jest to centrum Nowego Bytomia przy głównej ulicy w zasięgu przystanku autobusowego. Posiada również i...

Zobacz ogłoszenie
11
Lokal Ruda Śląska Bielszowice, ul. Edmunda Kokota

2 000

113

Szukałeś dużego lokalu do wynajęcia? Nieruchomość ma 113,48 m² i jest dostępna od ZARAZ. - Lokal na parterze posiada jasne wnętrza z dużymi oknami. - Idealny na usługi, biuro, gastronomię lub handel. - Znajduje się w budynku z 1900 roku w urbanistycznej okolicy, naprzeciw Kopalni Bielszowice. - Lo...

Zobacz ogłoszenie
2
Lokal Ruda Śląska Halemba, ul. Ludwika Zamenhofa

1 800

35

Do wynajęcia: kiosk / sklep 35m². Halemba, międzyblokowa, Zamenhofa, targ koło 27. szkoły. Wymagana 3-miesięczna kaucja netto. Cena brutto, faktura VAT 23%. Więcej info pod tel.

Zobacz ogłoszenie