Nieruchomość komercyjna do wynajęcia bez pośredników
ul. Rynek 12 Piwniczna-Zdrój

Lokal Piwniczna-Zdrój, ul. Rynek. Zdjęcie 1

Nieruchomość komercyjna do wynajęcia bez pośredników Piwniczna-Zdrój ul. Rynek 12

4 000
37 zł/m²
108
Piwniczna-Zdrój, Rynek 12 - lokalizacja dokładna
Bezpośrednio od właściciela

Piwniczna - Zdrój, ul. Rynek 12
Poczta Polska S.A. Region Infrastruktury Południe II oferuje do wynajęcia lokale użytkowe (o wcześniejszej funkcji pokoi gościnnych) usytuowane na 1 piętrze budynku w Piwnicznej - Zdrój, przy ul. Rynek 12.
Nieruchomość znajduje się w ścisłym centrum miasta. Wejście i dojazd do budynku dla oferowanej jego części dostępne są od strony zaplecza nieruchomości poprzez ul. Rzeszutka.

W bezpośrednim sąsiedztwie znajdują się zabudowa usługowo-handlowa w tym urzędy, placówki zdrowia, Bank oraz lokale usługowe handlowo – gastronomiczne.

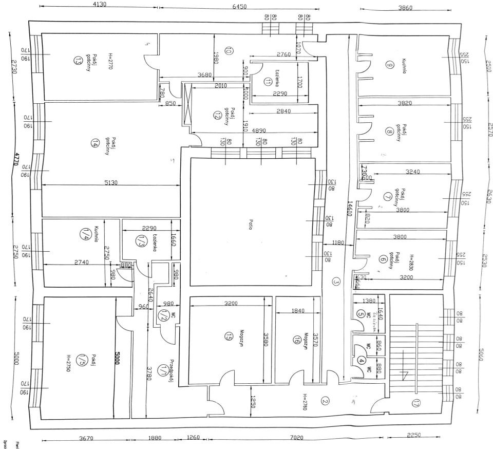
Proponowane do wynajmu lokale użytkowe o łącznej powierzchni 108,78 m2 znajdują się na 1 piętrze nieruchomości i składają się z następujących pomieszczeń:

1 piętro:
• Pokój nr „6” o pow. 9,61 m²
• Pokój nr „7” o pow. 9,99 m²
• Pokój nr „8” o pow. 9,82 m²
• Łazienka o pow. 2,26 m2
• WC o pow. 2,40 m2
• Aneks Kuchenny o pow. 9,69 m2
• Korytarz o pow. 17,24 m2
• Łazienka o pow. 3,89 m2
• Korytarz o pow. 10,29 m2
• Pokój nr „13” o pow. 11,27 m²
• Pokój nr „12” i nr „14” - wspólny moduł o pow. 36,48 m2

Nieruchomość, w której znajdują się w/w pomieszczenia jest budynkiem dwukondygnacyjnym z podpiwniczeniem, wykonanym w technologii tradycyjnej (murowany), w dobrym stanie technicznym, wyposażonym w instalację centralnego ogrzewania (olejowe), elektryczną, wodną
i kanalizacyjną, odgromową, alarmową.
Stan techniczny pomieszczeń przeznaczonych do wynajmu ocenia się jako dobry. Ściany pomalowane (do odświeżenia). Okna plastikowe, podłogi w pomieszczeniach wyłożone parkietem, a w węzłach sanitarnych płytki ceramiczne na podłodze i ścianach.

Cena i warunki najmu, a także konfiguracja powierzchni i jej przeznaczenie oraz użytkowanie części wspólnych pozostają do uzgodnienia / negocjacji.

PP S.A. nie wyklucza przeprowadzenia przetargu na najem pomieszczeń. Nie wyklucza również wynajmu pozostałej części nieruchomości.

Zapraszamy do kontaktu pod nr tel. , kom. lub adres e-mail:

Niniejsze ogłoszenie nie stanowi oferty w rozumieniu art. 66 §1 Kodeksu Cywilnego.

  • ul. Rynek 12, Piwniczna-Zdrój, powiat nowosądecki  
  • Do wynajęcia lokal o powierzchni 108,78 m²  
  • Oferta bezpośrednio od właściciela dodana ponad miesiąc temu

Podobne nieruchomości komercyjne na wynajem

5
Lokal Chełmiec

3 500

95

Do wynajęcia lokal handlowo-usługowy o powierzchni 95m2, znajdujący się na parterze budynku. Lokal jest idealny pod usługi lub biuro. Usytuowany przy drodze głównej, co zapewnia doskonałą widoczność i dostępność. W skład lokalu wchodzi: - Przestronne pomieszczenie usługowe/biurowe - Wydzielone pomi...

Zobacz ogłoszenie
16
Lokal Stary Sącz, os. Słoneczne

2 930

254

Jeśli szukasz dużej powierzchni na swoja wymarzoną działalność w świetnej lokalizacji. Ta oferta jest właśnie dla Ciebie! Na wynajem przestronny lokal usługowo-handlowy położony w piwnicy pawilonu handlowego na największym osiedlu Starego Sącza - Osiedlu Słonecznym. Nieruchomość, znajduje się w wyj...

Zobacz ogłoszenie
1
Lokal Chełmiec

4 500

140

Do wynajęcia atrakcyjny lokal handlowo-usługowy o dużym potencjale, zlokalizowany w dobrze skomunikowanej i uczęszczanej części Chełmca. Lokal idealnie nadaje się pod działalność handlową, usługową, biurową. Lokal posiada przestronną halę sprzedaży/usługową, zaplecze oraz toaletę. Lokal o powierzch...

Zobacz ogłoszenie