Nieruchomość komercyjna do wynajęcia bez pośredników
ul. Tadeusza Gerbera Piaseczno

Lokal Piaseczno, ul. Tadeusza Gerbera. Zdjęcie 1

Nieruchomość komercyjna do wynajęcia bez pośredników Piaseczno ul. Tadeusza Gerbera

45
Piaseczno, Tadeusza Gerbera - lokalizacja przybliżona
Bezpośrednio od właściciela

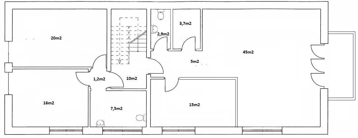
Do wynajęcia lokale usługowe o powierzchniach: 45m2, 20m2 oraz 16m2.

Dwie łazienki.

Pomieszczenia są jasne, widne i przestronne - gotowe do rozpoczęcia działalności od stycznia.

Jeden z lokali wynajmowany przez kosmetyczkę, zatem świetnie sprawdzą się pod usługi kosmetyczne, fryzjerskie, biuro, gabinet lub inne działalności usługowe.

Lokal klimatyzowany. Lokale po lewej z oddzielnym wejściem i własną łazienką 45m2.
Możliwość aranżacji wnętrza według własnych potrzeb.

Meble nie są przedmiotem wynajmu!

LOKALIZACJA
Piaseczno 05-500, ul. Gerbera.

CENA …. brutto + media (do negocjacji).
Możliwość podjęcia wynajmu jednego lokalu.

ZAPRASZAM do kontaktu w celu uzyskania szczegółowych informacji.

  • ul. Tadeusza Gerbera, Piaseczno, powiat piaseczyński  
  • Do wynajęcia lokal o powierzchni 45 m²  
  • Dostępne do wynajęcia od zaraz
  • Oferta bezpośrednio od właściciela dodana ponad miesiąc temu

Podobne nieruchomości komercyjne na wynajem

3
Lokal Piaseczno, ul. Karola Kniaziewicza

1 000

12

Wynajmę przestrzeń beauty w profesjonalnym salonie fryzjersko-kosmetycznym w Piasecznie (blisko Warszawy). Lokal składa się z dwóch częściowo oddzielonych przestrzeni (oddzielone ścianą, częściowo otwarte na siebie), idealnych do usług kosmetycznych. Opis: - Dostęp od poniedziałku do piątku (weeke...

Zobacz ogłoszenie
2
Lokal Piaseczno Centrum

5 200

104

Lokal do wynajęcia - centrum Piaseczna | 104 m² Do wynajęcia atrakcyjny lokal użytkowy o powierzchni 104 m², zlokalizowany w ścisłym centrum Piaseczna - miejsce o bardzo dużym natężeniu ruchu i świetnej dostępności dla klientów. Najważniejsze atuty lokalu: doskonała, prestiżowa lokalizac...

Zobacz ogłoszenie
4
Biuro Piaseczno Zalesie Dolne, al. Brzóz

2 500

30

Piękny, widny i umeblowany pokój 30 m2 oraz pomieszczenie na konferencje lub spotkania biznesowe w dużej reprezentacyjnej willi w Piasecznie-Zalesiu Dolnym, doskonały na bezpieczną siedzibę firmy, nieuciążliwą działalność, biuro, księgowość, pracownię, sklep internetowy, gabinet psychologa lub terap...

Zobacz ogłoszenie
1
Lokal Piaseczno Centrum, ul. Józefa Sierakowskiego

1 800

19

Wynajmę dwa lokale (każdy osobno) w centrum Piaseczna. Ul. Sierakowskiego. Pierwszy lokal: 21 m2 - 1800 zł. Drugi lokal: 19 m2 - 1600 zł.

Zobacz ogłoszenie
8
Lokal Piaseczno Centrum, ul. Puławska

5 400

42

ODSTĄPIĘ DZIAŁAJĄCY SALON BEAUTY YURS ELEGANT W CENTRUM PIASECZNA! ul. Puławska 27 - doskonała, bardzo uczęszczana lokalizacja Na sprzedaż gotowy, w pełni wyposażony biznes (lokal w najmie). Idealna inwestycja dla osób z branży beauty — przejmujesz i zarabiasz od zaraz! ───────────────────────────...

Zobacz ogłoszenie
2
Lokal Piaseczno Centrum, ul. Józefa Sierakowskiego

4 100

81

Oferuję do wynajęcia przestronny lokal usługowy o powierzchni 81,91 m². Lokal znajduje się w dogodnej lokalizacji, idealny pod działalność biurową, handlową lub usługową. Jasne pomieszczenia, dobry układ, możliwość aranżacji według potrzeb najemcy. Zainteresowanych proszę o kontakt telefoniczny:...

Zobacz ogłoszenie