Niepołomice
ul. Władysława Wimmera 12
lokal do wynajęcia Bez pośrednika

Lokal Niepołomice, ul. Władysława Wimmera
Cena (miesiąc)
39 000
Powierzchnia
1000
Czynsz (dodatkowo)
-
Niepołomice · 39 000 zł

Ogłoszenie właściciela - bez pośredników

Lokal Niepołomice, ul. Władysława Wimmera. Zdjęcie 1
Lokal Niepołomice, ul. Władysława Wimmera. Zdjęcie 1

Bez pośrednika

NIEPOŁOMICE, ul. Wimmera 12

Na wynajem nowy obiekt handlowy w Niepołomicach przy ulicy Wimmera.

Bardzo dobra ekspozycja oraz dojazd.

Lokal położony blisko centrum przy ruchliwej ulicy, obwodnicy Niepołomic.

Obok inne obiekty usługowe i handlowe oraz osiedle mieszkaniowe.

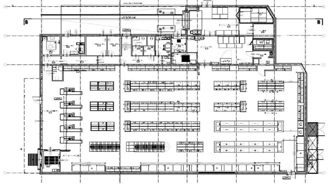
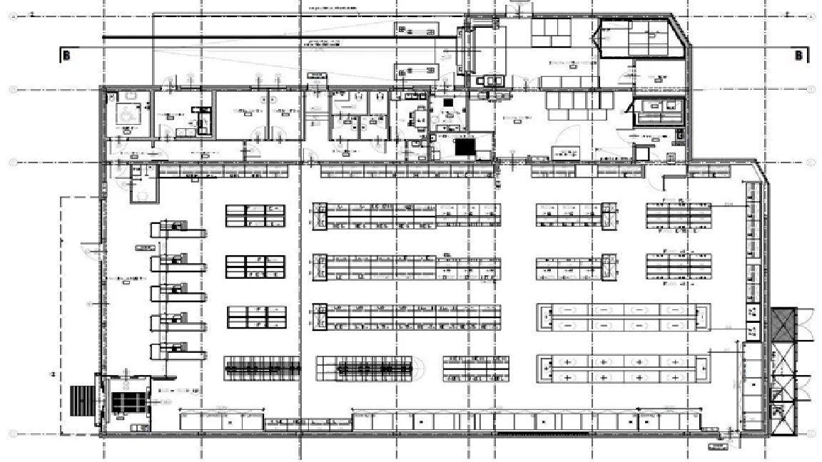
Powierzchnia handlowa - 770 m2

Powierzchnia biurowa i socjalna - 100 m2

Powierzchnia magazynowa - 130 m2

Wymiary budynku 25m na 40,5m

Hala handlowa 19m na 40,5m

Dostępne media : kanalizacja, gaz, prąd

Powierzchnia działki 40 arów

Przed budynkiem 35+ miejsc parkingowych (za budynkiem dodatkowo 5 miejsc).

Dojazd z ulicy Wimmera (bez ograniczenia tonażu) oraz Portowej

Podana cena netto plus media

Brak możliwości wynajęcia części budynku, tylko w całości.

  • ul. Władysława Wimmera 12, Niepołomice, powiat wielicki
  • Do wynajęcia lokal o powierzchni 1000 m²
  • Dostępne do wynajęcia od zaraz
  • Oferta dodana bezpośrednio przez właściciela ponad miesiąc temu i zaktualizowana ponad tydzień temu
Wróć
Największa baza ogłoszeń bez pośredników
Zarejestruj się, aby przejść dalej
lub

Kontynuując akceptujesz
Regulamin i Politykę prywatności

Masz już konto na adresowo.pl?
Zaloguj się

Mamy dla Ciebie kredyt hipoteczny z niską ratą! Chcesz poznać szczegóły?

Kontakt z VeloBank:
- ofertę, wniosek i decyzję o przyznaniu kredytu w procesie online,
- wsparcie eksperta hipotecznego na każdym kroku,
- kredyt do 90% wartości nieruchomości.





Wyrażam zgodę na przetwarzanie moich danych osobowych zawartych w formularzu na stronie adresowo.pl przez VeloBank S.A. z siedzibą w Warszawie przy Rondo Ignacego Daszyńskiego 2C (Bank), a tym samym na ich przetwarzanie, w tym profilowanie, przez Bank w celu marketingu produktów i usług Banku za pośrednictwem rozmowy telefonicznej i sms. Zgoda może być w każdej chwili wycofana. Cofnięcie zgody nie ma wpływu na zgodność z prawem przetwarzania danych przed jej wycofaniem.