Nieruchomość komercyjna do wynajęcia bez pośredników
ul. Zygmunta Krasińskiego 18 Bielsko-Biała Śródmieście

Lokal Bielsko-Biała Śródmieście, ul. Zygmunta Krasińskiego. Zdjęcie 1

Nieruchomość komercyjna do wynajęcia bez pośredników Bielsko-Biała Śródmieście ul. Zygmunta Krasińskiego 18

8 130
47 zł/m²
172
Bielsko-Biała Śródmieście, Zygmunta Krasińskiego 18 - lokalizacja dokładna
Bezpośrednio od właściciela

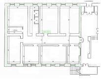
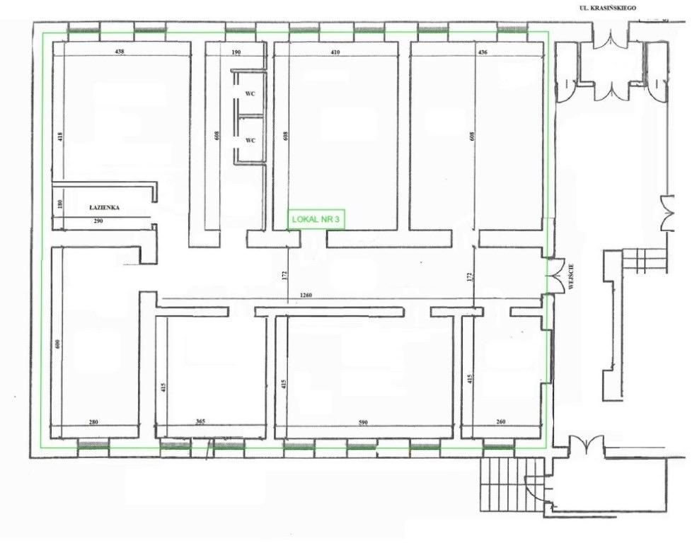
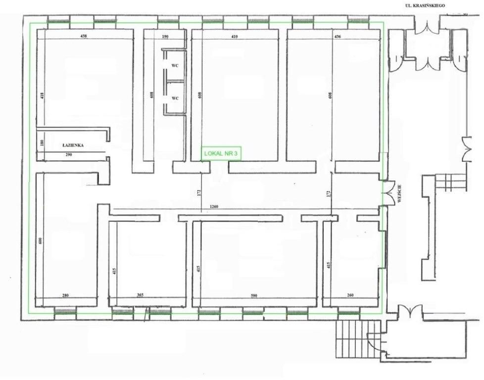
Do wynajęcia lokal po generalnym remoncie z przeznaczeniem na biura lub lokal usługowy.

Lokal mieści się w centrum Bielska-Białej przy ul. Krasińskiego, na parterze kamienicy o metrażu 172,4 m2.

Lokal składa się z 7 niezależnych pomieszczeń biurowych/usługowych o różnej powierzchni z możliwością zaadaptowania jednego z nich na aneks kuchenny, dwóch osobnych toalet z możliwością umieszczenia kabin prysznicowych.
Pomieszczenia łączy dobrze oświetlony korytarz. W lokalu zamontowano drewnianą stolarkę drzwiową Polskiego producenta Wiktorczyk.

Lokal wyposażony jest we wszystkie niezbędne instalacje tj.: woda, prąd, gaz, kanalizacja, światłowód.
Okna PCV, w których zamontowane są nowe stalowe kraty, podłoga w całości wyłożona jest płytkami ceramicznymi o fakturze drewnopodobnej.

Najemca posiada miejsce parkingowe na dziedzińcu, oraz z przodu kamienicy ogólnodostępny parking miejski.

Odstępne miesięczne to 8.128,00 netto + dodatkowo płatne media wg zużycia.

Serdecznie zapraszamy na prezentację!

  • ul. Zygmunta Krasińskiego 18, Bielsko-Biała Śródmieście  
  • Do wynajęcia lokal o powierzchni 172,40 m²  
  • Dostępne do wynajęcia od zaraz
  • Money Wallet 1 Streamline Icon: https://streamlinehq.com
    Kaucja 10000 zł
  • Oferta bezpośrednio od właściciela dodana ponad miesiąc temu

Podobne nieruchomości komercyjne na wynajem

16
Lokal Bielsko-Biała, ul. Komorowicka

8 000

149

Do wynajęcia lokal użytkowy - idealny pod sklep, biuro lub inną działalność Do wynajęcia lokal użytkowy o powierzchni 116,95 m² oraz lokal biurowy o powierzchni 32,66 m² - łącznie 149,61 m², położone w Bielsko-Biała, ul. Komorowicka 98. Całkowicie odnowiona kamienica z dużym parkingiem. Lokale są ...

Zobacz ogłoszenie
5
Hala/magazyn Bielsko-Biała, ul. Żywiecka

7 380

1500

Do wynajęcia działka o powierzchni 1500 m², utwardzona i ogrodzona. Na terenie znajduje się zamykany magazyn i pomieszczenie biurowe. Działka dostępna od marca 2026. Znajduje się przy ruchliwej trasie Bielsko-Biała - Żywiec (możliwość dojazdu dużym transportem), 300 m od wjazdu na trasę S1 (Katowic...

Zobacz ogłoszenie
18
Hala/magazyn Bielsko-Biała Śródmieście

5 900

180

Do wynajęcia budynek dotychczasowego salonu płytek ceramicznych - wraz z osobnym magazynem murowanym, zadaszoną wiatą i sporym terenem wokół budynku. Świetna lokalizacja! • 800 m od MAKRO, • na granicy Bielska-Białej i Mazańcowic, • w sąsiedztwie wielu różnych firm. Budynek po generalnym remoncie ...

Zobacz ogłoszenie
15
Biuro Bielsko-Biała Mikuszowice Krakowskie, ul. gen. Stanisława Maczka

6 800

135

DO WYNAJĘCIA - LOKAL UŻYTKOWY 135 m² MIEJSCA PARKINGOWE | KLIMATYZACJA | REKUPERACJA | OPEN SPACE Oferujemy na wynajem przestronny i funkcjonalny lokal użytkowy o powierzchni 135 m², idealny na biuro, kancelarię, gabinety lub działalność usługową. Opis lokalu: - 4 niezależne pomieszczenia biurowe,...

Zobacz ogłoszenie