Działka na sprzedaż bez pośredników
Borowina Sitaniecka  

Działka rolno-budowlana Borowina Sitaniecka. Zdjęcie 1

Działka na sprzedaż bez pośredników Borowina Sitaniecka

115 000
102 zł/m²
1 127
Borowina Sitaniecka - lokalizacja przybliżona
Bezpośrednio od właściciela

Jeśli nie potrzebujesz pośrednika, zaoszczędzisz około 3 500 zł. Potrzebujesz wsparcia? Skorzystaj z pomocy agenta.

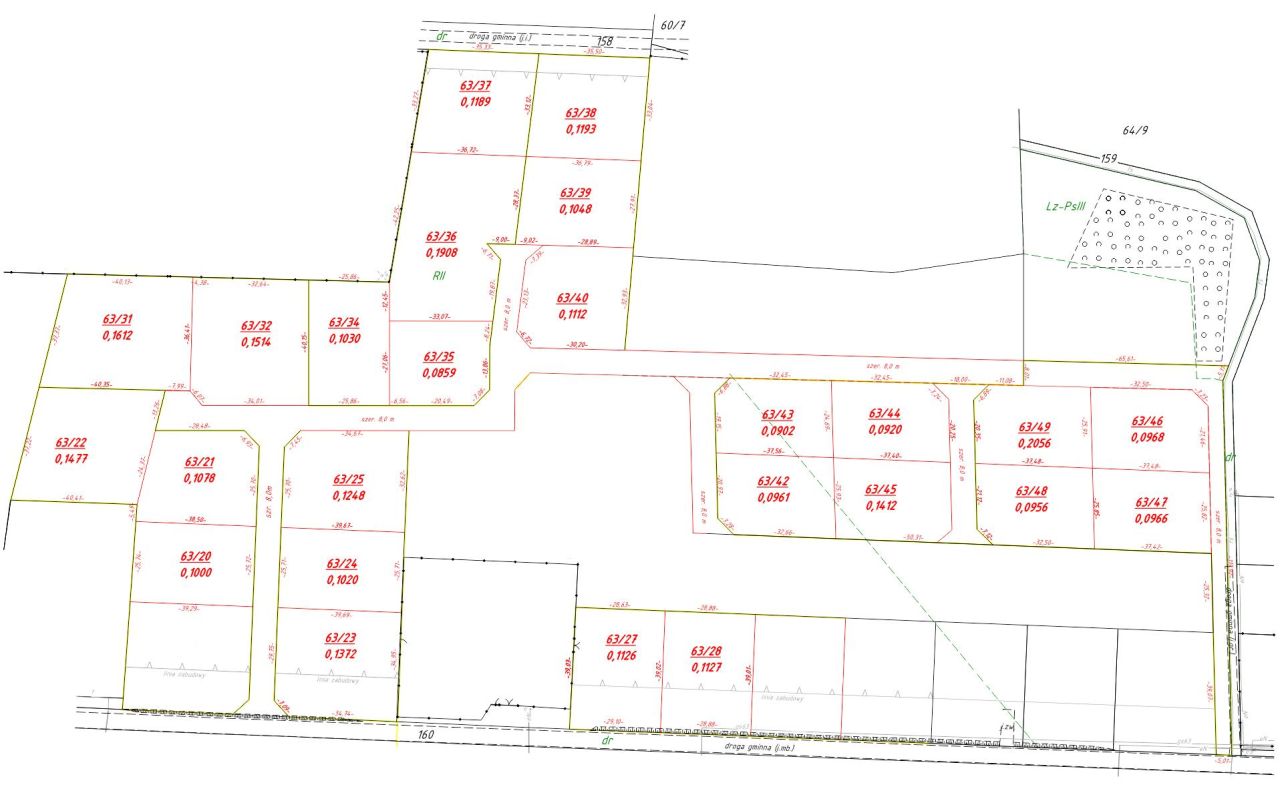
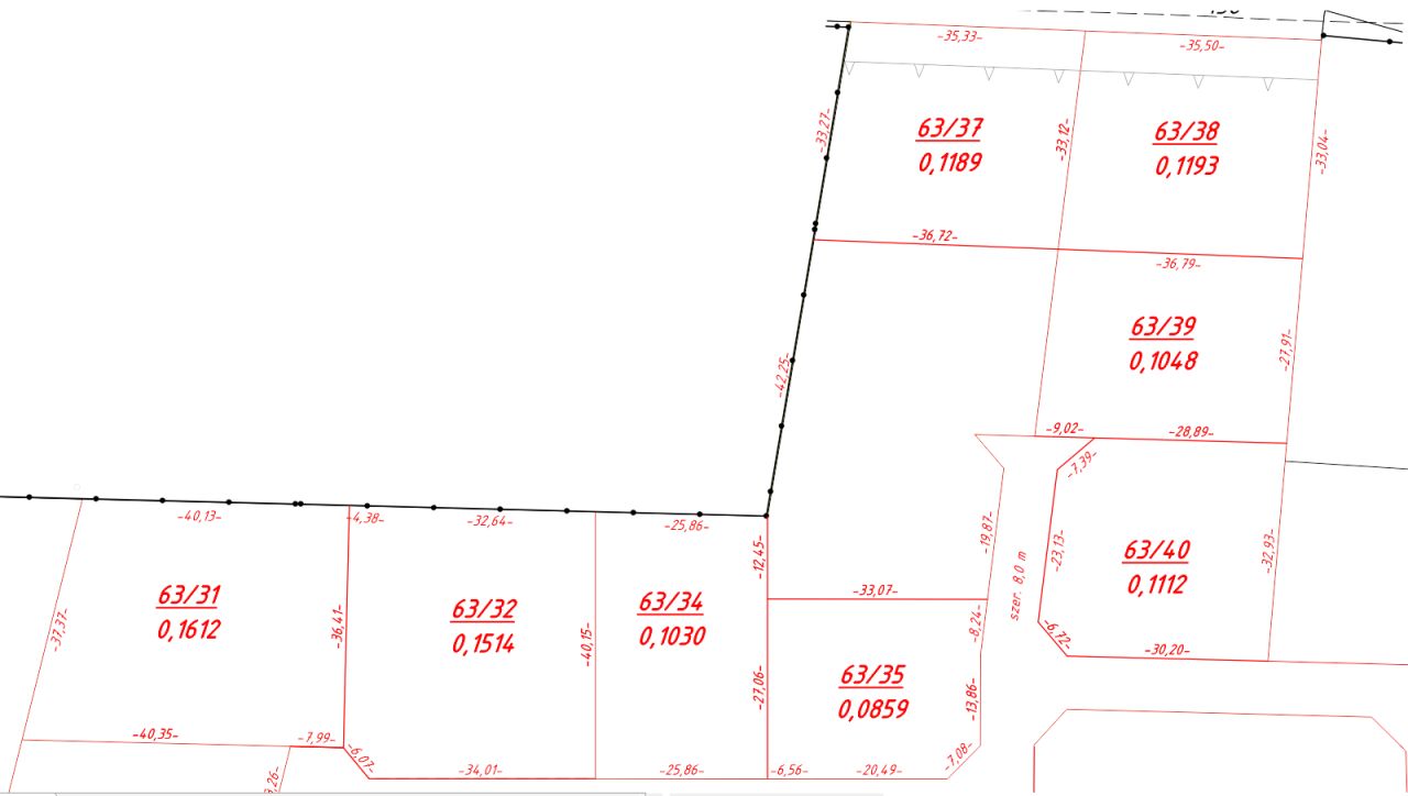
Na sprzedaż posiadam działki w miejscowości Borowina Sitaniecka.
Alternatywa dla Kalinowice, Płoskie, Sitaniec, Łapiguz, Chyża, Zamość, Majdan, Pniówek, Szopinek.

Do działek w pierwszej linii zabudowy posiadam wydane Warunki Zabudowy.
Kolejne warunki są w trakcie opracowania.

Działki zostały przedstawione na zdjęciach.

Cena podana w ogłoszeniu dotyczy działki numer 63/28 o powierzchni 1127m².

Do sprzedania również działki o innych powierzchniach - mniejsze i większe od 859m² do 1612m²

Na sprzedaż wszystkie działki ze zdjęć.

Prąd i gaz.
Woda we własnym zakresie - studnia.
Kanalizacja - planowana - póki co szambo lub oczyszczalnia.

Wszystkie działki mają zapewniony dostęp do drogi.

Działki wewnętrzne skomunikowane komfortowymi drogami o szerokości 8m!

Działki przeznaczone są pod budowę budynków mieszkalnych na podstawie warunków zabudowy.

Możliwość postawienia budynków do 3 kondygnacji, z podpiwniczeniem lub bez, garażem lub bez o powierzchni od 80 do 200m², dodatkowo można postawić dodatkowy budynek gospodarczy, itp.

Działki mają odpowiednie wymiary żeby można było wygodnie mieszkać i odpoczywać.

Dobre nasłonecznienie i brak zacienienia na większości działek - sprzyjające fotowoltaice.

Można wybrać działkę, która najbardziej odpowiada Twoim wymaganiom, dojazd, kierunki świata, wymiary!

Bardzo blisko szkoła, przystanek autobusowy, niedaleko sklepy.

Cicha i spokojna okolica.

Pinezka Google Maps do lokalizacji działek:
goo.gl/maps/At8wcj798XnSiA8U8

Sprzedaż bezpośrednia.

  • Borowina Sitaniecka, gmina Zamość, powiat zamojski  
  • Na sprzedaż działka rolno-budowlana o powierzchni 1 127 m²  
  • Dojazd asfalt
  • Media woda nieprzyłączona, szambo, prąd, gaz
  • Cena do negocjacji  
  • Oferta bezpośrednio od właściciela dodana ponad miesiąc temu
Ta nieruchomość może być Twoja od.. sprawdź
23000 zł (20%) Okres spłaty: 30 lat

Podobne działki na sprzedaż

10
Działka rolno-budowlana Zwódne

132 000

1160

Dzień dobry, Mam przyjemność przedstawić Państwu ofertę sprzedaży trzech nowo wydzielonych działek rolno-budowlanych w podzamojskiej miejscowości Zwódne. Lokalizacja: Zwódne, gmina Zamość, powiat zamojski, województwo lubelskie. Numery działek: 59/2, 59/3, 59/4. Identyfikatory działek: - 062014_...

Zobacz ogłoszenie
6
Działka rolno-budowlana Bortatycze-Kolonia

105 000

1500

Witam, Sprzedam działkę 15 a z warunkami zabudowy w miejscowości Kolonia-Bortatycze, 5 km od DK 17. Działka o wymiarach 20x75 z bezpośrednim dostępem do drogi asfaltowej. Działka znajduje się pomiędzy zabudowaniami jednorodzinnymi. Przez działkę przebiegają: - wodociąg, - gaz, - prąd. W bezpośre...

Zobacz ogłoszenie
4
Działka rolno-budowlana Zwódne

135 000

1500

Na sprzedaż działki budowlane – Zwódne, gmina Zamość Oferuję na sprzedaż dwie działki położone w miejscowości Zwódne (gmina Zamość), w spokojnej i malowniczej okolicy z pięknym widokiem na panoramę Zamościa. Szczegóły: wymiary każdej działki: 22 m × 68 m teren równy, jak na załączonym zdjęciu dojaz...

Zobacz ogłoszenie
3
Działka rolno-budowlana Sitaniec-Wolica

129 000

1100

Działka o powierzchni 11 ar o wymiarach 41,1x27,7 m, przeznaczona pod zabudowę budynku mieszkalnego, w okolicy nowo wybudowane domy. Idealne miejsce na budowę domu, niedaleko szkoły, przedszkola, infrastruktura miejska. Media: wodociąg, prąd, gaz, światłowód. Wjazd na działki od wschodniej strony ś...

Zobacz ogłoszenie
15
Działka rolno-budowlana Siedliska Kolonia

100 000

1450

Dzień dobry, Mam przyjemność przedstawić Państwu ofertę sprzedaży trzech nowo wydzielonych działek rolno-budowlanych w podzamojskiej miejscowości Kolonia-Siedliska. Lokalizacja: Kolonia-Siedliska, gmina Zamość, powiat zamojski, województwo lubelskie. Numery działek: 186/4, 186/5, 186/5. Identyfik...

Zobacz ogłoszenie
5
Działka rolno-budowlana Hubale

135 000

1830

Działka nr. 513/5 o powierzchni 18,3 ar w miejscowości Hubale w gminie Zamość. Wymiary działki idealne pod budowę domu: 27x67 m. Działka położona 6km od granicy i 9 km od centrum Zamościa. Działka jest rolna jednak można w krótkim czasie uzyskać warunki zabudowy. Klasa ziemii III IV. Poprzednie waru...

Zobacz ogłoszenie