Działka na sprzedaż bez pośredników
ul. Bajki Rotmanka

Działka inwestycyjna Rotmanka, ul. Bajki. Zdjęcie 1

Działka na sprzedaż bez pośredników Rotmanka ul. Bajki

750 000
749 zł/m²
1 002
Rotmanka, Bajki - lokalizacja przybliżona
Bezpośrednio od właściciela

Jeśli nie potrzebujesz pośrednika, zaoszczędzisz około 22 500 zł. Potrzebujesz wsparcia? Skorzystaj z pomocy agenta.

Oferta na sprzedaż działki usługowej o powierzchni 1002 m2.
Działka jest uzbrojona (prąd i gaz).
Lokalizacja: Rotmanka, ul. Bajki, Gmina Pruszcz Gdański.
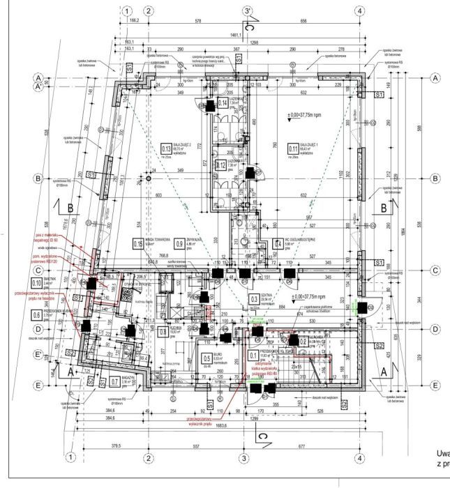
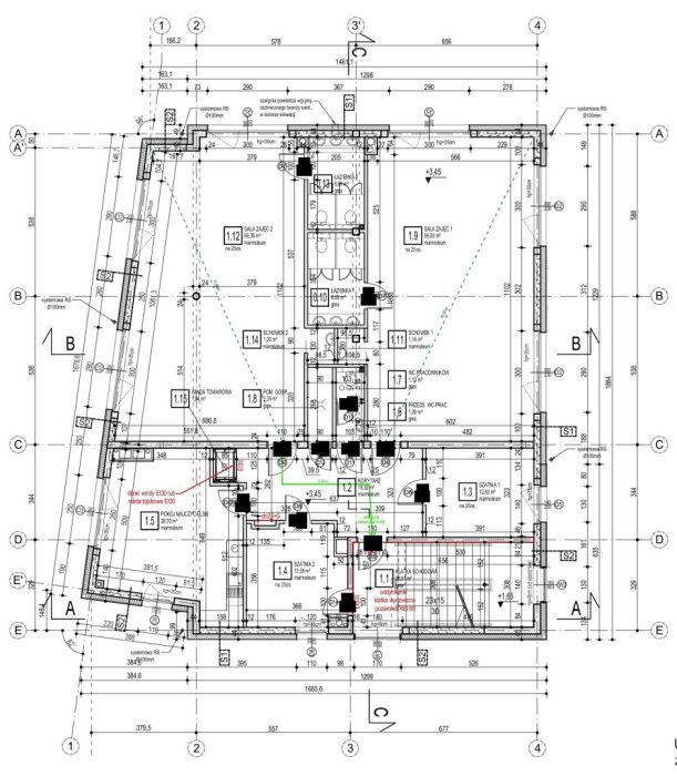
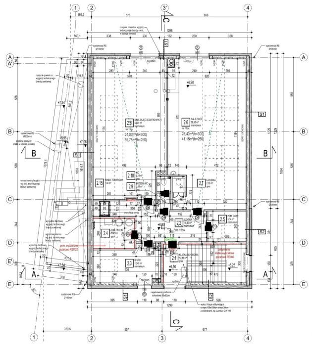
W ofercie znajduje się również projekt budynku usługowego o powierzchni 650 m2 PU, z 9 miejscami parkingowymi i prawomocnym pozwoleniem na budowę.

Aktualnie droga dojazdowa ul. Bajki jest utwardzona i w bardzo dobrym stanie, służąc jako dojazd do budynków wielorodzinnych.
Gmina planuje rozpocząć kompleksową przebudowę drogi w 2026 roku, obejmującą pełną infrastrukturę (ulica, chodniki, światła, kanalizacja, woda, kanalizacja burzowa). Planowany termin zakończenia inwestycji to 2027 rok.
Nowa droga ułatwi dodatkowy dojazd od strony Lidla i poprawi przepustowość.

Sprzedaż na podstawie faktury VAT. Cena zawiera 22% podatek VAT.

  • ul. Bajki, Rotmanka, gmina Pruszcz Gdański, powiat gdański  
  • Na sprzedaż działka inwestycyjna o powierzchni 1 002 m²  
  • Dojazd utwardzony
  • Media kanalizacja
  • Oferta bezpośrednio od właściciela dodana ponad miesiąc temu
Ta nieruchomość może być Twoja od.. sprawdź
150000 zł (20%) Okres spłaty: 30 lat

Podobne działki na sprzedaż

5
Działka inwestycyjna Jankowo Gdańskie, ul. Borówkowa

460 000

901

Zapraszamy do zapoznania się z ofertą sprzedaży kameralnej działki budowlanej o powierzchni 901 m², położonej przy ul. Borowikowej w Jankowie Gdańskim. To idealna propozycja dla osób poszukujących miejsca pod budowę domu w spokojnej, zielonej okolicy, z jednoczesnym szybkim dostępem do Gdańska i cał...

Zobacz ogłoszenie
7
Działka inwestycyjna Straszyn, ul. Daglezjowa

600 000

1309

Na sprzedaż działka budowlana w miejscowości Straszyn przy ulicy Diaglezjowej o powierzchni 1309 m2. Straszyn to dynamicznie rozwijająca się miejscowość. Znajdujące się w pobliżu rozległe tereny zielone, ścieżki rowerowe i piesze, a także jezioro i rzeka Radunia, tworzą idealne warunki dla osób ceni...

Zobacz ogłoszenie
3
Działka inwestycyjna Grabiny-Zameczek

550 000

2990

Przeznaczenie: zabudowa mieszkaniowa jednorodzinna oraz usługowa. Opis działki: Działka o powierzchni 2990m2 w kształcie prostokąta. Teren: płaski, ogrodzony płotempanelowym , niezalesiony. Dostępne media: prąd, woda, gaz, kanalizacja. Opis lokalizacji: Odległość od centrum Gdańska: ok. 18 km., Prus...

Zobacz ogłoszenie
7
Działka inwestycyjna Radunica, ul. Podmiejska

590 000

2300

Na sprzedaż działka budowlana na pograniczu Gdańska i Pruszcza Gdańskiego - Radunica NIERUCHOMOŚĆ: Na sprzedaż atrakcyjna działka budowlana, położona w miejscowości Radunica, na granicy Gdańska i Pruszcza Gdańskiego. Powierzchnia nieruchomości wynosi 2 300 m², a jej wymiary to około 70 m x 33 m. Dzi...

Zobacz ogłoszenie
12
Działka inwestycyjna Bielkówko, ul. Do Strumyka

499 000

1407

Zadzwoń lub napisz i zapytaj o wirtualny spacer! Spacer z opcją łatwego pomiaru dowolnego elementu nieruchomości! Całkowicie uzbrojona, a nie tylko w drodze czy w pobliżu. Wykonane zostały już wszystkie przyłącza! Lokalizacja: Szukasz miejsca, gdzie natura łączy się z wygodą? Bielkówko w gminie Kolb...

Zobacz ogłoszenie
10
Działka inwestycyjna Bielkówko, ul. Tęczowa

739 000

3926

Na sprzedaż działka budowlana nr 26/5 o powierzchni 3926m2. Parcela jest objęta MPZP pod budownictwo mieszkaniowe. Położona w Bielkówku, w najbliższej okolicy lasy i jeziora. Bliskość Kolbud i Straszyna zapewnia dostęp do szerokiej infrastruktury handlowo-usługowej. W pobliżu (2km od działki) przebi...

Zobacz ogłoszenie